HEAD
TÍTULO 4
EJECUCIÓN DE LAS OBRAS
4.1 Generalidades
Este título regula las medidas que a adoptar durante la ejecución de una obra para que las instalaciones, maquinarias y trabajos de las obras no produzcan molestias a terceros por calor, frío, ruido, vibración, choque, golpe o humedad.
Las obras deben ejecutarse dentro de los horarios permitidos. Si por el proceso constructivo de la obra requiere un horario mayor, debe informarse al Organismo Competente.
4.1.1 Fiscalización por el Organismo Competente de Medidas de Seguridad en Obras
Es facultad del Organismo Competente el control y la Fiscalización de las Obras en cuanto a las medidas de Seguridad contenidas en el presente Código, quien fiscalizará el cumplimiento de las medidas de seguridad y protección en obras e indicará en qué oportunidad deben llevarse a cabo, quedando asimismo facultado para exigir cualquier previsión útil en resguardo de las personas, seguridad de la vía pública y de predios linderos.
4.2 Cercas y Veredas
4.2.1 Cercas y Veredas Durante la Ejecución de los Trabajos de Obra
Durante la ejecución de trabajos de demolición, excavación, submuración, anclaje o construcción de las obras, el solado de la vereda debe ser transitable, ya sea que se produzca o no la ocupación de la vía pública, o bien se ocupe la línea oficial.
Para ello deben utilizarse los materiales necesarios para su construcción definitiva, que tendrá lugar una vez que se desocupe la vía pública o que la obra haya finalizado.
Las veredas deben ejecutarse con materiales que por su firmeza aporten estabilidad, durabilidad y rigidez. Dichos materiales deben ser antideslizantes, resistentes e inalterables al contacto con agua, líquidos en general o fluidos capaces de alterar sus condiciones.
Tanto la calidad de los materiales para solados de veredas como las técnicas de ejecución de las veredas se regirán de acuerdo a los requisitos enunciados en la reglamentación que establezca el organismo competente.
4.2.2 Reemplazo de Solado
Cuando un solado deba ser reemplazado total o parcialmente se tomarán las medidas de seguridad e higiene necesarias para el levantamiento del solado a reemplazar, evitando la ocupación de la vereda con escombros, materiales o herramientas que generen molestias y puedan causar riesgos de caída para quienes la transiten, garantizando el Volumen libre de riesgo, a los efectos de permitir el paso de las personas con discapacidad.
4.3 Vallas Provisorias, Letreros y Estacionamiento de Vehículos al Frente de las Obras
4.3.1 Vallas Provisorias al Frente de las Obras
Antes de iniciar una obra debe colocarse en forma obligatoria una valla provisoria al frente de un predio, en la longitud necesaria del mismo, para cualquier trabajo que por su índole sea peligroso, incómodo o signifique un obstáculo para el tránsito en la vía pública.
Cuando por motivos especiales, entendidos de este modo por la Autoridad de Aplicación, fuera imprescindible utilizar el espacio cercado por la valla provisoria para el obrador de las mezclas, sus materiales no deben escurrir sobre la vereda. Si fuera necesario instalar maquinaria, el emplazamiento de ésta no rebasará el espacio limitado por la valla y su funcionamiento no ocasionará molestias al tránsito.
4.3.1.1 Características de la Valla Provisoria
4.3.1.2 Retiro de la Valla Provisoria al Frente de las Obras
Una vez que deje de ser necesaria la ocupación de la vía pública, a criterio de la Autoridad de Aplicación o para el caso en que la obra interrumpa su ejecución, por el término de 90 (noventa) días corridos, la valla provisoria será trasladada a la L.O.
4.3.2 Letreros al Frente de las Obras
Al frente de una obra es obligatorio colocar un letrero que contenga de forma clara todos los datos veraces y actualizados del o los profesionales, empresas intervinientes en la obra y de la tramitación del Permiso o Aviso de Obra de que se trate.
Otros datos a consignar y características específicas son establecidas en el Reglamento Técnico por la Autoridad de Aplicación.
4.3.3 Estacionamiento de Vehículos al Frente de las Obras
La limitación del espacio de la calzada frente a las obras mediante caballetes podrá efectuarse una vez que se encuentre aprobado el Permiso correspondiente.
GRAFICO
Se encuentran exceptuados de la presente autorización las obras en construcción localizadas sobre la vereda derecha de acuerdo al sentido de circulación, de los tramos de arterias sujetos a un régimen de carriles exclusivos, vías preferenciales o con prohibición de estacionamiento vigente las 24 horas, donde la colocación de caballetes debe realizarse sobre la vereda, debiéndose garantizar un ancho mínimo de 1,50 m para la transitabilidad de personas con discapacidad.
4.4 Andamios
Para todos los trabajos que se realicen en altura deben utilizarse andamios que garanticen la seguridad y estabilidad de quienes los empleen. El material de los mismos y sus accesorios deben estar en buen estado y ser suficientemente resistentes para soportar los esfuerzos. Las características técnicas de los andamios se definen en la reglamentación correspondiente.
4.4.1 Andamios Sobre la Vía Pública
Un andamio sobre la vía pública debe colocarse dentro de los límites del recinto autorizado para la valla provisoria, cuidando de no ocultar las chapas de nomenclatura, señalización, focos de alumbrado y bocas de incendio, que deben ser protegidos para su perfecta conservación y uso. Si se afectan soportes de alumbrado u otro servicio público, debe darse aviso al Organismo competente.
La Autoridad de Aplicación define en los Reglamentos Técnicos los requisitos de los andamios en la vía pública y autoriza dispositivos que ofrezcan seguridad y comodidad para el tránsito.
4.4.2 Torres para Grúas, Guinches y Montacargas
Las torres para grúas, guinches y montacargas usadas para elevar materiales en las obras, deben construirse con materiales resistentes de suficiente capacidad y solidez.
La autoridad de aplicación establecerá en los Reglamentos Técnicos los requisitos básicos de seguridad y solidez. Se deben tomar las precauciones necesarias para evitar la caída de materiales y toda otra molestia a linderos.
4.5 Medidas de Protección y Seguridad en las Obras
4.5.1 Protección de las Personas en Obras
En una obra es obligatoria la colocación de defensas o protecciones en los vacíos correspondientes a los patios, pozos de aire o ventilación, cajas de ascensores y conductos, como asimismo en las aberturas practicadas en entrepisos o muros que ofrezcan riesgo de caídas de personas o materiales. Una escalera aislada debe contar con defensas laterales que garanticen su uso seguro.
Deben adoptarse las medidas de seguridad adecuadas para cada situación cuando en la ejecución de una obra se desarrollen tareas que puedan ocasionar caída de objetos o materiales, ya sea sobre el área de trabajo, la vía pública o bien fincas linderas, en particular, en los bordes libres de una construcción vertical, tales como patios verticales, internos o no, y espacios urbanos.
4.5.2 Defensas contra Instalaciones Provisorias que Funcionan en Obras
En una obra se deben colocar defensas para las personas para la prevención de accidentes u otros peligros provenientes de las instalaciones provisorias en funcionamiento.
4.5.3 Precaución por Trabajos sobre Techos de una Obra
Cuando deban efectuarse trabajos sobre techos que ofrezcan peligro de resbalamiento, sea por su inclinación, por la naturaleza de su cubierta o por el estado atmosférico, se deben tomar precauciones para evitar la caída de personas o de materiales.
Queda prohibido el tránsito de personas sobre cubiertas que no estén preparadas para soportar la carga máxima prevista generada por personas, materiales y/o equipos, en el caso de no haberse tomado previamente las correspondientes medidas de seguridad.
Debe disponerse de sistemas de protección personal eficaces:
4.5.4 Precaución para la Circulación en Obras
En una obra, los medios de circulación, los andamios y sus accesorios deben ser seguros. Cuando la luz del día no resulte suficiente se los debe proveer de una adecuada iluminación artificial, como así también a los sótanos. Asimismo, se debe eliminar de los pasos obligados todo elemento saliente, cortante o que obstaculice la circulación.
Es obligatorio el mantenimiento y control del orden y limpieza en toda obra, debiendo disponerse los materiales, herramientas y desechos de modo que no obstruyan los lugares de trabajo y de paso.
Deben eliminarse o protegerse todos aquellos elementos punzo-cortantes que signifiquen riesgo para la seguridad de los trabajadores.
En la programación de la obra, deben tenerse en cuenta circulaciones peatonales y vehiculares en lo que hace a su trazado y delimitación.
Es obligatorio proveer medios seguros de acceso y salidas en todos y cada uno de los lugares de trabajo. Los trabajadores deben utilizar estos medios obligatoriamente en todos los casos.
4.5.5 Protecciones en la Vía Pública y a Fincas Linderas a una Obra
Si durante la ejecución de una obra se desarrollan tareas que impliquen riesgos de caída de objetos o materiales, deben adoptarse las medidas de seguridad que incluyan los bordes libres patios verticales y/o espacios urbanos. Será obligatoria la colocación de protecciones para resguardar de eventuales caídas de materiales a la vía pública y a las fincas linderas.
GRAFICO
4.5.6 Molestias a Terceros
4.5.6.1 Descarga y Ocupación de la Vía Pública con Materiales y Máquinas de una Obra
La descarga y/o ocupación de la vía pública (calzada y espacio por fuera del lugar cercado por la valla provisoria) con materiales, maquinarias, escombros u otros elementos pertenecientes a una obra debe estar sujeta al plan de obra presentado ante la Autoridad de Aplicación.
En las obras en construcción situadas sobre la vereda derecha conforme el sentido de circulación de tramos de arterias sujetos a un régimen de carriles exclusivos, vías preferenciales o con prohibición de estacionamiento vigente las 24 horas, la carga y descarga de los materiales debe ceñirse al funcionamiento del régimen especial de tránsito, y realizarse conforme el siguiente orden de prelación:
En los supuestos de obras en construcción localizadas sobre la vereda derecha conforme el sentido de circulación de los tramos de arterias sujetos a un régimen de carriles exclusivos, vías preferenciales o con prohibición de estacionamiento vigente las 24 horas, la colocación del contenedor debe realizarse sobre la vereda, de acuerdo a la factibilidad de operación del camión transportador, conforme el cableado existente y la ubicación del vallado protector. De ser necesario, el cableado debe ser correctamente levantado. La colocación del contenedor sobre vereda debe garantizar el paso mínimo de circulación peatonal para personas con discapacidad de 1,50 m.
4.5.7 Obradores
4.4.7.1 Servicio de Salubridad y Vestuario en Obras
Las características de los servicios de salubridad y de los vestuarios de las obras deben cumplir los requerimientos de los usos industriales indicados en el Título 3 del presente código pudiendo los mismos construirse bajo condiciones especiales dado el carácter de uso temporal de los mismos.
4.5.7.2 Desechos Cloacales u Orgánicos
La evacuación y disposición de desechos cloacales y aguas servidas debe efectuarse a redes de recolección con bocas de registro y restantes instalaciones apropiadas a ese fin, debiendo evitarse:
4.5.8 Residuos de Obra
Los residuos que se generen en la obra deben ser clasificados y separados de acuerdo a sus características a los efectos de disminuir el impacto sobre el medio ambiente y reducir la cantidad de residuos destinados a recolección final. Debe promoverse la reutilización y el reciclado de aquellos residuos que por sus características puedan ser aprovechados durante la ejecución de la obra.
El tratamiento de los residuos sólidos debe respetar las tres etapas:
En caso de materiales o sustancias consideradas peligrosas para la salud o el medio ambiente, deben estimarse las medidas de seguridad necesarias para evitar los riesgos durante su almacenamiento y manipulación de acuerdo a la normativa vigente.
4.6 Terraplenamientos
4.6.1 Obligación de Terraplenamiento
Un predio cuyo suelo tenga un nivel inferior al oficial debe ser terraplenado. Si el predio tiene frente a una calle pavimentada, el terraplenamiento se debe efectuar dentro de los 180 (ciento ochenta) días corridos de terminado el pavimento, salvo que quede cumplido lo dispuesto en "Cota de nivel mínimo".
La Autoridad de Aplicación intimará al Propietario para el cumplimiento de esta obligación; vencido el plazo, la misma puede ejecutar a costa del Propietario los trabajos requeridos.
4.6.2 Ejecución del Terraplenamiento
El terraplenamiento se debe efectuar por capas hasta una altura tal que tenga en cuenta el esponjamiento de la tierra, de manera que la acción del tiempo dé por resultado el nivel definitivo y se debe ejecutar de modo que el suelo quede uniforme y no permita el estancamiento de las aguas ni su escurrimiento a un predio lindero.
Si el terraplenamiento se efectúa en contacto con edificación existente, se deberá ejecutar la aislación hidrófuga correspondiente. El material para el terraplén debe ser libre de materia orgánica o nociva.
4.7 Excavaciones
4.7.1 Desmontes
Todo predio cuyo suelo esté elevado sobre la rasante del nivel oficial puede ser desmontado.
El nivel lo debe fijar la Autoridad de Aplicación, la cual puede exigir la intervención de un Profesional matriculado cuando por razones técnicas lo estime necesario.
El suelo del desmonte se debe terminar de modo que quede uniforme y no permita el estancamiento de las aguas.
4.7.2 Excavación que Afecte a un Predio Lindero o a la Vía Pública
Cuando se realice una excavación deben preverse los apuntalamientos necesarios para evitar que la tierra del predio lindero o de la vía pública caiga en la parte excavada antes de haberse provisto los soportes o sostenes definitivos de los laterales de la excavación.
No debe continuar una excavación si no se ha asegurado el terreno en la parte superior.
4.7.3 Excavación que Afecte a Estructuras Adyacentes
Se debe preservar y proteger de daños a toda estructura, propia o lindera, cuya seguridad pueda ser afectada por una excavación.
4.7.4 Excavación que Pueda Causar Daño o Peligro
Toda excavación que afecte a linderos o a la vía pública debe ser concluida dentro de los 180 días corridos a contar de la fecha de su comienzo. No obstante, la Autoridad de Aplicación puede acordar lapsos mayores para obras de magnitud.
El responsable de la excavación debe adoptar todas las previsiones técnicas y de seguridad necesarias para evitar peligro potencial y/o toda otra situación que pudiere generar daños en las personas, predios linderos, bienes, vía pública, estructuras, instalaciones o cimientos.
4.7.4.1 Protección contra Accidentes
4.7.5 Ejecución de las Excavaciones
Las excavaciones se deben ejecutar en forma tal que quede asegurada la estabilidad de los taludes y cortes verticales practicados. Sólo podrán dejarse en forma permanente, sin sostén para soportar el empuje, los taludes inclinados calculados en base a los parámetros de resistencia al corte que corresponda aplicar según resulte del estudio de suelos.
Toda vez que las conclusiones del estudio de suelos así lo permitan, podrán practicarse cortes verticales sin apuntalamiento temporario siempre que su longitud no sea mayor que 2 m. Entre cortes parciales contiguos deben dejarse banquinas de una longitud no menor que la del corte y de un espesor medido en el coronamiento de las mismas no menor que la mitad del corte, ni menor que 1m y terminadas con un talud de 2:1. En todos los casos los cortes deben ser apuntalados con estructuras temporarias capaces de resistir un empuje según lo determinado de acuerdo a los requisitos enunciados en los Reglamentos Técnicos.
Cuando se realicen excavaciones en suelo blando debe verificarse la estabilidad del fondo.
Cuando se realicen excavaciones junto a edificios o estructuras linderas deben considerarse las sobrepresiones provenientes de zapatas, soleras o losas de fundación. Las sobrepresiones horizontales de cálculo no deben ser inferiores a los valores obtenidos utilizando las ecuaciones de Boussinesq multiplicadas por 1,5 para entubaciones flexibles.
Todo proceso de bombeo o drenaje debe ser programado con anticipación con el objeto de determinar las acciones temporarias o permanentes que hubieran podido ocasionarse sobre estructuras existentes contiguas.
4.8 Anclajes
En las obras en construcción se permitirá la utilización de anclajes de tracción para soporte transitorio de muros de submuración y entibamiento que traspasen los límites del predio, tanto en relación a los linderos como en lo relativo a la línea oficial.
El sistema de anclajes debe resguardar y garantizar la seguridad de trabajadores, los predios linderos y la vía pública.
Los anclajes son considerados en todos los casos como estructuras transitorias, y el propietario de la parcela adyacente no será responsable en caso de fisuras, cuando los mismos se demuelan para submurar.
4.9 Suelos Aptos para Cimentar
Se consideran terrenos resistentes o aptos para cimentar los constituidos por tierra colorada compacta, greda blanca arenosa, tosquilla, tosca y arena seca cuando ésta sea debidamente encajonada y siempre que formen capas de suficiente espesor a juicio del profesional responsable del estudio de suelos; este espesor nunca debe ser inferior a 1,00 m. Los coeficientes admisibles de trabajo para distintas clases de terreno son los que se establezcan en los Reglamentos Técnicos. Se prohíbe cimentar en tierra vegetal y, excepcionalmente, se autoriza en el barro y en los terraplenamientos con arcilla, siempre que se adopten las precauciones técnicas necesarias e indispensables para asegurar la estabilidad de las obras, bajo responsabilidad del profesional y con el conforme de profesional responsable del estudio de suelos.
Cuando no corresponda efectuar estudio de suelos, el coeficiente de trabajo para suelos aptos para cimentar no excederá de 1 o 1,5 kg/cm², el cual debe explicitarse claramente en el cálculo de las fundaciones, siendo el calculista el único responsable junto con el director de obra, por las tensiones de suelo que se establecen.
4.9.1 Aguas Subterráneas
En caso de que las condiciones del agua subterránea influyan en el comportamiento mecánico del suelo al momento de la excavación deberá presentarse un plan de manejo de las mismas.
4.10 Demoliciones
4.10.1 Generalidades sobre las Demoliciones
Al iniciar una demolición deben adoptarse todas las medidas preliminares de prevención necesarias y precauciones mínimas para evitar riesgos emergentes. Asimismo, debe delimitarse una zona de seguridad en torno a la demolición, reservada exclusivamente al personal afectado a las tareas de demolición.
Deben realizarse los apuntalamientos necesarios para evitar el derrumbe de los muros linderos.
Deben mantenerse los puestos de trabajo y las circulaciones despejadas en todo momento.
No deben dejarse, bajo ningún concepto, sectores de muro divisorio o medianero de más de 3 m. de altura que se encuentren libres de arriostramiento horizontal con la construcción lindera.
Debe asegurarse que el peso de los muros divisorios o medianeros remanentes de la demolición sea capaz de ser transferido al terreno por la propia resistencia del muro, o por la estructura de la construcción lindera. De no ser así, debe dejarse sin demoler la porción de estructura correspondiente al edificio en demolición que pueda cumplir dicha función o disponer un apuntalamiento adecuado al efecto.
4.10.2 Medidas de Protección en Demoliciones
Se consideran medidas de Protección mínimas y obligatorias:
4.10.3 Estructuras Deficientes en Casos de Demolición
Si el responsable de una demolición constata que está en riesgo inminente la seguridad de una estructura adyacente, informará sin demora al organismo competente en la materia.
4.10.4 Retiro de Materiales y Limpieza en Demoliciones
Durante el transcurso de los trabajos y a su terminación, el responsable de una demolición debe retirar de la finca lindera los materiales que hayan caído, además debe ejecutar la limpieza y reparaciones que correspondan.
4.10.5 Demoliciones Especiales de Edificios Aislados
Cuando la demolición abarque la totalidad de las construcciones existentes en una manzana, su derribo podrá efectuarse mediante elementos de impacto, accionados por grúas, explosiones controladas u otros sistemas aprobados por la Autoridad de Aplicación que implique la mayor reducción de riesgo para trabajadores ejecutores de la Demolición, personal de la obra en general y terceros.
En caso de edificios aislados podrán utilizarse alguno de los métodos mencionados en el párrafo anterior, previa presentación de análisis técnico y memoria descriptiva del método a emplear, siempre que el mismo se encuentre previamente aprobado por la Autoridad de Aplicación.
4.10.6 Demoliciones de Edificios entre Medianeras
Cuando se recurra a métodos manuales de demolición o se trate de Demoliciones entre medianeras, debe optarse por aquellos métodos que produzcan el menor grado de molestia física, de higiene y de ruido para peatones y terceros en general.
Al demoler edificios ubicados entre medianeras que linden con parcelas edificadas, las paredes, estructuras y chimeneas y/o conductos similares no deben derribarse como grandes masas aisladas sobre pisos del edificio a demoler ni sobre el terreno.
Quienes ejecuten esta demolición y trabajen directamente sobre los muros a demoler, deben utilizar cinturones de seguridad anclados a una zona de amarre sólida. Si los muros fueran estrechos o débiles u ofrecieran peligro para quienes ejecuten la demolición, debe colocarse andamio con baranda de protección o plataformas especialmente diseñadas.
Ningún edificio o parte de él debe dejarse en condiciones en las cuales pueda ser derribado por agentes climáticos o trepidaciones.
En caso de tratarse de la demolición de una saliente o cornisa, el profesional a cargo debe asegurarse que la misma se encuentre debidamente sujeta antes de ser demolida.
La demolición debe ser realizada planta por planta. No podrán removerse partes de un entrepiso hasta tanto no se haya derribado todo elemento que corresponda a un mismo piso, salvo que dichos entrepisos sean reemplazados por elementos que ofrezcan la misma seguridad.
Asimismo, debe evitarse la caída de vigas y tirantes por volteo. Las vigas empotradas en muros o estructuras deben ser aflojadas cuidadosamente o cortadas antes de ser retiradas
Las estructuras construidas con elementos premoldeados deben desmantelarse en el orden inverso al que se erigieron originalmente. Sólo podrán utilizarse otros métodos siempre que a juicio de la Autoridad de Aplicación garanticen exigencias mínimas de seguridad.
4.11 Cimientos y Fundaciones
4.11.1 Bases Próximas a Sótanos o Excavaciones
Toda base a nivel superior que el del fondo de un sótano o excavación no podrá distar del muro o paramento de la excavación a una longitud menor que la diferencia de niveles. Será indispensable tomar en cuenta la influencia de la presión transmitida al terreno por cimientos de edificios cercanos a sótanos o excavaciones. Esta obligación podrá ser reemplazada por obras capaces de resistir el empuje, según se indica en "Muros de contención".
GRAFICO
4.12 Estructuras en Elevación
Los sistemas y materiales autorizados para la ejecución de estructuras, los coeficientes admisibles de trabajo para distintas clases de albañilería, elementos metálicos, de hormigón simple y armado y madera; las sobrecargas para techos y entrepiso de diferentes locales según su destino; los pesos específicos y demás elementos analíticos que intervienen en los cálculos de resistencia y estabilidad son los que se establezcan en los Reglamentos Técnicos que dicte la Autoridad de Aplicación.
Otros sistemas y materiales de ejecución de estructuras podrán utilizarse siempre que se cumpla con los requerimientos y objetivos planteados en el presente Código en los Reglamentos Técnicos y sean aprobados por la Autoridad de Aplicación.
La elección del procedimiento de cálculo es libre, siempre que no contradiga disposiciones del presente Código en concordancia con los Reglamentos Técnicos. En caso de usarse fórmulas nuevas se hará constar su procedencia y justificación, las que requerirán la aprobación de la Autoridad de Aplicación.
4.12.1 Conservación de los Límites del Predio en Estructuras
La estructura resistente debe ejecutarse dentro de los límites del predio.
Un muro divisorio con su propio cimiento, podrá asentarse en ambos predios colindantes.
Los muros privativos contiguos a predios linderos, sean o no resistentes, deben ejecutarse dentro del propio predio.
4.12.2 Apoyo de Vigas en Muros
Tanto en las azoteas como en los techos y entrepisos, los tirantes y vigas se apoyarán en los muros en la forma fijada por las normas reglamentarias.
En los muros divisorios el apoyo no podrá rebasar el límite del predio.
4.12.3 Uso de Estructuras Existentes
Una estructura existente constituida según las disposiciones vigentes en el momento de su erección puede ser usada en obra nueva si está en buenas condiciones, si queda con tensiones de trabajo admisibles y si tiene su cimentación conforme a este Código.
4.13 Muros
4.13.1 Ejecución de los Muros
La proyección y ejecución a la que debe ajustarse cada tipo de muro, las exigencias mínimas de los materiales y sistemas de construcción son los que surjan del presente Código de Edificación y aquellos que establezca la Autoridad de Aplicación a través de los Reglamentos Técnicos, debiendo siempre garantizarse el aplomo, la estabilidad, y la capacidad de carga para la cual fue diseñado.
4.13.1.1 Muros de Contención
El espesor mínimo de un muro de contención debe ser el establecido en los Reglamentos Técnicos, y siempre que sea justificado mediante cálculos de resistencia.
El empuje horizontal debe ser determinado según el tipo de suelo en consideración y se debe indicar de acuerdo a lo enunciado en los Reglamentos Técnicos
Cuando existan sobrepresiones producidas por zapatas, soleros o losas de fundación, las sobrepresiones horizontales de cálculo no deben ser inferiores a los valores obtenidos utilizando las ecuaciones de Boussinesq multiplicados por 2. Un muro de contención debe tener durante su ejecución barbacanas a nivel del suelo más bajo que faciliten el drenaje del agua. El relleno a efectuar entre el terreno natural y el muro de contención debe ser de un material que garantice la seguridad y estabilidad del área, y sea capaz de soportar las cargas a las que será expuesto.
4.13.1.2 Muros con Sobrecarga Lateral
En caso de que sobre un muro pueda producirse un empuje lateral se debe justificar su espesor mediante un cálculo de resistencia. En el paramento del muro se debe indicar en forma visible y permanente la altura hasta la cual se ha previsto el empuje. Cuando un muro corresponda a depósitos de materiales a granel o en estiba y el empuje lateral no hubiera sido previsto, se debe colocar sobre el paramento una leyenda en forma visible y permanente que advierta la prohibición de apoyar elementos sobre el mismo.
4.13.1.3 Utilización de Muros Existentes
4.13.1.4 Obligación del Propietario sobre el Muro Privativo
En las obras en las que se edifique en un predio lindero a otro, en el cual exista un muro o muros privativos debe asegurarse la estanqueidad de la junta entre ambos muros y evitar los efectos de la humedad.
4.14 Ejecución las Instalaciones
Las exigencias para la ejecución de las instalaciones se rigen de acuerdo a lo enunciado en los Reglamentos Técnicos, teniendo siempre como objetivo los principios generales de este código. Las mismas alcanzan a las siguientes instalaciones:
4.15 Contrapisos y Solados o Pisos
Resulta de carácter obligatorio asentar sobre un contrapiso todo piso o solado que pretenda ejecutarse sobre un terreno, ya sea en la construcción de edificios nuevos o en la modificación o refacción de edificios preexistentes.
La Autoridad de Aplicación puede eximir de la obligación de ejecutar contrapiso o solado en los locales que por su destino o uso requieran suelo de tierra. No obstante, el contrapiso y el solado deben ejecutarse cuando por cambio de destino o uso del local ya no quede justificada la excepción otorgada por la Autoridad de Aplicación.
Las especificaciones técnicas en cuanto a materiales y sistemas de ejecución de contrapisos y solados, así como las exigencias mínimas a cumplimentar son las que establezca la Autoridad de Aplicación a través de los Reglamentos Técnicos.
4.16 Techos y Cubiertas
Los sistemas de construcción de los techos, los tipos de techos según los materiales que podrán utilizarse o según el diseño de los mismos, los detalles constructivos y/o terminaciones permitidos, y las instalaciones que podrán ejecutarse sobre los techos, así como las exigencias mínimas a cumplimentar deben ser las que establezca la Autoridad de Aplicación a través de los Reglamentos Técnicos que dicte al efecto, en concordancia con el Código Urbanístico vigente.
4.17 Conclusión de las Obras
Toda obra finalizada debe estar libre para permitir su habilitación y posterior ocupación. Se deben retirar los andamios, escombros y residuos, después de lo cual, es obligatoria la limpieza final para permitir el uso natural de la obra concluida.
C脫DIGO DE LA EDIFICACI脫N
T脥TULO 3
PROYECTO
3.1 Est茅tica Urbana
3.1.1 Generalidades.
Los proyectos de obra deben considerar las caracter铆sticas del 谩rea en la cual se emplaza y tomar en cuenta sus variables, adyacencia, condicionantes, el estudio de su estilo, su historia, la trama, el tejido urbano y la totalidad de su envolvente edilicia.
(Sustituido por Art. 5º de la Ley Nº 6.438, BOCBA Nº 6194 del 17/08/2021)
3.1.2 L铆nea y Nivel
3.1.2.1 Plano de Comparaci贸n de los Niveles
Se adopta como nivel de origen del plano de comparaci贸n para la medici贸n de alturas, el Origen Vertical del Sistema de Referencia Vertical Nacional seg煤n la normativa vigente en materia catastral.
(Sustituido por Art. 6º de la Ley Nº 6.438, BOCBA Nº 6194 del 17/08/2021)
3.1.2.2 Cota o Nivel de Origen del Proyecto
La Cota de la Parcela determina el nivel 0,00 o nivel de origen sobre el que se determinan los niveles de planta de un proyecto, as铆 como su altura m谩xima sobre la fachada y plano l铆mite.
En parcelas con L铆nea Oficial sobre m谩s de una calle, se debe determinar la Cota de Parcela sobre cada una de L铆neas Oficiales, a fin de respetar las alturas m谩ximas para cada calle, de acuerdo a la normativa urban铆stica.
Cuando sobre la longitud de la L铆nea Oficial de la parcela sobre un mismo frente existiera una pendiente mayor al tres por ciento (3 %), la fachada debe acompañar la pendiente, graduando su perfil, de acuerdo a lo que se establece en los Reglamentos T茅cnicos.
En parcelas ubicadas en zonas de barranca, se debe respetar la cota arquitect贸nica de la barranca.
(Sustituido por Art. 7º de la Ley Nº 6.438, BOCBA Nº 6194 del 17/08/2021)
3.1.2.3 Cota M铆nima de Riesgo H铆drico
En las zonas de Riesgo H铆drico determinadas en la normativa urban铆stica, el Organismo Competente en la materia, debe determinar las cotas m铆nimas de Riesgo H铆drico.
Las condiciones que deben respetar las construcciones que se realicen por debajo de la Cota M铆nima de Riesgo H铆drico se establecen en los Reglamentos T茅cnicos
(Sustituido por Art. 8º de la Ley Nº 6.438, BOCBA Nº 6194 del 17/08/2021)
3.1.2.4 Nivel del Predio y/o Patios en Planta Baja
Los predios y/o patios en planta baja pueden ser excavados o rellenados siempre que la nivelaci贸n del mismo garantice un adecuado desagüe pluvial hacia la v铆a p煤blica. La cota para los desagües de red cloacal debe cumplir con los m铆nimos exigidos por la empresa prestataria de los servicios sanitarios.
El nivel del predio, de patios y de locales puede ser inferior al nivel de origen del proyecto, siempre que se garantice la evacuaci贸n de aguas pluviales y/o l铆quidos cloacales mediante canalizaciones aprobadas por la reglamentaci贸n vigente
(Sustituido por Art. 9º de la Ley Nº 6.438, BOCBA Nº 6194 del 17/08/2021)
3.1.2.5 Materializaci贸n de la L铆nea Oficial
Toda construcci贸n nueva debe respetar el trazado de la L铆nea Oficial determinada para el predio. En casos donde su trazado no est茅 materializado o sea de dudosa delimitaci贸n, a solicitud del interesado, el Organismo Competente, puede emitir una certificaci贸n en donde se defina la L铆nea Oficial correspondiente al predio en cuesti贸n.
Es obligaci贸n conservar el trazado de la L铆nea Oficial de Esquina seg煤n la geometr铆a establecida en la normativa urban铆stica.
(Sustituido por Art. 10 de la Ley Nº 6.438, BOCBA Nº 6194 del 17/08/2021)
3.1.3 Cercas, Veredas y Ochavas
3.1.3.1 Obligaci贸n de Construir y Conservar Cercas, Veredas y/u Ochavas
Las obras de construcci贸n, mantenimiento, reparaci贸n y reconstrucci贸n de veredas, cercas y ochavas enunciados en la presente, deben ejecutarse de conformidad a las normas que se establecen a continuaci贸n y las especificaciones t茅cnicas que determine el 贸rgano Competente.
En el caso del acceso vehicular, la obligaci贸n del propietario frentista, se extiende a la de ejecutar y mantener el rebaje del cord贸n y una rampa en las condiciones que determine la normativa de aplicaci贸n.
El ancho m谩ximo del acceso vehicular debe ser del cincuenta por ciento (50%) del frente de la parcela, a excepci贸n de aquellos inmuebles afectados a actividades relativas al uso de transporte, log铆stica, carga y descarga, garaje y/o predios con ancho menor o igual a diez metros (10,00 m).
En los predios que contengan en su interior construcciones precarias o dep贸sitos de materiales, el Organismo Competente puede ordenar la ejecuci贸n de una cerca ciega, a fin de impedir la vista desde un punto situado a un metro con sesenta cent铆metros (1,60 m), sobre el cord贸n de la vereda opuesta
(Sustituido por Art. 11 de la Ley Nº 6.438, BOCBA Nº 6194 del 17/08/2021)
3.1.3.2 Veredas en Particular
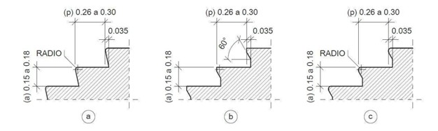
Las veredas deben ejecutarse con materiales que, por su firmeza, aporten estabilidad, durabilidad y rigidez. Dichos materiales deben ser antideslizantes, resistentes e inalterables al contacto con agua, l铆quidos en general o fluidos capaces de alterar sus condiciones. Tanto la calidad de materiales para solados de veredas como las pendientes, caracter铆sticas, y t茅cnicas de ejecuci贸n de las veredas se rigen de acuerdo a los requisitos enunciados en la normativa de veredas y aceras.
Las veredas se componen de tres (3) caracter铆sticas geom茅tricas b谩sicas:
(Sustituido por Art. 12 de la Ley Nº 6.438, BOCBA Nº 6194 del 17/08/2021)
3.1.3.2.1 Parquizaci贸n de Veredas
S贸lo pueden parquizarse aquellas veredas que, junto con el cord贸n o la franja divisoria que bordea la calzada (solia), tengan un ancho igual o mayor a tres metros y cuarenta cent铆metros (3,40 m), siguiendo los principios que determine el Organismo Competente.
(Sustituido por Art. 13 de la Ley Nº 6.438, BOCBA Nº 6194 del 17/08/2021)
3.1.3.3 Cercas y/o muros en Edificios de Per铆metro Libre y Semi Libre
En caso de construirse cercas y/o muros sobre la L铆nea Oficial o retirados de 茅sta, los mismos deben ser materializados permitiendo hasta el veinte por ciento (20 %) de tratamiento opaco y el ochenta por ciento (80 %) de tratamiento permeable y/o transparente.
(Sustituido por Art. 14 de la Ley Nº 6.438, BOCBA Nº 6194 del 17/08/2021)
3.1.4 Fachadas
3.1.4.1 Generalidades
Las partes exteriores de los edificios, fachadas de frente, contrafrente, fachadas interiores a patios, medianeras y cubiertas, deben corresponderse en sus conceptos y lineamientos con la est茅tica arquitect贸nica conforme lo requiera su emplazamiento y las caracter铆sticas de las 谩reas en la que se encuentren.
Los tanques, chimeneas, antenas, conductos, equipos de aire acondicionado, toldos y cerramientos de seguridad y dem谩s instalaciones y/o construcciones auxiliares (cañer铆as exteriores y desagües de equipos de aire acondicionado), ya sea que se encuentren colocadas sobre el edificio o de manera aislada, se consideran como pertenecientes al conjunto arquitect贸nico de aquel y deben hallarse en armon铆a con la est茅tica del todo.
En obras nuevas, ampliaciones o modificaciones de fachadas principales, los muros divisorios y privativos contiguos a predios linderos de un edificio que resulten visibles desde la v铆a p煤blica deben recibir similar tratamiento arquitect贸nico que la fachada principal, en toda su extensi贸n.
3.1.4.2 Muros Lindantes con Parques, Plazas, Plazoletas, Paseos P煤blicos o V铆as F茅rreas
Cuando un edificio o predio edificado o a edificar se encuentre lindando con parques, plazas, plazoletas, paseos p煤blicos o v铆as f茅rreas, debe darse a dichos muros lindantes un tratamiento de fachada similar a la fachada a v铆a p煤blica, pudiendo iluminar o ventilar de acuerdo a lo establecido en la normativa urban铆stica, y a lo establecido en el art铆culo 3.3.2 “Iluminaci贸n y Ventilaci贸n de Locales” del presente C贸digo.
La Autoridad de Aplicaci贸n puede disponer consideraciones particulares en los Reglamentos T茅cnicos en funci贸n de la situaci贸n urbana de cada caso, de conformidad a la normativa urban铆stica.
(Sustituido por Art. 15 de la Ley Nº 6.438, BOCBA Nº 6194 del 17/08/2021)
3.1.4.3 Barandas de Balcones
La baranda o antepecho debe tener una altura no menor a un metro (1,00 m) ni mayor que un metro con veinte cent铆metros (1,20 m), medidos desde el solado del balc贸n, y sus caladuras, los espacios entre hierros, balaustres u otros elementos constructivos deben resguardar de todo peligro.
(Sustituido por Art. 16 de la Ley Nº 6.438, BOCBA Nº 6194 del 17/08/2021)
3.1.4.4 Agregados sobre la Fachada
Sobre la fachada principal, las cercas y los muros de los pasajes de acceso com煤n, pueden colocarse instalaciones, cajas de conexiones y de medidores que desempeñen la funci贸n que requieran las empresas de servicios p煤blicos, debiendo mantenerse en todos los casos fijadas o amuradas en dichos frentes.
Todas las instalaciones de calefacci贸n y equipos de climatizaci贸n, as铆 como sus cañer铆as de alimentaci贸n y desagües, deben estar determinados y diseñados en los proyectos.
Se proh铆be la instalaci贸n de equipos de climatizaci贸n en los frentes por debajo de los tres metros (3,00 m) sobre la cota de parcela, cualquiera sea su modelo, t茅cnica o ubicaci贸n.
S贸lo pueden ser instalados de la L.O. hacia el interior del predio o edificio.
En las plantas altas, deben ubicarse en balcones y/o terrazas, salvo que se encuentre determinado en el diseño de la fachada, pudiendo s贸lo sobresalir un m谩ximo de treinta cent铆metros (0,30 m) de la l铆nea de fachada, ubicados ordenadamente siguiendo la instalaci贸n del conjunto de los usuarios y deben quedar mimetizadas con el frente, o soluciones similares aprobadas por la Autoridad de Aplicaci贸n.
Deben quedar cubiertos en su totalidad, quedando prohibida su colocaci贸n en m茅nsulas u otro tipo de soportes que sean visibles desde el exterior de cualquiera de sus fachadas.
Se proh铆ben las instalaciones de equipos de aire acondicionado de tipo “ventana” en la mamposter铆a, 茅stos pueden instalarse dentro de los vanos de las aberturas.
Para instalaciones de ventilaci贸n electromec谩nica (abertura para la toma y salida de equipos de extracci贸n de aire), se admite una altura m铆nima de dos metros con cincuenta cent铆metros (2,50 m) sobre la cota de parcela.
La colocaci贸n y/o instalaci贸n de agregados no establecidos expresamente en este C贸digo son admitidas siempre que no afecten la composici贸n arquitect贸nica del edificio y la est茅tica del lugar.
(Sustituido por Art. 17 de la Ley Nº 6.438, BOCBA Nº 6194 del 17/08/2021)
3.1.4.5 Cortinas de Seguridad y Motores de Accionamiento
Las cortinas de enrollar met谩licas de seguridad deben ser del tipo rejas transparentes, de cualquiera de los distintos diseños de caladuras.
El sistema y los motores de accionamiento deben ser ubicados en el interior del predio detr谩s de la L.O.
(Sustituido por Art. 18 de la Ley Nº 6.438, BOCBA Nº 6194 del 17/08/2021)
3.1.4.6 Fachada de Vidrio Tipo Integral
Las normas de calidad, de seguridad, mantenimiento y limpieza para el caso de la instalaci贸n de este tipo de fachada se establecen en los Reglamentos T茅cnicos.
(Sustituido por Art. 19 de la Ley Nº 6.438, BOCBA Nº 6194 del 17/08/2021)
3.1.4.7 Salientes Sobre Fachada
Sobre la v铆a p煤blica, se debe garantizar que todo volumen saliente se encuentre libre de riesgos. Ning煤n elemento de fachada puede sobresalir de la L.O. hasta la altura total de dicho volumen saliente, incluyendo hojas de puertas, hojas de ventanas, celos铆as, barandas, rejas, cortinas de enrollar y motores de accionamiento.
(Sustituido por Art. 20 de la Ley Nº 6.438, BOCBA Nº 6194 del 17/08/2021)
3.1.4.7.1 Salientes de Ornamentos
En la fachada principal s贸lo se permite sobresalir de la L铆nea Oficial en los siguientes casos:

(Incorporado por Art. 21 de la Ley Nº 6.438, BOCBA Nº 6194 del 17/08/2021)
3.1.4.7.2 Salientes del Cornisamiento
El cornisamento de un edificio puede sobresalir de la L.O. hasta treinta cent铆metros (0,30 m) o pueden tomar la misma dimensi贸n de la saliente de los predios linderos, siempre que se materialice una junta de dilataci贸n entre ambos cornisamentos.
(Incorporado por Art. 22 de la Ley Nº 6.438, BOCBA Nº 6194 del 17/08/2021)
3.1.4.7.3 Toldos
En la fachada principal de los edificios se proh铆be la colocaci贸n de toldos fijos.
Se pueden instalar toldos rebatibles hacia la L铆nea Oficial con una saliente m谩xima de un tercio (1/3) del ancho de la vereda.
En las peatonales o calles de tr谩nsito restringido se toma como saliente m谩xima un octavo (1/8) de la distancia entre L.O. opuestas.
Los toldos deben ser de materiales que por su composici贸n intr铆nseca sean resistentes al fuego y de f谩cil limpieza y mantenimiento.
Se proh铆ben los toldos con apoyos sobre la vereda, como as铆 tambi茅n los que se proyectan sobre el cord贸n o la l铆nea de alineaci贸n de 谩rboles o los que cubren, a煤n en parte, los accesos a estaciones del Subterr谩neo.
La estructura del toldo debe:
(Incorporado por Art. 23 de la Ley Nº 6.438, BOCBA Nº 6194 del 17/08/2021)
3.1.4.8 Chimeneas o Conductos para Evacuar Humos o Gases de Combusti贸n, Fluidos Calientes, T贸xicos, Corrosivos o Molestos
Las chimeneas o conductos se deben ejecutar de modo que no ocasionen perjuicios a terceros y que esos gases o fluidos sean convenientemente dispersados en la atm贸sfera, evitando molestias.
Los requerimientos necesarios para que sean satisfechos los prop贸sitos del p谩rrafo anterior se establecen en los Reglamentos T茅cnicos.
(Sustituido por Art. 24 de la Ley Nº 6.438, BOCBA Nº 6194 del 17/08/2021)
3.1.4.9 Utilizaci贸n de fachadas y veredas para Equipamiento Urbano y Señalizaci贸n
El Gobierno de la Ciudad Aut贸noma de Buenos Aires puede colocar en la fachada de un edificio y/o en la vereda de un predio las chapas de nomenclatura urbana, de señalizaci贸n de tr谩nsito, de señalamiento vertical, de indicaci贸n de paradas de veh铆culos de transporte, de nivelaci贸n y referencia catastral y otros similares, as铆 como todo otro equipamiento urbano y/o dispositivos y/o artefactos requeridos por los servicios de Seguridad P煤blica.
(Sustituido por Art. 25 de la Ley Nº 6.438, BOCBA Nº 6194 del 17/08/2021)
3.1.4.9.1 Salientes de Ornamentos
En la fachada principal s贸lo se permite sobresalir de la L铆nea Oficial L.O. en los siguientes casos:


(Derogado por Art. 113 de la Ley Nº 6.438, BOCBA Nº 6194 del 17/08/2021)
3.1.4.9.2 Salientes de Balcones
La baranda o antepecho debe tener una altura no menor a 1 m, ni mayor que 1,20 m, medidos desde el solado del balc贸n y sus caladuras, los espacios entre hierros, balaustres u otros elementos constructivos deben resguardar de todo peligro.
(Derogado por Art. 113 de la Ley Nº 6.438, BOCBA Nº 6194 del 17/08/2021)
3.1.4.9.3 Salientes del Cornisamiento
El cornisamento de un edificio puede sobresalir de la L.O. hasta 0,30 m cuando las cornisas de los predios linderos guarden la misma dimensi贸n de la saliente.
(Derogado por Art. 113 de la Ley Nº 6.438, BOCBA Nº 6194 del 17/08/2021)
3.1.4.9.4 Toldos
En la fachada principal de los edificios se proh铆be la colocaci贸n de toldos fijos. Los mismos deben ser rebatibles hacia la L铆nea Oficial y su saliente m谩xima de 1/3 del ancho de la vereda.
En las peatonales o calles de tr谩nsito restringido se toma como saliente m谩xima el 1/8 de la distancia entre L.O. opuestas.
Deben ser de materiales que por su composici贸n intr铆nseca sean resistentes al fuego y de f谩cil limpieza y mantenimiento.Quedan prohibidos los toldos con apoyos sobre la vereda, como as铆 tambi茅n los que se proyectan sobre el cord贸n o la l铆nea de alineaci贸n de 谩rboles o los que cubren, a煤n en parte, los accesos a estaciones del Subterr谩neo.
La estructura del toldo debe:
(Derogado por Art. 113 de la Ley Nº 6.438, BOCBA Nº 6194 del 17/08/2021)
3.1.4.10 Chimeneas o Conductos para Evacuar Humos o Gases de Combusti贸n, Fluidos Calientes, T贸xicos, Corrosivos o Molestos
Se deben ejecutar de modo que no ocasione perjuicios a terceros y que esos gases o fluidos sean convenientemente dispersados en la atm贸sfera, evitando molestias.
La Autoridad de Aplicaci贸n dispondr谩 mediante los reglamentos t茅cnicos los requerimientos (alturas de remate, materiales, etc.) que se estimen necesarios para que sean satisfechos los prop贸sitos del p谩rrafo anterior.
(Derogado por Art. 113 de la Ley Nº 6.438, BOCBA Nº 6194 del 17/08/2021)
3.1.5 Utilizaci贸n de los Predios para Servicios P煤blicos
El organismo competente puede colocar en la fachada de un edificio y/o en la vereda de un predio las chapas de nomenclatura urbana, deseñalizaci贸n de tr谩nsito, de señalamiento vertical, de indicaci贸n de paradas de veh铆culos de transporte, de nivelaci贸n y referencia catastral y otros similares.
El Gobierno de la Ciudad Aut贸noma de Buenos Aires puede instalar en los edificios dispositivos y artefactos requeridos por los servicios de seguridad p煤blica de la ciudad.
(Derogado por Art. 113 de la Ley Nº 6.438, BOCBA Nº 6194 del 17/08/2021)
3.2 Preservaci贸n Patrimonial
La salvaguarda y puesta en valor de los inmuebles incluidos en el Cat谩logo de Inmuebles Protegidos consignado en la normativa urban铆stica vigente imponen la obligaci贸n de proteger y ordenar las conductas de los habitantes en funci贸n de la preservaci贸n del patrimonio de la Ciudad y los elementos contextuales que contribuyen a su valoraci贸n. Toda intervenci贸n que se realice en inmuebles protegidos debe ser evaluada y visada por el Organismo Competente en la materia.
(Sustituido por Art. 26 de la Ley Nº 6.438, BOCBA Nº 6194 del 17/08/2021)
3.2.1 Alcances y Generalidades de Intervenci贸n Edilicia
Todo edificio catalogado puede ser objeto de obras de adaptaci贸n, refuncionalizaci贸n, ampliaci贸n, rehabilitaci贸n y/o su puesta en valor, atendiendo a lo definido en el T铆tulo 9 del C贸digo Urban铆stico. Las intervenciones deben ser orientadas, en su diseño, a los fines de cumplir con las exigencias b谩sicas establecidas en el presente C贸digo, con las consideraciones determinadas en el Cap铆tulo 3.10 “Edificios Existentes” y lo establecido en el T铆tulo 9 “Protecci贸n Patrimonial e Identidad” del C贸digo Urban铆stico. En todos los casos se debe consultar previamente al Organismo Competente en materia de Patrimonio.
Cuando de forma fundada no resulte posible cumplir todas las condiciones establecidas en el presente C贸digo, el profesional interviniente debe presentar las alternativas posibles, dentro de los ajustes razonables, de mejoramiento de las condiciones de seguridad, habitabilidad y accesibilidad, siempre que no desvirt煤en el car谩cter original de la obra, de acuerdo a lo previsto en “Grados de Intervenci贸n” del C贸digo Urban铆stico. Esta propuesta es considerada y evaluada por el Organismo Competente en la materia, quien, en acuerdo con la Autoridad de Aplicaci贸n, determina en cada caso, el grado de adecuaci贸n requerido.
(Sustituido por Art. 27 de la Ley Nº 6.438, BOCBA Nº 6194 del 17/08/2021)
3.2.2 Criterios Generales de Actuaci贸n
Las soluciones edilicias deben resolver los nuevos requerimientos, sus aplicaciones pr谩cticas, aspectos t茅cnicos, econ贸micos y operacionales en armon铆a con los Criterios de valoraci贸n urban铆sticos, arquitect贸nicos, hist贸ricos, simb贸licos y ambientales y de preservaci贸n seg煤n el Grado de Intervenci贸n admitido, manteniendo una visi贸n de conjunto, entendiendo al objeto arquitect贸nico no de un modo aislado sino conformando una unidad con su contexto espacial urbano, su evoluci贸n temporal y su proyecci贸n hacia el futuro. Deber谩 considerarse:
3.2.3 Niveles de Protecci贸n Edilicia
Las protecciones edilicias se clasifican, seg煤n la normativa urban铆stica vigente, en tres niveles:
(Derogado por Art. 114 de la Ley Nº 6.438, BOCBA Nº 6194 del 17/08/2021)
3.2.4 Grados de Intervenci贸n
- Grado de intervenci贸n 1:
Comprende las obras y/o acciones dirigidas a restituir las condiciones originales del edificio o aquellas que a lo largo del tiempo hayan sido agregadas y formen parte integral del mismo.
Caracter铆sticas:

(Derogado por Art. 114 de la Ley Nº 6.438, BOCBA Nº 6194 del 17/08/2021)
3.2.5 Rehabilitaci贸n: Intervenciones Edilicias
En los edificios existentes construidos seg煤n los planos aprobados con anterioridad al 1 de mayo de 1977, que opten por el r茅gimen de Rehabilitaci贸n establecido en la normativa urban铆stica, el volumen construido ser谩 considerado volumen conforme y pueden realizarse las siguientes obras y acciones:
(Derogado por Art. 114 de la Ley Nº 6.438, BOCBA Nº 6194 del 17/08/2021)
3.3 Habitabilidad
3.3.1 Locales
Los locales deben cumplir con las exigencias b谩sicas de calidad, habitabilidad, accesibilidad, salubridad, funcionalidad, sustentabilidad, seguridad y estanqueidad conforme los usos permitidos. Deben seguir los siguientes est谩ndares:
(Sustituido por Art. 28 de la Ley Nº 6.438, BOCBA Nº 6194 del 17/08/2021)
3.3.1.1 Clasificaci贸n de los Locales
Los locales se clasifican de la siguiente manera:
(Sustituido por Art. 29 de la Ley Nº 6.438, BOCBA Nº 6194 del 17/08/2021)
3.3.1.2 Dimensiones de los Locales
3.3.1.2.1 Altura M铆nima de Locales
La altura libre m铆nima de un local es la distancia comprendida entre el solado y el cielorraso terminados. En caso de existir vigas aparentes, el fondo del cielorraso debe ocupar una superficie no menor que los dos tercios (2/3), del 谩rea del local y las vigas deben dejar una altura libre no menor a dos metros con diez cent铆metros (2,10 m).
La altura m铆nima de cada local var铆a de acuerdo a su clase y superficie, de acuerdo a la siguiente tabla:
| Clase del local | Exigibles en locales (m2) |
Altura libre m铆nima del local: h (m) |
| Primera | Todos | 2,60 |
| Segunda | Hasta 3 | 2,10 |
| M谩s de 3 | 2,30 | |
| Tercera | Hasta 16 | 2,40 |
| M谩s de 16 | 2,60 | |
| Cuarta y Quinta | Hasta 16 | 2,10 |
| M谩s de 16 y hasta 30 | 2,30 | |
| M谩s de 30 | 2,60 |
Cuando el uso del local requiera c谩lculo de cubaje, el mismo considera como altura de cubaje la real del local hasta tres metros (3,00 m) de altura, aunque la altura del local fuese mayor a ese m谩ximo considerado.
En caso de existir un sector que no cumpla con la altura m铆nima exigida debe justificarse una altura promedio del local igual o mayor a la altura m铆nima, siempre que la altura m谩s baja del local no sea inferior a dos metros con treinta cent铆metros (2,30 m), y que la superficie debajo de la altura m铆nima no supere el treinta por ciento (30 %) de la superficie del local. En caso de existir un excedente sobre el treinta por ciento (30 %) de baja altura o un sector con una altura menor a dos metros con treinta cent铆metros (2,30 m), no se considera esta 煤ltima superficie como parte del lugar habitable.
(Sustituido por Art. 30 de la Ley Nº 6.438, BOCBA Nº 6194 del 17/08/2021)
3.3.1.2.2 Altura de Semis贸tano Equiparado a Planta Baja
Conforme lo dispuesto para alturas m铆nimas de los locales 1潞 y 3潞 Clase, un semis贸tano puede equipararse a Planta Baja, siempre que la altura del local sobresalga por lo menos en su mitad superior del nivel del solado exterior colindante y en correspondencia con todos los vanos exteriores.


(Sustituido por Art. 31 de la Ley Nº 6.438, BOCBA Nº 6194 del 17/08/2021)
3.3.1.2.3 Patios Bajo Cota de Parcela
Los patios que se encuentren por debajo de la cota de la parcela se consideran conforme a lo previsto en la normativa urban铆stica, y son aptos para iluminaci贸n y ventilaci贸n en funci贸n de lo determinado para cada clase de local.
Las condiciones para el caso de parcelas ubicadas en zonas de Riesgo H铆drico se establecen en los Reglamentos T茅cnicos.
(Sustituido por Art. 32 de la Ley Nº 6.438, BOCBA Nº 6194 del 17/08/2021)
3.3.1.2.4 Altura de Locales con Entrepiso y/o Entresuelo
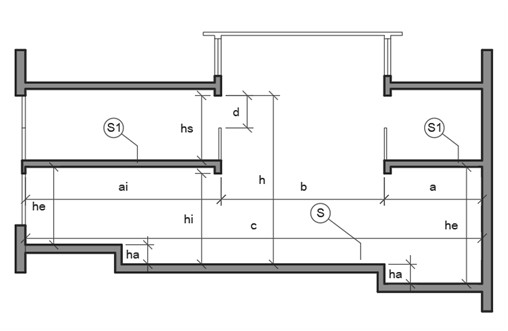
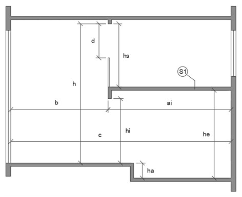
Todo local puede tener entrepisos y/o entresuelos de altura menor que la establecida en el art铆culo 3.3.1.2.1 "Altura M铆nima de Locales", siempre que se cumplan las siguientes condiciones:
d ≥ hs / 2
d: Espacio libre por encima de la baranda del entrepiso;

Tabla dimensiones m谩ximas de la planta del entresuelo:
| Tipo de Ventilaci贸n | Dimensiones m谩ximas de a y ai seg煤n altura entresuelo hs |
|
| hs ≤ 2,40 m | hs > 2,40 m | |
| Borde solo exclusivamente | a ≤ 1,50 hs | a ≤ 2 hs |
| Suplementaria o borde patio vertical | ai ≤ 3 hs | ai ≤ 4 hs |
b ≥ 1/3 c; b ≥ hi
Donde:(Sustituido por Art. 33 de la Ley Nº 6.438, BOCBA Nº 6194 del 17/08/2021)
3.3.1.3 谩reas y Lados M铆nimos de Locales
Las 谩reas y dimensiones m铆nimas de los locales deben permitir el correcto desarrollo de las actividades que en ellos se realizan, seg煤n el destino o Clase de local indicado, sin perjuicio de los requisitos espec铆ficos determinados en Cap铆tulo 3.8 “Condiciones para determinados usos en el proyecto”.
En los locales de Primera Clase y Tercera Clase, cuando el Uso determinado no especifique dimensi贸n m铆nima, se debe garantizar un espacio libre para circulaci贸n que permita la inscripci贸n de un c铆rculo de un metro setenta cent铆metros (1,70 m) de di谩metro.
Cuando, a criterio de la Autoridad de Aplicaci贸n, se considere que las dimensiones indicadas en los planos no se condicen con el uso del local, se puede solicitar mayor informaci贸n para corroborar el correcto funcionamiento del local de acuerdo al uso indicado.
Forma de medir locales:


La superficie y lados m铆nimos se miden con exclusi贸n de los espacios para guardado empotrados, salvo que se indique lo contrario en las prescripciones para usos particulares.
(Sustituido por Art. 34 de la Ley Nº 6.438, BOCBA Nº 6194 del 17/08/2021)
3.3.1.4 Tolerancias
En t茅rminos generales, las tolerancias se definen seg煤n el tipo de obra, de acuerdo a la Categor铆a que se declaren para las mismas y en funci贸n de condiciones f铆sicas y constructivas, las que no deben afectar las condiciones de seguridad ni ambientales para sus ocupantes. Esta tolerancia se aplica para errores de obra, y no para la etapa de otorgamiento de permiso.
Se puede tolerar una diferencia m谩xima del 3% de los valores num茅ricos de los anchos y/o superficies y alturas m铆nimas de los locales determinados en los art铆culos anteriores.
Los lados m铆nimos pueden verse alterados siempre que se d茅 cumplimiento a la superficie reglamentaria, y se cumpla con las dimensiones m铆nimas en aperturas de puertas reglamentarias, anchos de pasos entre artefactos sanitarios, y entre estos y divisorios.
No se admite ning煤n tipo de tolerancia en los anchos de puertas.
3.3.1.5 Subdivisi贸n y Unificaci贸n de Locales
Un local puede ser subdividido en dos (2) o m谩s partes aisladas con tabiques, mamparas, muebles u otros dispositivos fijos y seguir conservando su uso, dimensiones y las condiciones de iluminaci贸n y ventilaci贸n previos a la subdivisi贸n, siempre que el medio divisor cuente con una altura m谩xima de un metro con ochenta cent铆metros (1,80 m), o dos tercios (2/3) de la altura del local medidos sobre el solado.
Si el medio divisor supera el metro con ochenta cent铆metros (1,80 m) de altura m谩xima o bien toma toda la altura libre del local, cada una de las partes resultantes deben cumplir las prescripciones del presente C贸digo referentes al uso, dimensiones (lados y superficie) y condiciones de iluminaci贸n y ventilaci贸n.
En locales de permanencia con iluminaci贸n y/o ventilaci贸n natural, se permiten divisiones de m谩s de un metro con ochenta cent铆metros (1,80 m) de altura m谩xima y hasta los dos tercios (2/3) de la altura del local, en caso de que los vanos de iluminaci贸n y ventilaci贸n se encuentren por encima de dicha altura.
Dos (2) o m谩s locales pueden ser unificados, siempre que al unificarse el local resultante cumpla con las exigencias del uso y las condiciones de habitabilidad, seguridad y dem谩s requerimientos correspondientes, exigidos por dicho uso.
(Sustituido por Art. 35 de la Ley Nº 6.438, BOCBA Nº 6194 del 17/08/2021)
3.3.1.6 Locales para Determinadas Instalaciones
3.3.1.6.1 Locales para Calderas y Otros Dispositivos T茅rmicos
Los locales para calderas y otros aparatos t茅rmicos deben cumplir los siguientes requisitos:
(Sustituido por Art. 36 de la Ley Nº 6.438, BOCBA Nº 6194 del 17/08/2021)
3.3.1.6.2 Locales para Instalaciones y Medidores de las Empresas de Servicios P煤blicos
Todos los edificios nuevos deben suministrar a las empresas de servicios p煤blicos locales o espacios para instalaci贸n de gabinetes o armarios, conductos, permisos de paso de instalaciones o similares, requeridos para la prestaci贸n de los servicios de energ铆a, salubridad, gas, comunicaciones, señalizaci贸n luminosa y alumbrado p煤blico, de acuerdo con los requerimientos que dichas empresas formulen. Se incluyen en esta obligaci贸n las ampliaciones y modificaciones de edificios existentes. Los locales para medidores de electricidad no deben comunicar con otros locales que contengan instalaciones de gas. La ubicaci贸n de los medidores y sus gabinetes deben cumplir las disposiciones de la empresa pertinente. Al frente de los medidores debe quedar un espacio no inferior a 1 m de ancho libre para circulaci贸n.
Los locales o espacios requeridos para la prestaci贸n de los servicios de energ铆a el茅ctrica se destinar谩n a c谩maras, centros de transformaci贸n, equipos de maniobra o medici贸n. Deben ser cerrados, con puertas de abrir hacia afuera y cerradura de seguridad, todo ello certificado por la empresa pertinente.
Los locales para medidores de gas no deben comunicar con otros locales que tengan tableros, medidores de electricidad, calderas, motores, aparatos t茅rmicos y otros dispositivos similares. La ubicaci贸n de los medidores y las aberturas de ventilaci贸n deben cumplir las disposiciones de la empresa pertinente. Al frente de los medidores debe quedar un espacio no inferior a 1 m de ancho libre para circulaci贸n.
El propietario puede proponer locales o espacios de dimensiones diferentes a las establecidas, siempre que cuenten con la conformidad de la empresa pertinente.
Los edificios con protecci贸n patrimonial pueden exceptuarse de estos requisitos, seg煤n lo eval煤e el Organismo competente.
3.3.1.6.3 Espacio Destinado para el Personal de Mantenimiento que Trabaje en un Edificio
Se debe contar con un espacio destinado para el personal que trabaja en el mantenimiento, vigilancia y limpieza del edificio. Dicho espacio debe estar comunicado con un medio exigido de salida y cumplir con las condiciones establecidas en 3.5.1 “Servicio M铆nimo de Salubridad”.
La superficie m铆nima del local debe ser:
(Sustituido por Art. 37 de la Ley Nº 6.438, BOCBA Nº 6194 del 17/08/2021)
3.3.1.6.4 Local Destinado a Lactario
Este local es obligatorio para todos los edificios p煤blicos y los establecimientos educativos de nivel inicial e institutos de menores de seis (6) años cuando asistan menores de un año.
Debe darse cumplimiento a las condiciones previstas para los locales de Segunda Clase. Su superficie m铆nima es de siete metros con cincuenta cent铆metros cuadrados (7,50 m²).
Los lactarios deben estar ubicados en 谩reas seguras y tranquilas, independizados de los servicios de salubridad comunes. Pueden ser incorporados dentro de locales de espera, hall, espacio com煤n o acceso al edificio, o adyacente a los mismos, siempre que sean independientes y que no est茅 integrado a la circulaci贸n.
Debe respetarse su privacidad, garantizando el uso exclusivo del mismo. Asimismo, debe contar con los elementos m铆nimos que brinden bienestar, confort e higiene durante el proceso de extracci贸n y conservaci贸n de la leche materna durante el horario de trabajo.
(Sustituido por Art. 38 de la Ley Nº 6.438, BOCBA Nº 6194 del 17/08/2021)
3.3.1.6.5 Locales para Cocinar
Los locales destinados a cocina o espacio para cocinar, ubicados dentro de cualquier uso, ya sea principal, complementario o accesorio, deben cumplir con los siguientes requisitos, siempre que no se especifique lo contrario en el uso particular:
(Incorporado por Art. 39 de la Ley Nº 6.438, BOCBA Nº 6194 del 17/08/2021)
3.3.1.6.6 Estacionamiento Vehicular
Las prescripciones a continuaci贸n son de aplicaci贸n a los locales, unidades de uso y/o edificios destinados a lugar de estacionamiento de veh铆culos incluidos en cualquiera de los usos de suelo regulados por la normativa urban铆stica, y se complementan con las prescripciones particulares para los usos espec铆ficos contenidos en el Cap铆tulo 3.8 “Condiciones para Determinados Usos en el Proyecto” del presente C贸digo.













(Incorporado por Art. 40 de la Ley Nº 6.438, BOCBA Nº 6194 del 17/08/2021)
3.3.1.6.7 Estacionamiento de Bicicletas
Las regulaciones de este art铆culo alcanzan a toda superficie destinada a estacionamiento de bicicletas.
(Incorporado por Art. 41 de la Ley Nº 6.438, BOCBA Nº 6194 del 17/08/2021)
3.3.2 Iluminaci贸n y Ventilaci贸n de Locales
3.3.2.1 Generalidades
Los par谩metros que definen la calidad del aire interior son:
(Sustituido por Art. 42 de la Ley Nº 6.438, BOCBA Nº 6194 del 17/08/2021)
3.3.2.2 Clasificaci贸n de las Relaciones de Iluminaci贸n y Ventilaci贸n
Las relaciones y c谩lculos de ventilaci贸n e iluminaci贸n dependen de la clase de local de que se trate conforme a 3.3.1.1 “Clasificaci贸n de los Locales”.
Se determinan las siguientes opciones de iluminaci贸n y ventilaci贸n:
(Sustituido por Art. 43 de la Ley Nº 6.438, BOCBA Nº 6194 del 17/08/2021)
3.3.2.3 Iluminaci贸n y Ventilaci贸n de los Locales de Permanencia o de Primera Clase.
Un local de permanencia o de primera clase, debe recibir luz del d铆a y ventilaci贸n de Espacio Urbano. Los locales de primera clase ubicados desde la altura m谩xima y hasta el plano l铆mite pueden iluminar y ventilar a patio vertical.
| i = | A |
| x |
i: El 谩rea m铆nima de los vanos de iluminaci贸n;
A: El 谩rea libre de la planta del local;
x: Valor dependiente de la ubicaci贸n del vano seg煤n cuadro:
| Ubicaci贸n de Vano que da a Espacio Urbano |
x |
| Lateral, bajo parte cubierta | 10 |
| Lateral, libre de parte cubierta | 12 |
Cuando el largo “a” de la planta de un local rectangular sea mayor que dos veces el ancho “b” y adem谩s el vano se ubique en el lado menor, o pr贸ximo a 茅ste, dentro del tercio lateral del lado mayor, se aplica la siguiente f贸rmula:
| i = | A | (r - 1) |
| x | ||
| r: a / b | ||

| k = | i |
| 3 |
(Sustituido por Art. 44 de la Ley Nº 6.438, BOCBA Nº 6194 del 17/08/2021)
3.3.2.3.1 Ventanas de los Locales en S贸tano o Semis贸tano
Cuando las ventanas den sobre la v铆a p煤blica y cuyo alf茅izar diste menos que un metro (1m) del nivel de piso terminado de vereda, deben ser resistentes a impactos contra roturas y no tener apertura. Deben complementarse con ventilaci贸n por rejas fijas o conductos de ventilaci贸n; la superficie vidriada no debe ser transparente.
(Sustituido por Art. 45 de la Ley Nº 6.438, BOCBA Nº 6194 del 17/08/2021)
3.3.2.3.2 Iluminaci贸n y Ventilaci贸n en Altura Mayor a cuarenta y cinco metros (45 m)
En locales con vanos situados a alturas superiores a los cuarenta y cinco metros (45 m), se pueden considerar criterios de flexibilizaci贸n de los requerimientos m铆nimos de 谩rea de ventilaci贸n de acuerdo a condiciones particulares, presentadas y debidamente fundamentadas para casos de succiones y presiones de viento, siempre que se garanticen las renovaciones horarias y se cumpla con los requerimientos de calidad de aire interior.
(Sustituido por Art. 46 de la Ley Nº 6.438, BOCBA Nº 6194 del 17/08/2021)
3.3.2.4 Iluminaci贸n y Ventilaci贸n de los Locales Complementarios o de Segunda Clase
Un local complementario puede iluminar de manera artificial y ventilar por conducto o de manera mec谩nica, salvo indicaci贸n en contrario en los usos particulares. En caso de recibir luz del d铆a y ventilaci贸n natural, puede hacerlo por vano o claraboya que d茅 tanto a Patio Vertical o vac铆o de edificaci贸n como a espacio urbano.
El 谩rea de iluminaci贸n y ventilaci贸n m铆nima debe ser:
i = 0,50m2
k= 0,35m2
(Sustituido por Art. 47 de la Ley Nº 6.438, BOCBA Nº 6194 del 17/08/2021)
3.3.2.5 Iluminaci贸n y Ventilaci贸n de los Locales de Permanencia Eventual o de Tercera Clase
Un local de tercera clase puede iluminar y ventilar tanto a espacio urbano, a patio vertical, vac铆o de edificaci贸n o de manera artificial indistintamente, salvo que el uso particular establezca una condici贸n espec铆fica. Las 谩reas de los vanos para la iluminaci贸n y la ventilaci贸n, laterales o cenitales, deben distribuirse uniformemente. Se permite la iluminaci贸n cenital por claraboya o por vidrios de piso que den al exterior.
| i = | A |
| x |
| Ubicaci贸n del Vano |
Vano que da a Espacio Urbano |
Vano que da a Patio Vertical |
Claraboya o vidrio de piso |
Vidrio de piso al nivel del solado transitable |
| Lateral, bajo parte cubierta |
8 | no permitido | - | - |
| Lateral, libre de parte cubierta |
10 | 5 | - | - |
| Cenital | - | 10 | 6 |
| k ≧ | i |
| 3 |
I = A / 10
Donde:(Sustituido por Art. 48 de la Ley Nº 6.438, BOCBA Nº 6194 del 17/08/2021)
3.3.2.6 Iluminaci贸n y Ventilaci贸n de Locales de Transito o de Cuarta Clase
Un local de cuarta clase no requiere, en general, recibir luz del d铆a y ventilaci贸n natural.
Puede recibir ventilaci贸n a trav茅s de puerta, ventana o reja de ventilaci贸n conectada a espacio urbano a no m谩s de quince metros (15,00 m) del sector m谩s alejado y con una superficie de ventilaci贸n:
K = A / 30
Donde:(Sustituido por Art. 49 de la Ley Nº 6.438, BOCBA Nº 6194 del 17/08/2021)
3.3.2.7 Iluminaci贸n y Ventilaci贸n de Locales sin Permanencia o de Quinta Clase
La iluminaci贸n y ventilaci贸n de los locales de quinta clase puede hacerse por conducto, las caracter铆sticas de los mismos se rigen por lo que se indique en los Reglamentos T茅cnicos correspondientes.
(Sustituido por Art. 50 de la Ley Nº 6.438, BOCBA Nº 6194 del 17/08/2021)
3.3.2.8 Iluminaci贸n y Ventilaci贸n Natural de Locales a Trav茅s de Partes Cubiertas
Un local puede recibir iluminaci贸n y ventilaci贸n natural a trav茅s de partes cubiertas, tales como galer铆a, porche, balc贸n, alero u otra saliente, siempre que se cumplan las condiciones enumeradas a continuaci贸n:
| Clase de local | VANO DEL LOCAL UBICADO FRENTE A | ||
| Patio Vertical | Espacio Urbano | Vereda Cubierta | |
| Primera | no permitido | S ≤ h x 1,5 (No puede exceder el l铆mite establecido en “limitaciones de las saliente de la fachada) |
S = A la saliente del p贸rtico |
| Segunda | S ≤ h x 1,5 | ||
| Tercera | no permitido en vivienda |
||
| Cuarta | S ≤ h x 1,5 | ||
| Quinta | - | ||






(Sustituido por Art. 51 de la Ley Nº 6.438, BOCBA Nº 6194 del 17/08/2021)
3.3.2.9 Iluminaci贸n y Ventilaci贸n a Patios bajo Cota de Parcela
Los patios verticales pueden considerarse aptos para ventilaci贸n e iluminaci贸n natural hasta una cota m谩xima de tres
(Sustituido por Art. 52 de la Ley Nº 6.438, BOCBA Nº 6194 del 17/08/2021)
3.3.2.10 Ventilaci贸n Natural por Conducto
La ventilaci贸n de locales puede efectuarse a trav茅s de conductos uniformes en toda su trayectoria, los cuales deben cumplir con las exigencias m铆nimas establecidas en el presente C贸digo y seg煤n se establece los Reglamentos T茅cnicos, de manera tal que se cumpla lo requerido para la ventilaci贸n natural de los locales.
Los locales ubicados en s贸tanos y los dep贸sitos, siempre que por su destino no requieran otra forma de ventilaci贸n, deben ventilar permanentemente por conducto.
Los locales de segunda pueden ser ventilados mediante sistemas de conductos 煤nicos, denominados “Colectores de Ventilaci贸n”.
(Sustituido por Art. 53 de la Ley Nº 6.438, BOCBA Nº 6194 del 17/08/2021)
3.3.2.11 Ventilaci贸n por Medios Mec谩nicos
Los locales de segunda, tercera, cuarta y quinta clase pueden ventilarse por un sistema de ventilaci贸n mec谩nica que asegure la renovaci贸n del aire.
Cualquier local de uso rotativo o eventual puede contar con ventilaci贸n mec谩nica en reemplazo de la ventilaci贸n natural.
3.3.2.12 Iluminaci贸n Artificial
Los locales de segunda, tercera, cuarta y quinta clase pueden iluminarse con luz artificial, salvo que las prescripciones para el uso determinado indiquen lo contrario.
3.3.2.13 Iluminaci贸n Suplementaria y Vistas
3.3.2.13.1 Apertura de Vanos en Muro Divisorio o en Muro Privativo Contiguo a Predio Lindero
Para proporcionar iluminaci贸n suplementaria a un local, se puede realizar la apertura de vanos en el muro divisorio o privativo contiguo a predio lindero, siempre que dichos vanos sean del tipo paño fijo. El antepecho del vano debe estar ubicado a no menos de un metro con treinta cent铆metros (1,30 m) sobre el nivel de piso interior, en caso de tratarse de una abertura semi transparente. En caso de realizarse una abertura transparente, el antepecho del vano debe estar, como m铆nimo a un metro con ochenta cent铆metros (1,80 m) sobre el nivel del piso interior.
El vano no puede ubicarse a menos de tres metros (3,00 m) del nivel de piso exterior m谩s pr贸ximo del predio lindero.
Los vanos sobre muros divisorios o muros privativos contiguos a predio lindero no se consideran a los efectos del cumplimiento de los requerimientos de iluminaci贸n y ventilaci贸n.
(Sustituido por Art. 55 de la Ley Nº 6.438, BOCBA Nº 6194 del 17/08/2021)
3.3.2.13.2 Intercepci贸n de Vistas entre Unidades de Uso Independiente en un Mismo Predio y a Predios Linderos
Pueden colocarse tabiques o elementos interceptores de vistas entre unidades de uso independiente de un mismo predio, o entre unidades de uso y partes comunes de un mismo edificio.

3.3.2.14 Separaci贸n M铆nima de Construcci贸n Contigua a Eje Divisorio entre Predios
Toda construcci贸n no adosada ni apoyada a un muro separativo entre predios debe estar alejada del eje de este muro por lo menos un metro con quince cent铆metros (1,15 m). Seg煤n Gr谩fico:



(Sustituido por Art. 57 de la Ley Nº 6.438, BOCBA Nº 6194 del 17/08/2021)
3.3.2.15 Especificaciones para Cada Tipo de Local
Aquellas especificaciones que no se encuentren en el presente, se regir谩n de acuerdo a los requisitos generales y a las disposiciones reglamentarias que del presente realice la Autoridad de Aplicaci贸n.
(Derogado por Art. 115 de la Ley Nº 6.438, BOCBA Nº 6194 del 17/08/2021)
3.4 Medios de Salida y Accesibilidad
3.4.1 Condiciones B谩sicas de Acceso Universal a los Edificios
El presente C贸digo establece las exigencias m铆nimas de accesibilidad universal como requisitos para la integraci贸n de todos los ciudadanos, sin perjuicio de sus caracter铆sticas funcionales.
Las condiciones b谩sicas de acceso universal garantizan que todas las personas pueden utilizar un edificio, visitarlo, acceder a sus servicios y prestaciones, independientemente de sus capacidades. Las exigencias m铆nimas contemplan los espacios de ingreso y/o egreso a los locales de los edificios y las dimensiones de los mismos. Sin perjuicio de las dimensiones exigibles, algunos elementos y espacios requerir谩n, adem谩s, medios de acceso alternativos o bien la adopci贸n de medidas adicionales que aseguren el acceso universal.
Son espacios o construcciones que configuran acceso, los siguientes:
(Sustituido por Art. 58 de la Ley Nº 6.438, BOCBA Nº 6194 del 17/08/2021)
3.4.2 Ancho de Entradas y Pasos Generales o P煤blicos
La entrada o un paso general o p煤blico debe tener, en cualquier direcci贸n, un ancho libre no inferior a un metro con cincuenta cent铆metros (1,50 m), siempre que en el presente C贸digo no se establezca una medida determinada.
(Sustituido por Art. 59 de la Ley Nº 6.438, BOCBA Nº 6194 del 17/08/2021)
3.4.3 Puertas





(Sustituido por Art. 60 de la Ley Nº 6.438, BOCBA Nº 6194 del 17/08/2021)
3.4.3.1 Escaleras Principales - Sus Caracter铆sticas
Las escaleras principales de un edificio deben estar provistas de pasamanos a ambos lados, siendo parte integrante de las mismas los rellanos o descansos.
El acceso de una escalera principal debe ser f谩cil y franco, a trav茅s de lugares comunes de paso que comuniquen con cada unidad de uso y a cada piso, seg煤n se establece en "Medios de salida. Evacuaci贸n”.
La escalera principal debe tener las siguientes caracter铆sticas:
2a + p = 0,60 a 0,63
Donde:







(Derogado por Art. 116 de la Ley Nº 6.438, BOCBA Nº 6194 del 17/08/2021)
3.4.3.2 Escaleras Secundarias - Caracter铆sticas
Las escaleras secundarias deben ser practicables, siendo parte integrante de las mismas los rellanos y descansos. Cuando las escaleras tengan forma helicoidal no regir谩n las limitaciones del 铆tem (a y el 铆tem (d).

(Derogado por Art. 116 de la Ley Nº 6.438, BOCBA Nº 6194 del 17/08/2021)
3.4.3.3 Caja de Escalera
Los edificios a construir deben conformar caja de escalera de acuerdo a las siguientes generalidades:
(Derogado por Art. 116 de la Ley Nº 6.438, BOCBA Nº 6194 del 17/08/2021)
3.4.3.4 Escaleras Verticales o de Gato
La escalera vertical o de gato puede servir de acceso s贸lo a sectores a los cuales se accede de modo espor谩dico, como los siguientes:
(Derogado por Art. 116 de la Ley Nº 6.438, BOCBA Nº 6194 del 17/08/2021)
3.4.3.5 Escaleras rampadas
Una escalera rampada debe tener las siguientes caracter铆sticas:
(Derogado por Art. 116 de la Ley Nº 6.438, BOCBA Nº 6194 del 17/08/2021)
3.4.4 Escalones en Pasos y Puertas. Diferencias en Nivel de Piso Terminado
Todos los desniveles que se proyecten en la entrada de un edificio o bien en un paso o corredor deben ser salvados por escaleras o escalones que den cumplimiento a lo prescrito en el art铆culo 3.4.6.1"Escaleras Principales - Sus Caracter铆sticas" del presente C贸digo, o por rampas fijas, de acuerdo a lo prescrito en el art铆culo 3.4.5 “Rampas” del presente C贸digo.
Los escalones siempre deben ser complementados por rampas ejecutadas seg煤n el art铆culo pertinente o por medios alternativos de elevaci贸n, seg煤n lo prescrito en el art铆culo 3.9.10.28 "Medios Alternativos de Elevaci贸n” del presente C贸digo.
No se admiten escalones en coincidencia con el umbral de las puertas y en su proximidad; las puertas que se coloquen en circulaciones que presenten escalones deben mantener una distancia de noventa y cinco cent铆metros (0.95m), entre dicho desnivel y el dispositivo de accionamiento de la puerta y/o el filo de la hoja de la puerta en posici贸n abierta seg煤n corresponda.
Entre dos niveles de piso terminado en un mismo local, paso o corredor, pueden existir diferencias de hasta dos cent铆metros (0,02 m), sin necesidad de ser salvadas por rampas ni medio alternativo. Tampoco se requiere rampa ni medio alternativo, cuando el desnivel entre dos niveles de piso terminado sea salvado por una pendiente menor o igual al tres por ciento (3%).
(Sustituido por Art. 61 de la Ley Nº 6.438, BOCBA Nº 6194 del 17/08/2021)
3.4.5 Rampas
Para comunicar pisos entre s铆 o para salvar cualquier desnivel, se puede disponer una rampa en reemplazo o complemento de la(s) escalera(s) o escal贸n(es). La llegada a la rampa debe ser accesible y a trav茅s de espacios de acceso com煤n de paso, que comuniquen cada unidad de uso y cada piso.
(Sustituido por Art. 62 de la Ley Nº 6.438, BOCBA Nº 6194 del 17/08/2021)
3.4.5.1 Rampas que no Cuenten con Medios Alternativos de Elevaci贸n
El acceso a una rampa debe ser f谩cil y franco. Cuando resulte de uso com煤n para distintas unidades de uso, la misma debe ser accesible desde un vest铆bulo general o p煤blico. La pendiente m谩xima se define seg煤n tabla. Su solado debe ser antideslizante.
Toda rampa con diferencia superior a un metro con cuarenta cent铆metros (1,40 m) entre solados, debe complementarse con medios alternativos de elevaci贸n.
Estas rampas deben tener las siguientes caracter铆sticas:
| Altura a salvar “h” (m) |
Porcentaje | Relaci贸n alto/largo h/l | Observaciones |
| h < 0,075 | 20% | 1/5 | Sin descanso |
| 0,075 ≤ h < 0,20 | 12,50% | 1/8 | |
| 0,20 ≤ h < 0,30 | 10% | 1/10 | |
| 0,30 ≤ h <0,50 | 8,33% | 1/12 | |
| 0,50 ≤ h < 0,75 | 8% | 1/12,5 | Con descanso (s) |
| 0,75 ≤ h < 1 | 6,25% | 1/16 | |
| 1 ≤ h < 1,40 | 6% | 1/16,6 | |
| h ≥ 1,40 | 5% | 1/20 |
| Altura a salvar “h” (m) |
Porcentaje | Relaci贸n alto/largo h/l |
Observaciones |
| h < 0,075 | 12,5% | 1/8 | Sin descanso |
| 0,075 ≤ h < 0,20 | 10% | 1/10 | |
| 0,20 ≤ h < 0,30 | 8,33% | 1/12 | |
| 0,30 ≤ h < 0,50 | 8% | 1/12,5 | |
| 0,50 ≤ h < 0,75 | 6,25% | 1/16 | Con descanso (s) |
| 0,75 ≤ h < 1 | 6% | 1/16,6 | |
| 1 ≤ h < 1,40 | 5% | 1/20 | |
| h ≥ 1,40 | 4% | 1/25 |







(Sustituido por Art. 63 de la Ley Nº 6.438, BOCBA Nº 6194 del 17/08/2021)
3.4.5.2 Rampas no Exigidas
Cuando, a juicio de la Autoridad de Aplicaci贸n, la accesibilidad en el edificio se encuentre plenamente satisfecha bajo los t茅rminos de la reglamentaci贸n vigente, se permite la realizaci贸n de “rampas peatonales”, cuyas caracter铆sticas deben ajustarse a lo siguiente:
(Sustituido por Art. 64 de la Ley Nº 6.438, BOCBA Nº 6194 del 17/08/2021)
3.4.5.3 Rampas no Exigidas
Cuando, a juicio de la autoridad de aplicaci贸n, la accesibilidad en el edificio se encuentre plenamente satisfecha bajo los t茅rminos de la reglamentaci贸n vigente, se permitir谩 la realizaci贸n de “rampas peatonales”, cuyas caracter铆sticas deben ajustarse a lo siguiente:
(Derogado por Art. 116 de la Ley Nº 6.438, BOCBA Nº 6194 del 17/08/2021)
3.4.6 Escaleras
Las escaleras deben cumplir con los requisitos detallados a continuaci贸n, seg煤n su ubicaci贸n y locales a los que sirven .
(Sustituido por Art. 65 de la Ley Nº 6.438, BOCBA Nº 6194 del 17/08/2021)
3.4.6.1 Escaleras Principales - Sus Caracter铆sticas
Las escaleras principales de un edificio deben estar provistas de pasamanos a ambos lados, siendo parte integrante de las mismas los rellanos o descansos.
El acceso de una escalera principal debe ser f谩cil y franco. Cuando constituya medio exigido de salida com煤n para diversas unidades de uso, se debe acceder a ella a trav茅s de espacios de acceso com煤n de paso que comuniquen con cada unidad de uso y a cada piso, seg煤n se establece en el art铆culo 3.4.7 "Medios de Salida. Evacuaci贸n” del presente C贸digo.
La escalera principal debe tener las siguientes caracter铆sticas:








(Incorporado por texto Art. 66 de la Ley Nº 6.438, BOCBA Nº 6194 del 17/08/2021)
3.4.6.2 Escaleras Secundarias – Caracter铆sticas
Las escaleras secundarias deben cumplir los siguientes requisitos, siendo parte integrante de las mismas los rellanos y descansos:

3.4.6.3 Caja de Escalera
Los edificios a construir deben conformar caja de escalera de acuerdo a las siguientes generalidades:
(Incorporado por texto Art. 68 de la Ley Nº 6.438, BOCBA Nº 6194 del 17/08/2021)
3.4.6.4 Escaleras Verticales o de Gato
La escalera vertical o de gato puede servir de acceso s贸lo a sectores a los cuales se accede de modo espor谩dico, siempre que no sean paso obligado a ning煤n local habitable o de servicio, como los siguientes:
(Incorporado por texto Art. 69 de la Ley Nº 6.438, BOCBA Nº 6194 del 17/08/2021)
3.4.6.5 Escaleras Rampadas
Una escalera rampada debe tener las siguientes caracter铆sticas:
(Incorporado por texto Art. 70 de la Ley Nº 6.438, BOCBA Nº 6194 del 17/08/2021)
3.4.7 Medios de Salida. Evacuaci贸n
3.4.7.1 Trayectoria de los Medios de Salida
Todo edificio o unidad de uso independiente debe contar con medios de salida consistentes en:
(Sustituido por Art. 71 de la Ley Nº 6.438, BOCBA Nº 6194 del 17/08/2021)
3.4.7.2 Coeficiente de Ocupaci贸n
El n煤mero de ocupantes por superficie de piso es el n煤mero te贸rico de personas que pueda estar dentro de la "superficie de piso", cumpliendo con par谩metros seguros de permanencia y evacuaci贸n en la proporci贸n de una (1) persona por cada "X" metro/s cuadrado/s. El valor de "X" se establece en el siguiente cuadro:
| Categor铆a | Descripci贸n | Locales | “X” (m2) |
Observaciones | |
| COMERCIAL | Comercio mayorista y minorista / Comercio minorista no alimenticios por sistema de ventas | 谩reas de ventas | 3 | Aplica a uso principal, accesorio o complementario (*) En Galer铆as Comerciales y/o Grandes Tiendas y/o Paseo de Compras y/o Centro de Compras, el coeficiente de ocupaci贸n se aplica a la superficie de piso m谩s la circulaci贸n misma |
|
| 谩reas de ventas en las que no es previsible gran afluencia de p煤blico tales como exposici贸n y venta de muebles, automotores, y cualquier otro uso que se encuentre consignado en los Reglamentos T茅cnicos | 5 | ||||
| Alimentaci贸n en general y Gastronom铆a / Mercado gastron贸mico / Patio Gastron贸mico | Zonas con concurrencia de pie, zonas de mostradores y barras | 1* | Aplica a uso principal, accesorio o complementario (comedor, patio de comida y/o similares) (*) considerando una franja de un metro (1,00m) de ancho en todo la longitud de la barra/mostrador. Dicha superficie no se considera para el c谩lculo de poblaci贸n en zonas de p煤blico sentado. |
||
| Zonas de concurrencia sentada con equipamiento fijo o no (mesas, sillones) | 2 | ||||
| Comercio minorista alimenticios por sistema de venta (Supermercado, Supermercado total, Autoservicio de productos alimenticios, Autoservicio de proximidad, Mercado) | 谩rea de p煤blico | 3 | La superficie destinada a mobiliario fijo no ser谩 computada a los efectos del c谩lculo de poblaci贸n y las circulaciones resultantes de la distribuci贸n deber谩n dimensionarse seg煤n se establece en los Reglamentos T茅cnicos | ||
| 谩reas de elaboraci贸n/preparaci贸n | 3 | Se considerar谩 un m铆nimo de 1 persona, pudiendo declarar el interesado la cantidad de personas que trabajen. Aplica a uso principal, accesorio o complementario |
|||
| Puestos de venta | 4 | con un m铆nimo de 1 persona por puesto | |||
| DIVERSIONES P煤BLICAS, CULTURA, CULTO Y RECREACI贸N |
Sitios de asambleas, teatros, cine, cine- teatro, auditorios, sala de concierto, sal贸n de conferencias audiovisuales. (excepto clubes de m煤sica, teatro independiente y toda actividad similar que posea una ley particular que establezca condiciones especiales) |
Con asientos definidos en el proyecto | Por asiento |
Aplica a uso principal, accesorio o complementario | |
| Sin asientos definidos en el proyecto | 0,50 | Aplica a uso principal, accesorio o complementario | |||
| Escenarios | 1,50 | ||||
| Vestuarios, Camarines y dependencias similares anexas de apoyo | 3 | ||||
| Salas de exposiciones, museos, templos | 2 | Aplica a uso principal, accesorio o complementario | |||
| Gimnasios | Con aparatos | 5 | Aplica a uso principal, accesorio o complementario | ||
| Sin aparatos | 1,50 | ||||
| Vestuarios | 3 | ||||
| Pistas de patinaje, canchas de bolos y bochas, Juego de bolos, billar, dardos, tenis de mesa, hockey de mesa, f煤tbol de mesa, etc. (o similares seg煤n se establece en los Reglamentos T茅cnicos) | 5 | ||||
| Natatorio | Recinto de pileta | hasta 1,40 m de profundidad | 1 | ||
| m谩s de 1,40 m de profundidad | 3 | ||||
| Vestuarios | 3 | ||||
| Piscina | Recinto de pileta / zona de solarium | 8 | Aplica a piscinas no encuadradas dentro del uso Natatorio. La zona de solarium aplica a cualquier uso complementario | ||
| Locales de baile (excepto peñas folcl贸ricas, tanguer铆as y toda actividad similar que posea una ley particular que establezca condiciones especiales) | 0,50 | ||||
| Salones de Uso M煤ltiple, Salones de Fiestas, Salones de juegos | 1 | aplica a uso principal, accesorio o complementario | |||
| Bibliotecas | 谩reas de lectura | 2 | aplica a uso principal, accesorio o complementario | ||
| 谩reas de estanter铆as de libros (con acceso de p煤blico) | 8 | ||||
| 谩reas de estanter铆as de libros (sin acceso de p煤blico) - Dep贸sito de libros | 40 | ||||
| ALOJAMIENTO | Alojamiento no tur铆stico, Alojamiento tur铆stico hotelero, Alojamiento tur铆stico para-hotelero | Sector de habitaciones - general (superficie total) | - | Se establece cubaje: 15 m3 por persona | |
| Sector de habitaciones - Hostels | - | Se establece cubaje: 7,5 m3 por persona | |||
| Sectores generales de uso p煤blico tales como vest铆bulo, Lobby, etc. | 2 | ||||
| Salones de uso m煤ltiple conferencias, etc. SIN asientos definidos | 1 | ||||
| Salones de uso m煤ltiple conferencias, etc. CON asientos definidos | Por asiento |
||||
| Salas de Reuni贸n - Salas de capacitaci贸n | 2 | ||||
| SANIDAD | Centros de diagn贸stico y consultorios, Hospital , Cl铆nica, Sanatorio | Lobby, 谩reas de espera | 2 | ||
| Sala de espera | 0,80 | ||||
| Consultorio | 3 | Como actividad principal o complementaria, con un m铆nimo de 2 personas por consultorio | |||
| 谩reas de servicios ambulatorios y diagn贸stico. | 6 | ||||
| Internaci贸n (habitaciones) | 8 | ||||
| 谩reas de tratamiento de pacientes internados (Terapias, quir贸fanos) | 20 | ||||
| Salas de Reuni贸n - Salas de capacitaci贸n | 2 | ||||
| Casa de cuidados paliativos | Habitaci贸n convencional | - | Se establece cubaje: quinte metros c煤bicos (15,00 m3) por persona | ||
| Habitaci贸n para PcD | - | Se establece cubaje: dieciocho metros c煤bicos (18,00 m3) por persona | |||
| SERVICIOS | Actividades administrativas como: Oficinas, Banco, Estudios profesionales, Agencias, Editoriales, Actividades TIC y similares. |
Zona de oficinas, estudios, trabajo colaborativo y similares | 6 | Aplica a uso principal, accesorio o complementario | |
| Salas de Reuni贸n - Salas de capacitaci贸n | 2 | ||||
| Estudios de radio, televisi贸n, grabaci贸n de sonido | Sin concurrencia de p煤blico | 6 | |||
| Con concurrencia de p煤blico | 1,50 | ||||
| Sal贸n de est茅tica, Peluquer铆a y otros servicios | 6 | ||||
| Lobby - Vest铆bulos generales y zonas de uso p煤blico - 谩reas de espera | 2 | Aplica a uso accesorio o complementario | |||
| TRANSPORTE | Vest铆bulos p煤blicos en estaciones de transbordo - andenes | 1 | |||
| Estacionamientos | Vinculado a una actividad sujeta a horarios: comercial, espect谩culos, oficinas. | 15 | |||
| Garajes privados | 40 | ||||
| En estacionamientos mecanizados se considera que no existe ocupaci贸n, debiendo disponer de medios de escape para el personal del establecimiento | - | ||||
| DEP贸SITOS, ALMACENA MIENTO Y LOG铆STICA | Archivos – Dep贸sitos en general | 40 | |||
| RESIDENCIAL | Vivienda Colectiva | - | 2 personas por espacio habitable de la unidad de uso | ||
| Hogar de Niñas, Niños y Adolescentes / Hogar de contenci贸n y/o refugio) | Sala de estar / entretenimiento / comedor | 2 | |||
| Dormitorio | - | Se establece cubaje: quince metros c煤bicos (15,00 m3) cada dos personas | |||
| Residencial para Personas Mayores | Habitaci贸n convencional / para PcD | - | Se establece cubaje: quince metros c煤bicos (15,00 m3) por persona | ||
| Sala de estar / entretenimiento | 2 | ||||
| Comedor | 2 | ||||
| Patio / Jard铆n | 2 | ||||
| INDUSTRIA | En edificios industriales (Salvo que el propietario declare el n煤mero de ocupantes) | 18 | |||
| PENITENCIARIO | Edificios carcelarios - Institutos correccionales | Superficie total cubierta | 11 | ||
Los coeficientes indicados para usos principal, complementario o accesorio deben aplicarse a los locales con destino an谩logo independientemente del uso principal del edificio. Cuando el c谩lculo de poblaci贸n arroje como resultado un n煤mero no entero, es v谩lido el n煤mero entero.
Cuando sea previsible una ocupaci贸n diferente a la capacidad te贸rica, se debe adoptar la mayor para los c谩lculos de Medios de Salida, Evacuaci贸n y otros 铆tems asociados a la poblaci贸n.
La cantidad de ocupantes que surjan del c贸mputo debe considerarse como el total de la ocupaci贸n del edificio en sentido te贸rico. En caso de corresponder, la Autoridad de Aplicaci贸n puede evaluar las condiciones de uso de cada local que compone el edificio.
En toda actividad que se desarrolle a partir del segundo subsuelo hacia abajo, se supone un n煤mero de ocupantes igual al doble del que resulte de aplicar el cuadro.
La diferencia en m谩s o menos entre la ocupaci贸n te贸rica y la real por cada local est谩 limitada por las condiciones de habitabilidad y de seguridad, el dimensionamiento debe atender a la situaci贸n m谩s desfavorable.
En caso de edificio con usos diversos los medios exigidos de salida generales deben calcularse en forma acumulativa, de manera que para estos usos, como en otros similares, se suma, a la poblaci贸n permanente del edificio, la poblaci贸n del uso eventual, salvo que las actividades se desarrollen en horarios diferentes o en forma no simult谩nea. En otros usos y distintos usos eventuales se aplica el mismo criterio, cuando la Autoridad de Aplicaci贸n lo estime conveniente.
La Autoridad de Aplicaci贸n tiene la facultad para determinar, por analog铆a, el n煤mero de ocupantes en edificios con un uso no incluido en el cuadro.
(Sustituido por Art. 72 de la Ley Nº 6.438, BOCBA Nº 6194 del 17/08/2021)
3.4.7.2.1 Vidrieras o Aberturas en Medios de Salida Exigidos
Los corredores y pasos de un edificio que conduzcan a la v铆a p煤blica como medio exigido de salida, pueden tener vidrieras o aberturas a comercio, oficina, subterr谩neo de servicios de pasajeros o uso similar, siempre que se sit煤en a una profundidad no mayor a 2,50 m de la l铆nea de fachada.
(Derogado por Art. 116 de la Ley Nº 6.438, BOCBA Nº 6194 del 17/08/2021)
3.4.7.2.2 Señalizaci贸n de los Medios Exigidos de Salida
Donde los medios exigidos de salida generales o p煤blicos no puedan ser f谩cilmente discernidos deben colocarse en cada nivel de piso señales de direcci贸n tanto visuales como t谩ctiles para servir de gu铆a a la salida, claramente indicada en corredores largos, en superficies abiertas de piso y en toda situaci贸n necesaria.
(Derogado por Art. 116 de la Ley Nº 6.438, BOCBA Nº 6194 del 17/08/2021)
3.4.7.2.3 Salidas Exigidas en Caso de Edificios con Uso Diverso
En casos de edificios con usos diversos cada uso debe tener garantizado el ingreso o egreso para su funcionamiento y evacuaci贸n. Los medios de salida requeridos para cumplimentar tal situaci贸n deben ser comunes o independientes, de acuerdo a la compatibilidad de los usos propuestos por la normativa urban铆stica vigente.
(Derogado por Art. 116 de la Ley Nº 6.438, BOCBA Nº 6194 del 17/08/2021)
3.4.7.2.4 Puertas o Paneles Fijos de Vidrio en Medios de Salida Exigidos
Sin perjuicio de cumplir con lo establecido en el art. "Sistemas de Seguridad contra Incendios" puede usarse el vidrio como elemento principal tanto en puertas como para paneles pero supeditado a que se utilice cristal templado o vidrio inastillable de espesor adecuado a sus dimensiones y adem谩s cumpla con lo siguiente:
(Derogado por Art. 116 de la Ley Nº 6.438, BOCBA Nº 6194 del 17/08/2021)
3.4.7.2.5 Salidas Exigidas en Casos de Cambios de Uso u Ocupaci贸n
Cuando un edificio o parte de 茅l cambie de uso u ocupaci贸n, se cumplir谩n los requisitos para medios exigidos de egreso para el nuevo uso, pudiendo la Autoridad de Aplicaci贸n aprobar otros medios que satisfagan el mismo prop贸sito cuando la estricta aplicaci贸n de este C贸digo no resulte practicable.
(Derogado por Art. 116 de la Ley Nº 6.438, BOCBA Nº 6194 del 17/08/2021)
3.4.7.3 Ancho de Corredores de Piso
El ancho m铆nimo de pasos, pasillos o corredores de toda superficie de piso o local que den a un paso de comunicaci贸n general u otro medio exigido de salida debe ser de un metro con diez cent铆metros (1,10 m) en caso de una ocupaci贸n de hasta treinta (30) personas, un metro con veinte cent铆metros (1,20 m) para una ocupaci贸n de m谩s de treinta (30) personas hasta cincuenta (50) personas, y quince cent铆metros (0,15 m) por cada cincuenta (50) personas de exceso o fracci贸n.
Cuando se trate de edificaciones construidas sobre lotes de ancho inferior o igual a ocho metros con sesenta y seis cent铆metros (8,66 m), dicho ancho ser谩 de un metro (1,00 m), en caso de una ocupaci贸n de hasta treinta (30) personas; un metro con diez cent铆metros (1,10 m), para una ocupaci贸n de m谩s de treinta (30) y hasta cincuenta (50) personas, y quince cent铆metros (0,15 m), por cada cincuenta (50) personas de exceso o fracci贸n.
Para anchos de corredores menores que un metro con cincuenta cent铆metros (1,50 m), deben disponerse zonas de ensanchamiento d贸nde se pueda inscribir un c铆rculo de un metro con cincuenta cent铆metros (1,50 m), de di谩metro como m铆nimo, destinadas al cambio de direcci贸n de la circulaci贸n o el paso simult谩neo de dos sillas de ruedas, en los extremos y cada veinte metros (20,00 m) en el caso de largas circulaciones

(Sustituido por Art. 73 de la Ley Nº 6.438, BOCBA Nº 6194 del 17/08/2021)
3.4.7.4 Salidas Exigidas
Ninguna puerta, vest铆bulo, corredor, paso, escalera u otro medio exigido de salida debe ser obstruido o reducido en su ancho exigido.
La amplitud de los medios exigidos de salida debe calcularse de modo que permitan evacuar simult谩neamente los distintos locales que desembocan en 茅l.
En caso de superponerse un medio exigido de salida con el de la entrada y/o salida de veh铆culos, se acumulan los anchos exigidos. Debe preverse una circulaci贸n de noventa cent铆metros (0,90 m) de ancho m铆nimo, siempre que lateralmente no evacuen otros locales, en cuyo caso las puertas deben observar la superficie de aproximaci贸n prescrita en el art铆culo 3.4.6 "Puertas", inciso e) del presente C贸digo. La circulaci贸n se señaliza por una baranda colocada a una distancia del paramento del medio exigido de salida peatonal de noventa cent铆metros (0,90 m), para permitir el paso de una persona en silla de ruedas. El ancho de circulaci贸n peatonal, en caso de lotes de hasta ocho metros con sesenta y seis cent铆metros (8,66 m), se debe identificar con pintura de alto contraste en una franja de sesenta cent铆metros (0,60 m). Estos requisitos no son exigibles cuando se trate de una sola unidad de vivienda
(Sustituido por Art. 74 de la Ley Nº 6.438, BOCBA Nº 6194 del 17/08/2021)
3.4.7.4.1 Salidas Exigidas en Caso de Edificios con Uso Diverso
En casos de edificios con usos diversos, cada uso debe tener garantizado el ingreso o egreso para su funcionamiento y evacuaci贸n. Los medios de salida requeridos para cumplimentar tal situaci贸n pueden ser comunes o independientes, de acuerdo a la compatibilidad de los usos propuestos por la normativa urban铆stica vigente.
(Incorporado por texto Art. 75 de la Ley Nº 6.438, BOCBA Nº 6194 del 17/08/2021)
3.4.7.4.2 Salidas Exigidas en Casos de Cambios de Uso u Ocupaci贸n
Cuando un edificio o parte de 茅l cambie de uso u ocupaci贸n, en el transcurso de la obra, se deben cumplir los requisitos para medios exigidos de egreso para el nuevo uso, sin excepci贸n.
Los edificios existentes que cambien de uso se rigen por lo establecido en el art铆culo 3.10 “Edificios Existentes” del presente C贸digo.
(Incorporado por texto Art. 76 de la Ley Nº 6.438, BOCBA Nº 6194 del 17/08/2021)
3.4.7.4.3 Vidrieras o Aberturas en Medios de Salida Exigidos
Los corredores y pasos de un edificio que conduzcan a la v铆a p煤blica como medio exigido de salida, pueden tener vidrieras o aberturas a comercio, oficina, subterr谩neo de servicios de pasajeros o uso similar, siempre que se sit煤en a una profundidad no mayor a dos metros con cincuenta cent铆metros (2,50 m) de la l铆nea de fachada.
(Incorporado por texto Art. 77 de la Ley Nº 6.438, BOCBA Nº 6194 del 17/08/2021)
3.4.7.4.4 Puertas o Paneles Fijos de Vidrio en Medios de Salida Exigidos
Sin perjuicio de cumplir con lo establecido en el art铆culo 3.9.9 “Sistemas de Seguridad contra Incendios” del presente C贸digo, puede usarse vidrio como elemento principal, tanto en puertas como para paneles, supeditado a que se utilice cristal templado o vidrio inastillable de espesor adecuado a sus dimensiones y adem谩s cumpla con lo siguiente:
(Incorporado por texto Art. 78 de la Ley Nº 6.438, BOCBA Nº 6194 del 17/08/2021)
3.4.7.4.5 Señalizaci贸n de los Medios Exigidos de Salida
Donde los medios exigidos de salida generales o p煤blicos no puedan ser f谩cilmente identificados, deben colocarse, en cada nivel de piso, señales de direcci贸n tanto visuales como t谩ctiles para servir de gu铆a a la salida, claramente indicada en corredores largos, en superficies abiertas de piso y en toda situaci贸n necesaria.
(Incorporado por texto Art. 79 de la Ley Nº 6.438, BOCBA Nº 6194 del 17/08/2021)
3.4.7.5 Situaci贸n de los Medios de Salida en Planta Baja
(Sustituido por Art. 80 de la Ley Nº 6.438, BOCBA Nº 6194 del 17/08/2021)
3.4.7.6 Situaci贸n de los Medios de Salida en Pisos Altos y S贸tanos
(Sustituido por Art. 81 de la Ley Nº 6.438, BOCBA Nº 6194 del 17/08/2021)
3.4.7.7 Puertas de Salida(Sustituido por Art. 82 de la Ley Nº 6.438, BOCBA Nº 6194 del 17/08/2021)
3.4.7.8 Dimensionamiento de las Escaleras Exigidas como medio de salida
Sin perjuicio de cumplir lo dispuesto para las escaleras principales y secundarias en este C贸digo, las medidas de las escaleras exigidas de salida se deben dimensionar de modo que permitan evacuar a la poblaci贸n de todo el nivel de uso considerado.
(Sustituido por Art. 83 de la Ley Nº 6.438, BOCBA Nº 6194 del 17/08/2021)
3.4.7.8.1 Pasamanos en Escaleras Exigidas como Medio de Salida
Las escaleras exigidas deben tener pasamanos r铆gidos, bien asegurados a ambos lados de la misma, seg煤n lo prescrito en el art铆culo 3.4.6.1 "Escaleras Principales - Sus Caracter铆sticas” del presente C贸digo.
Cuando se coloque una balaustrada o barandas macizas, la terminaci贸n de la misma no se considera pasamano.
Pasamanos intermedios:
Cuando el ancho de la escalera sea igual o mayor que dos metros con cuarenta cent铆metros (2,40 m), se debe colocar un pasamanos intermedio, con una separaci贸n m铆nima de noventa cent铆metros (0,90 m) entre 茅ste y el pasamanos de uno de los lados. Deben ser continuos de nivel a nivel en caso de escaleras sin giro, o de rellano a descanso en caso de escaleras con giro y estar s贸lidamente soportados.

(Incorporado por texto Art. 84 de la Ley Nº 6.438, BOCBA Nº 6194 del 17/08/2021)
3.4.7.9 Pasos entre Escalera y V铆a P煤blica
El ancho de un paso que sirve a una escalera exigida o que sirva directamente a la salida de un edificio debe ser, como m铆nimo, igual al ancho exigido de dicha escalera. Cuando el paso sirva a m谩s de una escalera, el ancho no debe ser menor que el ancho exigido que resulte seg煤n lo establecido en el art铆culo 3.4.7.3 "Ancho de Corredores de Piso" del presente C贸digo.
Deben ajustar su dimensi贸n a la cantidad de personas que concurren simult谩neamente a un mismo pasaje o paso, considerando la acumulaci贸n de personas seg煤n coeficiente de ocupaci贸n u ocupaci贸n real.
El ancho exigido de estos pasajes se debe mantener sin proyecciones u obstrucciones.
El nivel del pasaje que sirve como medio exigido de egreso no debe estar por debajo de un metro (1,00 m) del nivel de la vereda, en cuyo caso deber谩 cumplir integralmente lo prescrito en el art铆culo 3.4.7.1 “Trayectoria de los medios de salida” del presente C贸digo.
(Sustituido por Art. 85 de la Ley Nº 6.438, BOCBA Nº 6194 del 17/08/2021)
3.4.7.10 Escaleras Mec谩nicas
En los casos en que se requiera m谩s de una escalera como medio exigido de salida, una escalera mec谩nica no se puede computar en el ancho total de las escaleras exigidas, salvo que se cumplan los requerimientos que se especifiquen en los Reglamentos T茅cnicos.
La escalera mec谩nica no se considera un elemento de circulaci贸n vertical apto para personas con discapacidad por lo que en el edificio o lugar donde se instalen, se debe proporcionar un medio alternativo aceptado de elevaci贸n.
(Sustituido por Art. 86 de la Ley Nº 6.438, BOCBA Nº 6194 del 17/08/2021)
3.4.7.11 Rampas como Medio Exigido de Salida
(Sustituido por Art. 87 de la Ley Nº 6.438, BOCBA Nº 6194 del 17/08/2021)
3.4.7.12 Puertas Giratorias y molinetes
Se proh铆be el uso de puertas giratorias y molinetes en los medios de ingreso o de salida exigidos, en edificios de cualquier uso.
Pueden proyectarse molinetes o vallas en zonas con control de acceso, siempre que se complemente con una salida que permita un recorrido alternativo adyacente, que cumpla con las caracter铆sticas requeridas en el art铆culo 3.4.7.7 “Puertas de salida” del presente C贸digo.
(Sustituido por Art. 88 de la Ley Nº 6.438, BOCBA Nº 6194 del 17/08/2021)
3.4.7.13 Molinetes en Zonas Controladas
Todo molinete o valla existente puede permanecer, siempre que se complemente con una salida que permita un recorrido alternativo adyacente que cumpla con las caracter铆sticas requeridas en el art. “Puertas de salida” del presente C贸digo.
(Derogado por Art. 116 de la Ley Nº 6.438, BOCBA Nº 6194 del 17/08/2021)
3.4.8 Salida para Veh铆culos
(Derogado por Art. 116 de la Ley Nº 6.438, BOCBA Nº 6194 del 17/08/2021)
3.4.8.1 Ancho de Salida
El ancho libre m铆nimo de una salida para veh铆culos es 3 m. En vivienda unifamiliar dicho ancho m铆nimo puede ser 2,30 m.En un predio donde maniobren veh铆culos de mayor porte (por ejemplo playa de carga y descarga de comercio, de industria o de dep贸sito, estaci贸n de transporte de pasajeros o de cargas), el ancho m铆nimo de la salida es de 4 m.
(Derogado por Art. 116 de la Ley Nº 6.438, BOCBA Nº 6194 del 17/08/2021)
3.4.8.2 Salida para Veh铆culos en Predios de Esquina
No puede ubicarse una salida para veh铆culos en la L铆nea Oficial de Esquina; cuando 茅sta no exista, la salida estar谩 alejada no menos de 3 m del encuentro de las L.O. de las calles concurrentes.

(Derogado por Art. 116 de la Ley Nº 6.438, BOCBA Nº 6194 del 17/08/2021)
3.4.8.3 Medidas de Seguridad
En toda salida de veh铆culos se debe colocar una alarma sonora direccional y luminosa con accionamiento autom谩tico para anunciar el paso de los veh铆culos.
(Derogado por Art. 116 de la Ley Nº 6.438, BOCBA Nº 6194 del 17/08/2021)
3.5 Salubridad
Todo edificio y/o predio que cuente con locales habitables o concurrencia de personas, tanto de p煤blico como de personal que trabaja en 茅l, debe cumplir con los requerimientos de Salubridad que se establecen a continuaci贸n.
El presente cap铆tulo es de aplicaci贸n general a todos los usos de un edificio, siempre que no se especifiquen disposiciones particulares para el uso en el Cap铆tulo 3.8 “Condiciones para Determinados Usos en el Proyecto”.
Todos los servicios de salubridad deben cumplir lo referido a Instalaciones Sanitarias, tanto para suministro de agua como para desagües seg煤n lo determinado en el presente C贸digo y seg煤n se establece en los Reglamentos T茅cnicos.
(Sustituido por Art. 89 de la Ley Nº 6.438, BOCBA Nº 6194 del 17/08/2021)
3.5.1 Servicio M铆nimo de Salubridad
En todo predio o edificio con permanencia de personas y/o concurrencia de p煤blico debe existir, como m铆nimo, un local destinado a servicio de salubridad que cuente con inodoro y lavabo o pileta de cocina. La obligatoriedad de incluir ducha o bañera se encuentra condicionada por el uso del edificio, y se especifica en las condiciones particulares de cada uso. Siempre que se exija servicio m铆nimo de salubridad, se debe contar al menos, con un servicio de salubridad para PcD.
Los compartimentos para servicios de salubridad deben ser independientes de los locales de trabajo o permanencia y estar comunicados a trav茅s de pasos que impidan la visi贸n del interior, en caso de servicios para el p煤blico y cuando no se trate de servicios de uso individual. Dichos pasos pueden contener lavabos como 煤nico artefacto permitido sin requerimiento de ventilaci贸n.
La diferenciaci贸n de locales independientes de servicios de salubridad por g茅nero o sexo es opcional, siempre que las especificaciones para el uso determinado en el Cap铆tulo 3.8 “Condiciones para Determinados Usos en el Proyecto”, no especifiquen lo contrario y siempre que los mismos garanticen la seguridad y privacidad de cada recinto.
Los mingitorios pueden ser reemplazados por un retrete cada dos (2) mingitorios o fracci贸n. Para los casos de edificios donde se permanezca y/o trabaje, y cuando por su capacidad requiera un m铆nimo de cinco (5) retretes, se debe incluir en los servicios de salubridad, tanto en los convencionales como en los destinados a PcD, el equipamiento de un cambiador rebatible. Se debe prever un lado m铆nimo de paso de un metro (1,00 m) cuando el mismo se encuentre desplegado, de manera tal que no obstruya las circulaciones ni los pasos. Si los servicios de salubridad se distinguen por g茅nero, este equipamiento puede ser emplazado en el 谩rea de antebaño com煤n a ambos. Caso contrario, debe incluirse uno en cada uno de los servicios.
Los servicios de salubridad para PcD no son de uso exclusivo para personas con discapacidad o en circunstancias discapacitantes, y se contabilizan dentro del total de sanitarios requeridos.
Cuando se destine m谩s de un servicio de salubridad para PcD sin diferenciaci贸n por g茅nero, debe preverse un inodoro convencional en al menos uno de ellos.
Los servicios de salubridad para PcD deben estar ubicados a una distancia m谩xima de cincuenta metros (50,00 m) del lugar de permanencia de las personas.
Tanto los servicios de salubridad convencionales como para PcD deben disponer de cerrojos de seguridad sanitarios que puedan ser abiertos desde el exterior de baños y/o retretes en caso de emergencia.
Los locales destinados al servicio de salubridad con acceso de p煤blico deben cumplir los siguientes criterios de sostenibilidad:
(Sustituido por Art. 90 de la Ley Nº 6.438, BOCBA Nº 6194 del 17/08/2021)
3.5.1.1 Servicio M铆nimo de Salubridad seg煤n el uso.(Sustituido por Art. 91 de la Ley Nº 6.438, BOCBA Nº 6194 del 17/08/2021)
3.5.1.1.1 Cuadro de Servicio M铆nimo de Salubridad Seg煤n el Uso:
| Categor铆a | Descripci贸n o Rubro | CONVENCIONAL | PARA PcD | ||||||||||
| Tipo de usuario |
Cant. de usuarios |
Iº | Lº | Mº | Dº | Observaciones | Tipo de usuario |
Cant. de usuarios |
Servicio (Iº+ Lº) | Observaciones | |||
| COMERCIAL | - Comercio mayorista con dep贸sito - Comercio mayorista sin dep贸sito - Comercio minorista de productos de abasto y alimenticios - Comercio minorista excluido comestibles como uso principal. |
Personal | 1 a 9 | 1 | 1 | - | - | - | General | 1 a 20 | 1 | - | |
| 10 a 20 | 2 | 2 | - | - | |||||||||
| > 20 | 2 ad. c/20 pers. o frac. | 1 ad. c/20 pers. o frac. | - | - | |||||||||
| P煤blico | 1 a 250 | 1 | 1 | - | - | - Exigibles cuando el 谩rea de acceso de p煤blico exceda de 1.000m2 - Pueden compartirse con los servicios de salubridad para el Personal |
> 20 | 2 | - | ||||
| > 250 | 1 ad. c/150 pers. o frac. | 1 ad. c/150 pers. o frac. | 1 c/150 pers. o frac. | - | |||||||||
| Alimentaci贸n en general y gastronom铆a | Personal | 1 a 9 | 1 | 1 | - | - | Pueden compartirse con el p煤blico, en caso de que el p煤blico sea menor a 50 | Personal | 1 a 20 | 1 | - | ||
| 10 a 20 | 2 | 2 | - | - | |||||||||
| > 20 | 2 ad. c/20 pers. o frac. | 1 ad. c/20 pers. o frac. | - | - | - | > 20 | 2 | ||||||
| P煤blico | 1 a 50 | 1 | 1 | - | - | - Exigibles s贸lo cuando hay permanencia de p煤blico - Pueden compartirse con el personal |
P煤blico | 1 a 340 | 1 c/20 conv. o frac. | ||||
| 51 a 100 | 2 | 2 | - | - | - Exigibles s贸lo cuando hay permanencia de p煤blico | ||||||||
| > 100 | 1 ad. c/50 pers. o frac. | 2 ad. c/100 pers. o frac. | 1 c/100 pers. o frac. | - | > 340 | 2 c/20 conv. o frac. | |||||||
| Comercio minorista alimenticios por sistema de venta. | Personal | 1 a 9 | 1 | 1 | - | - | Pueden compartirse con el p煤blico | Personal | 1 a 20 | 1 | Pueden compartirse | ||
| 10 a 20 | 2 | 2 | - | - | |||||||||
| > 20 | 2 ad. c/20 pers. o frac. |
1 ad. c/20 pers. o frac. |
- | - | - | > 20 | 2 | ||||||
| P煤blico | 1 a 125 | 2 | 2 | - | - | - Exigibles cuando el 谩rea de permanencia de p煤blico exceda de 1.000m2 | P煤blico | 1 a 340 | 1 c/20 conv. o frac. | ||||
| > 125 | 1 ad. c/125 pers. o frac. | 1 ad. c/125 pers. o frac. | 1 c/100 pers. o frac. | - | > 340 | 2 c/20 conv. o frac. | |||||||
| Comercio minorista no alimenticios por sistema de venta. | Galer铆a Comercial | Personal | 1 a 9 | 1 | 1 | - | - | - Se entiende por "Personal" a las personas que trabajan en los comercios de la galer铆a, m谩s el personal de la galer铆a, si lo tuviese. - Pueden compartirse entre Personal y P煤blico |
General | 1 a 200 | 1 | - | |
| 10 a 20 | 2 | 2 | - | - | |||||||||
| > 20 | 2 ad. c/20 pers. o frac. | 1 ad. c/20 pers. o frac. | - | - | |||||||||
| P煤blico | 1 a 200 | 1 | 1 | - | - | > 200 | 2 | ||||||
| > 200 | 1 ad. c/200 pers. | 1 ad. c/300 pers. o frac. | 1 c/100 pers. o frac. | - | |||||||||
| Paseo de compras Grandes tiendas Centro de compras Autoservicio de productos no alimenticios |
Personal | 1 a 9 | 1 | 1 | - | - | - Se entiende por "Personal" a las personas que trabajan en los comercios individuales de un Paseo de Compras o Centro de Compras, m谩s el personal del establecimiento, si lo tuviese. - Pueden compartirse entre Personal y P煤blico |
Personal | 1 a 20 | 1 | - | ||
| 10 a 20 | 2 | 2 | - | - | |||||||||
| > 20 | 2 ad. c/30 pers. o frac. | 1 ad. c/30 pers. o frac. | - | - | > 20 | 2 | |||||||
| P煤blico | 1 a 125 | 4 | 4 | - | - | P煤blico | 1 a 340 | 1 c/20 conv. o frac. | - | ||||
| > 125 | 1 ad. c/100 pers. o frac. | 1 ad. c/2 retretes ad. | 1 c/100 pers. o frac. | - | > 340 | 2 c/20 conv. o frac. | |||||||
| DIVERSIONES P煤BLICAS, CULTURA, CULTO Y RECREACI贸N | Local de representaci贸n / Local de lectura / Local de culto |
- Museo Clase I - Museo Clase II - Galer铆a de Arte - Sal贸n de exposiciones - Biblioteca local - Local de culto |
Personal | 1 a 9 | 1 | 1 | - | - | - | General | 1 a 50 | 1 | - |
| 10 a 20 | 2 | 2 | - | - | |||||||||
| > 20 | 2 ad. c/20 pers. o frac. | 1 ad. c/20 pers. o frac. | - | - | |||||||||
| P煤blico | 1 a 500 | 4 | 2 | - | - | - | > 50 | 2 | |||||
| > 500 | 2 ad. c/500 pers. o frac. | 1 ad. c/500 pers. o frac. | 1 c/300 pers. o frac. | - | |||||||||
| - Centro de exposiciones / eventos - Sal贸n de conferencias / sala audiovisual - Teatro - Cine - Autocine |
Personal | 1 a 60 | 2 | 2 | - | 2 | - | General | 1 a 200 | 1 | Deben estar equidistantes de las localidades para PcD | ||
| > 60 | 1 ad. c/40 pers. o frac. | 1 ad. c/60 pers. o frac. | 1 c/60 pers. | 2 ad. c/60 pers. o frac. | |||||||||
| P煤blico | 1 a 125 | 2 | 2 | - | - | - | |||||||
| 126 a 400 | 4 | 4 | - | - | |||||||||
| > 400 | 1 ad. c/200 pers. o frac. | 1 ad. c/300 pers. o frac. | 1 c/200 pers. | - | > 200 | 1 ad. c/200 pers. o frac. | |||||||
| Artistas | 1 a 50 | 2 | 2 | - | 2 | S贸lo aplicable a Teatros. | |||||||
| > 50 | 1 ad. c/50 pers. o frac. | 1 ad. c/50 pers. o frac. | 1 c/50 pers. o frac. | 2 ad. c/50 pers. o frac. | |||||||||
| Otros locales de representaci贸n excluido Espacio Cultural independiente, Teatro Independiente.. y los que cuenten con leyes aparte | Personal | 1 a 9 | 1 | 1 | - | - | - | General | 1 a 200 | 1 | - | ||
| 10 a 20 | 2 | 2 | - | - | |||||||||
| > 20 | 2 ad. c/20 pers. o frac. | 1 ad. c/20 pers. o frac. | - | - | > 200 | 1 ad. c/200 pers. o frac. | |||||||
| P煤blico | 1 a 500 | 4 | 2 | - | - | - | |||||||
| > 500 | 2 ad. c/500 pers. o frac. | 1 ad. c/500 pers. o frac. | 1 c/300 pers. o frac. | - | |||||||||
| Local deportivo | Clubes y canchas en general, con o sin instalaciones al aire libre, excluido estadios | Personal | 1 a 50 | 2 | 2 | - | 2 | - | General | 1 a 400 | 1 | - Deben incluir ducha - Se debe disponer de 1 bebedero c/10 o fracci贸n de los convencionales. Los bebederos se deben ajustar a lo que se indica en este art铆culo. |
|
| > 50 | 2 ad. c/50 pers. | 2 ad. c/50 pers. | - | 2 ad. c/100 pers. | |||||||||
| P煤blico | 1 a 50 | 2 | 2 | - | 2 | Se deben instalar 4 bebederos hasta 5000 usuarios; cuando el n煤mero de usuarios sea mayor a 5000 se dispondr谩 de 1 bebedero adicional cada 1000 usuarios o fracci贸n | 401 a 1000 | 2 | |||||
| 51 a 400 | 4 | 4 | - | 4 | |||||||||
| 401 a 1000 | 8 | 8 | 2 | 8 | > 1000 | 1 ad. c/1000 pers. o frac. | |||||||
| > 1000 | 2 ad. c/500 pers. o frac. | 2 ad. c/500 pers. o frac. | 4 ad. c/500 pers. o frac. | 2 ad. c/500 pers. o frac. | |||||||||
| Estadio de f煤tbol | Jugadores | cada 15 | 3 | 3 | 3 | 8 | - | Jugadores / 谩rbitros y jueces / Personal de servicio | 1 a 20 | 1 | Debe incluir ducha | ||
| 谩rbitros y jueces |
- | 1 | 1 | - | 1 | ||||||||
| Personal de servicio | 1 a 9 | 2 | 2 | - | 2 | > 20 | 2 | ||||||
| de 10 a 20 | 4 | 4 | - | 4 | |||||||||
| > 21 | 1 ad. c/10 pers. o frac. | 1 ad. c/10 pers. o frac. | - | 2 | |||||||||
| P煤blico | 1 a 20.000 | 2 c/ 2.000 pers. o frac | 2 c/1.000 pers. o frac | 3 c/1.000 pers. o frac | - | - Se debe cumplir en cada sector del estadio. - Se deben instalar 4 bebederos c/1.000 pers. hasta 5.000 usuarios. Cuando el n煤mero de usuarios sea mayor a 5.000 se debe disponer de 1 c/1.000 pers. o frac. |
P煤blico | 1 a 5.000 | 2 | Se podr谩 exigir dotaci贸n mayor si los sectores accesibles se distribuyen en distintos niveles. Su ubicaci贸n ser谩 equidistante de las localidades reservadas para personas con accesibilidad reducida - Se debe disponer de 1 bebedero c/10 o fracci贸n de los convencionales. Los bebederos se deben ajustar a lo que se indica en este art铆culo. |
|||
| > 20.000 | 4 ad. c/3.000 pers. o frac. | 2 ad. c/3.000 pers. o frac. | 2 ad. c/1.000 pers. o frac. | - | > 5.000 | 2 ad. c/ 5.000 pers. o frac. | |||||||
| Gimnasio | Personal | 1 a 50 | 2 | 2 | - | 1 c/50 pers. o frac. |
Pueden compartirse | General | 1 a 200 | 1 | Debe incluir ducha | ||
| > 50 | 2 ad. c/50 pers. | 1 ad. c/50 pers. | - | ||||||||||
| P煤blico | 1 a 25 | 2 | 2 | - | 2 | > 200 | 2 | ||||||
| 26 a 50 | 4 | 4 | 1 | 4 | |||||||||
| > 50 | 1 ad. c/50 pers. o frac. | 1 ad. c/50 pers. o frac. | 1 ad. c/100 pers. o frac. | 2 ad. c/75 pers. o frac. | |||||||||
| Natatorio | General | 1 a 100 | 2 c/ 15 usuarios o frac. mayor de 10 | 2 c/ 15 usuarios o frac. mayor de 10 | 1 c/ 20 usuarios o frac. mayor de 15 | 2 c/ 10 usuarios o frac. mayor de 5 |
- | General | 1 a 340 | 1 c/20 conv. o frac | Debe incluir ducha | ||
| 101 a 250 | 2 c/ 20 usuarios o frac. mayor de 15 | 2 c/ 20 usuarios o frac. mayor de 15 | 1 c/ 30 usuarios o frac. mayor de 20 | 2 c/ 15 usuarios o frac. mayor de 10 |
Desde 340 | 2 c/20 conv o frac | |||||||
| > 250 | 2 c/ 30 usuarios o frac. mayor de 20 | 2 c/ 30 usuarios o frac. mayor de 20 | 1 c/ 40 usuarios o frac. mayor de 30 | 2 c/ 20 usuarios o frac. mayor de 15 |
|||||||||
| Local de fiesta o diversi贸n / Local de juego | - Casa o local de fiestas - Salones de usos m煤ltiples |
Personal | 1 a 9 | 1 | 1 | - | - | Pueden compartirse con el p煤blico | General | 1 a 300 | 1 | - | |
| 10 a 20 | 2 | 2 | - | - | |||||||||
| > 20 | 2 ad. c/40 pers. o frac. | 1 ad. c/40 pers. o frac. | - | - | - | ||||||||
| P煤blico | 1 a 50 | 1 | 1 | - | - | - | > 300 | 1 ad. c/500 pers. o frac. superior a 150 | |||||
| 51 a 150 | 2 | 2 | 1 | - | |||||||||
| > 150 | 1 ad. c/50 pers. o frac. | 1 ad. c/50 pers. o frac. | 1 ad. c/150 pers. o frac. | - | |||||||||
| Locales de baile | Personal | 1 a 9 | 1 | 1 | - | 2 c/5 artistas en caso de espect谩culos con transformaci贸n | Pueden compartirse con el p煤blico | General | 1 a 500 | 1 | - | ||
| 10 a 60 | 2 | 2 | 1 | - | |||||||||
| > 60 | 1 ad. c/50 pers. o frac. |
1 ad. c/75 pers. o frac. |
1 ad. c/50 pers. o frac. |
||||||||||
| P煤blico | 1 a 50 | 2 | 2 | - | - | - | > 500 | 1 ad. c/500 pers. o frac. superior a 250 | |||||
| 51 a 150 | 3 | 3 | 1 | - | |||||||||
| > 150 | 2 ad. c/100 pers. o frac. | 2 ad. c/100 pers. o frac. | 1 ad. c/150 pers. o frac. | - | |||||||||
| Otros locales de fiesta o diversi贸n excluido Sal贸n de Milonga, Peña, Centro de Entretenimiento Familiar y Club de M煤sica en vivo | Personal | 1 a 9 | 1 | 1 | - | - | Pueden compartirse con el p煤blico | General | 1 a 500 | 1 | - | ||
| 10 a 20 | 2 | 2 | - | - | |||||||||
| > 20 | 2 ad. c/40 pers. o frac. | 1 ad. c/40 pers. o frac. | - | - | - | ||||||||
| P煤blico | 1 a 50 | 1 | 1 | - | - | - | > 500 | 1 ad. c/500 pers. o frac. superior a 250 | |||||
| 51 a 150 | 2 | 2 | 1 | - | |||||||||
| > 150 | 1 ad. c/50 pers. o frac. | 1 ad. c/100 pers. o frac. | 1 ad. c/150 pers. o frac. | - | |||||||||
| ALOJAMIENTO | - Alojamiento No Tur铆stico - Alojamiento Tur铆stico Hotelero - Alojamiento Tur铆stico Para-Hotelero - Albergue Transitorio |
Personal | 1 a 9 | 1 | 1 | - | - | - | Personal | 1 a 20 | 1 | - | |
| 10 a 20 | 2 | 2 | - | - | |||||||||
| > 20 | 2 ad. c/20 pers. o frac. | 1 ad. c/20 pers. o frac. | 1 c/20 pers. o frac. | - | > 20 | 2 | |||||||
| P煤blico | 1 a 10 | 2 | 2 | - | 2 | - | P煤blico | 1 a 20 | 1 | Deben incluir ducha | |||
| 11 a 30 | 3 | 3 | 1 | 3 | 21 a 30 | 2 | |||||||
| > 30 | 1 ad. c/20 pers. o frac. mayor a 5 | 1 ad. c/20 pers. o frac. mayor a 5 | 1 ad. c/20 pers. o frac. mayor a 5 | 1 ad. c/20 pers. o frac. mayor a 5 | > 30 | 1 ad. c/2 conv. ad. | |||||||
| SERVICIOS | - Agencia, estudios, empresas, corporaciones, editoriales, laboratorios, oficinas, espacio de trabajo colaborativo | Personal | 1 a 9 | 1 | 1 | - | - | - Pueden compartirse | General | 1 a 20 | 1 | - | |
| 10 a 20 | 2 | 2 | - | - | |||||||||
| > 20 | 2 ad. c/20 pers. o frac. | 1 ad. c/20 pers. o frac. | 1 c/20 pers. o frac. | - | |||||||||
| P煤blico | - | 1 | 1 | - | - | > 20 | 2 | ||||||
| Garaje comercial, playa de estacionamiento | Personal | 1 a 9 | 1 | 1 | - | - | - Pueden compartirse | General | 1 a 200 | 1 | - | ||
| 10 a 20 | 2 | 2 | - | - | |||||||||
| > 20 | 2 ad. c/20 pers. o frac. | 1 ad. c/20 pers. o frac. | 1 c/20 pers. o frac. | - | |||||||||
| P煤blico | 1 a 125 | 1 | 1 | - | - | > 200 | 2 | ||||||
| > 125 | 1 ad. c/100 pers. o frac. | 1 ad. c/150 pers. o frac. | - | - | |||||||||
| - Sal贸n de est茅tica - Pilates - Instituto de remodelaci贸n, adelgazamiento y gimnasia correctiva - Local de perforaci贸n y tatuaje - Peluquer铆a y otros servicios para animales dom茅sticos |
Personal | 1 a 9 | 1 | 1 | - | - | Pueden compartirse | General | 1 a 20 | 1 | - | ||
| 10 a 20 | 2 | 2 | - | - | |||||||||
| > 20 | 2 ad. c/20 pers. o frac. | 1 ad. c/20 pers. o frac. | - | - | |||||||||
| P煤blico | 1 a 50 | 1 | 1 | - | - | > 20 | 2 | ||||||
| 51 a 125 | 2 | 2 | - | - | |||||||||
| > 125 | 1 ad. c/100 pers. o frac. | 1 ad. c/150 pers. o frac. | 1 c/100 pers. o frac. | - | |||||||||
| - Bancos, casas de cambio, bolsa de valores, oficina de correos | Personal | 1 a 9 | 1 | 1 | - | - | Pueden compartirse con el p煤blico | Personal | 1 a 20 | 1 | Pueden compartirse |
||
| 10 a 20 | 2 | 2 | - | - | |||||||||
| > 20 | 2 ad. c/20 pers. o frac. | 1 ad. c/20 pers. o frac. | - | - | - | > 20 | 2 | ||||||
| P煤blico | 1 a 125 | 1 | 1 | - | - | Pueden compartirse con los servicios de salubridad para el personal | P煤blico | 1 a 340 | 1 | ||||
| > 125 | 1 ad. c/100 pers. o frac. | 1 ad. c/150 pers. o frac. | - | - | > 340 | 2 | |||||||
| Servicios p煤blicos y/o sociales | Personal | 1 a 9 | 1 | 1 | - | - | - | Personal | 1 a 20 | 1 | Pueden compartirse | ||
| 10 a 20 | 2 | 2 | - | - | |||||||||
| > 20 | 2 ad. c/20 pers. o frac. | 1 ad. c/20 pers. o frac. | - | - | > 20 | 2 | |||||||
| P煤blico | 1 a 50 | 1 | 1 | - | - | S贸lo cuando se prevea acceso de p煤blico | P煤blico | 1 a 340 | 1 c/20 conv | ||||
| 51 a 125 | 2 | 2 | - | - | |||||||||
| > 125 | 1 ad. c/100 pers. o frac. | 1 ad. c/150 pers. o frac. | 1 c/100 pers. o frac. | - | > 340 | 2 c/20 conv. | |||||||
| Estaci贸n de servicio-combustibles l铆quidos y/o GNC Estaci贸n de cargadores el茅ctricos Lavadero de veh铆culos automotores |
Personal | 1 a 9 | 1 | 1 | - | - | - | General | 1 a 50 | 1 | - | ||
| 10 a 20 | 2 | 2 | - | - | |||||||||
| > 20 | 2 ad. c/20 pers. o frac. | 1 ad. c/20 pers. o frac. | - | - | |||||||||
| P煤blico | 1 a 125 | 2 | 2 | - | - | - | > 50 | 2 | |||||
| > 125 | 1 ad. c/100 pers. o frac. | 1 ad. c/150 pers. o frac. | 1 c/100 pers. o frac. | - | |||||||||
| - Otros servicios | Personal | 1 a 9 | 1 | 1 | - | - | - | Personal | 1 a 20 | 1 | Pueden compartirse | ||
| 10 a 20 | 2 | 2 | - | - | |||||||||
| > 20 | 2 ad. c/20 pers. o frac. | 1 ad. c/20 pers. o frac. | - | - | > 20 | 2 | |||||||
| P煤blico | 1 a 125 | 2 | 2 | - | - | - | P煤blico | 1 a 340 | 1 c/20 conv. | ||||
| > 125 | 1 ad. c/100 pers. | 1 ad. c/150 pers. o frac. | 1 c/100 pers. o frac. | - | > 340 | 2 c/20 conv. | |||||||
| TRANSPORTE | Dep贸sito de transporte Garaje de transportes |
Personal | 1 a 9 | 1 | 1 | - | - | - | General | 1 a 500 | 1 | - | |
| 10 a 20 | 2 | 2 | - | - | |||||||||
| > 20 | 2 ad. c/20 pers. o frac. | 1 ad. c/20 pers. o frac. | - | - | |||||||||
| P煤blico | 1 a 125 | 1 | 1 | - | - | Pueden compartirse con el personal | > 500 | 1 ad. c/500 pers. o frac. | |||||
| > 125 | 1 ad. c/100 pers. | 1 ad. c/150 pers. o frac. | - | - | |||||||||
| Estaciones intermedias Estaciones terminales |
Personal | 1 a 9 | 1 | 1 | - | - | - | General | 1 a 250 | 1 | - | ||
| 10 a 20 | 2 | 2 | - | - | |||||||||
| > 20 | 2 ad. c/20 pers. o frac. | 1 ad. c/20 pers. o frac. | - | - | |||||||||
| P煤blico | 1 a 125 | 1 | 1 | - | - | - | > 250 | 1 ad. c/250 pers. o frac. | |||||
| > 125 | 1 ad. c/100 pers. o frac. | 1 ad. c/200 pers. o frac. | 1 c/100 pers. o frac. | - | |||||||||
| DEP贸SITOS, ALMACENAMIENTO Y LOG铆STICA | Establecimientos de escala local, metropolitana y barrial | Personal | 1 a 9 | 1 | 1 | - | - | - | General | 1 a 250 | 1 | - | |
| 10 a 20 | 2 | 2 | - | 2 c/40 pers. o frac. |
|||||||||
| > 20 | 2 ad. c/20 pers. o frac. | 1 ad. c/20 pers. o frac. |
1 c/40 pers. | ||||||||||
| P煤blico | 1 a 125 | 1 | 1 | - | - | Pueden compartirse con el personal | > 250 | 1 ad. c/250 pers. o frac. | |||||
| > 125 | 1 ad. c/100 pers. o frac. | 1 ad. c/200 pers. o frac. mayor a 50 | - | - | |||||||||
| RESIDENCIAL | Residencia comunitaria | Convento / Hogar de Niñas, Niños y Adolescentes / Hogar de contenci贸n y/o refugio | Personal | 1 a 9 | 1 | 1 | - | - | - | Personal | 1 a 20 | 1 | - |
| 10 a 20 | 2 | 2 | - | - | - | ||||||||
| > 20 | 2 ad. c/20 pers. o frac. | 1 ad. c/20 pers. o frac. | - | - | - | > 20 | 2 | ||||||
| Residentes | 1 a 10 | 1 | 1 | - | 1 | - | Residentes | 1 a 20 | 1 | Deben incluir ducha | |||
| 11 a 20 | 2 | 2 | - | 1 | |||||||||
| 21 a 30 | 3 | 3 | - | 3 | 21 a 30 | 2 | |||||||
| > 30 | 1 ad. c/15 pers. o frac. mayor a 10 | 1 ad. c/15 pers. o frac. mayor a 10 | - | 1 ad. c/20 pers. o frac. mayor a 10 | > 30 | 1 ad. c/2 conv. ad. | |||||||
| Residencia de Estudiantes | Seg煤n lo establecido en Alojamiento | Seg煤n lo establecido en Alojamiento | |||||||||||
| Residencial para Personas Mayores | Personal | 1 a 9 | 1 | 1 | - | - | - | Personal | 1 a 20 | 1 | - | ||
| 10 a 20 | 2 | 2 | - | - | |||||||||
| > 20 | 2 ad. c/20 pers. o frac. | 1 ad. c/20 pers. o frac. | - | - | > 20 | 2 | |||||||
| Residentes | 1 a 6 | - | - | - | - | - | Residentes | 1 a 20 | 1 | Deben incluir ducha | |||
| 7 a 12 | 1 | 1 | - | 1 | |||||||||
| 13 a 30 | 2 | 2 | - | 2 | 21 a 30 | 2 | |||||||
| > 30 | 1 ad. c/10 pers. o frac. superior a 5 | 1 ad. c/10 pers. o frac. superior a 5 | - | 1 ad. c/15 pers. o frac. | > 30 | 1 c/2 conv. | |||||||
| INDUSTRIAL | Establecimientos industriales en general | Personal | 1 a 9 | 1 | 1 | - | 2 c/10 pers. o frac. en usos industriales que desarrollen actividades insalubres y/o se intervenga en la fabricaci贸n de alimentos | - | General | 1 a 250 | 1 | - Debe incluirse ducha cuando corresponda, seg煤n lo indicado en "CONVENCIONAL" | |
| 10 a 20 | 2 | 2 | - | ||||||||||
| > 20 | 2 ad. c/20 pers. o frac. | 1 ad. c/20 pers. o frac. | 1 c/20 pers. o frac. | ||||||||||
| P煤blico | - | 1 | 1 | - | - | Puede compartirse con el personal | > 250 | 1 ad. c/250 pers. o frac | |||||
Cuando se indica que se pueden compartir entre personal y p煤blico, se debe hacer el c谩lculo por separado, y adoptar el valor mayor. Cuando se indican artefactos “adicionales”, los mismos se deben adicionar a la escala inmediata anterior; caso contrario, la cantidad de artefactos indicada se corresponde con la poblaci贸n determinada para esa misma escala.
Cuando no se indica el valor de la fracci贸n a partir de la cual se deben adicionar artefactos, corresponde adicionarlos cuando se exceda el valor “N” indicado en “x ad. c/ N pers. o frac.”
En los usos que poseen leyes particulares, se deben tener en cuenta las descripciones de salubridad all铆 mencionadas.
En los Bebederos para PcD su pico surtidor debe disponerse a una altura de setenta y cinco cent铆metros (0,75 m) del nivel de solado. Su diseño debe permitir el uso de personas en silla de ruedas y scooter;
(Sustituido por Art. 92 de la Ley Nº 6.438, BOCBA Nº 6194 del 17/08/2021)
3.5.2 Caracter铆sticas de los Servicios de Salubridad
(Sustituido por Art. 93 de la Ley Nº 6.438, BOCBA Nº 6194 del 17/08/2021)
3.5.2.1 Servicios de Salubridad Convencionales
| Tipo de Local destinado a Servicio de Salubridad | Lado m铆nimo (m) |
Superficie m铆nima (m2) |
| Baño tipo I(In-Lo-Ba) | 1,50 | 3,00 |
| Baño tipo II (In-Lo-Du s/Ba) | 1,50 | 2,50 |
| Baño m铆nimo (In-Lo-Du) | 0,90 | 1,40 |
| Toilette (In-Lo) | 0,90 | - |
| Retrete (In) | 0,75 | - |







(Incorporado por texto Art. 94 de la Ley Nº 6.438, BOCBA Nº 6194 del 17/08/2021)
3.5.2.1.1 Baño Familiar
El baño familiar debe tener una superficie m铆nima de dos metros cuadrados (2,00 m²), con un metro con cincuenta cent铆metros (1,50 m) de lado m铆nimo.
El ancho libre m铆nimo de la puerta debe ser de noventa cent铆metros (0,90 m), poseer jambas cortas, que permitan visualizar desde el exterior su ocupaci贸n, de al menos treinta cent铆metros (0,30 m) del piso. Debe contar con un sensor infrarrojo o similar que indique el estado de ocupaci贸n. En ning煤n caso se deben utilizar cerraduras.
Debe contar con un (1) inodoro doble carga para niños, un (1) lavabo convencional, un (1) lavabo para niños y cambiador para beb茅s.
En los edificios cuya superficie sea menor a los dos mil metros cuadrados (2.000 m²) son obligatorios cuando se cuente con baños diferenciados por g茅nero.
(Incorporado por texto Art. 95 de la Ley Nº 6.438, BOCBA Nº 6194 del 17/08/2021)
3.5.2.2 Servicios de Salubridad para Personas con Discapacidad (PcD)
Los servicios de salubridad para PcD deben cumplir con las caracter铆sticas que se determinan a continuaci贸n en lo que respecta a artefactos, equipamiento y superficies de aproximaci贸n.
Deben estar ubicados en Planta Baja o en plantas con accesibilidad prevista para PcD, y debidamente señalizados en las circulaciones.
En todos los casos deben contar con desagüe de piso.
En edificios existentes debe cumplir con lo determinado en el Cap铆tulo 3.10 “Edificios Existentes” del presente C贸digo y seg煤n lo que se establece los Reglamentos T茅cnicos.
La distribuci贸n de los artefactos se debe ajustar a la siguiente tabla:
Distribuci贸n de artefactos en el servicio de salubridad para PcD”
| LOCAL | INODORO | LAVABO | DUCHA | OBSERVACIONES |
| Retrete | + | - | - | inciso a), 铆tem I |
| Retrete | + | + | - | inciso a), 铆tem II |
| Retrete | + | - | + | inciso a), 铆tem III |
| Antec谩mara | - | + | - | inciso b), 铆tem II |
| Gabinete de ducha zona h煤meda | - | - | - | inciso c), 铆tem I |
| Gabinete de ducha zona seca | - | - | - | inciso c), |
| Baño | + | + | + | inciso a), 铆tem IV |
Los servicios de salubridad para PcD deben estar dotados del siguiente equipamiento:














(Incorporado por texto Art. 96 de la Ley Nº 6.438, BOCBA Nº 6194 del 17/08/2021)
3.5.3 Servicio de Sanidad para Primeros Auxilios(Incorporado por texto Art. 97 de la Ley Nº 6.438, BOCBA Nº 6194 del 17/08/2021)
3.6 Exigencias de Seguridad en la Utilizaci贸n (SU)
3.6.1 Seguridad Frente a los Riesgos en la Utilizaci贸n
El objetivo b谩sico de este Cap铆tulo consiste en reducir los riesgos que pudieran sufrir los usuarios durante el uso de los edificios, generados como consecuencia de las caracter铆sticas de su proyecto, construcci贸n, uso y/o mantenimiento.
Para satisfacer este objetivo los edificios se deben proyectar, construir, mantener y utilizar de forma tal que cumplan con las exigencias b谩sicas de Seguridad establecidas en el presente C贸digo.
Este C贸digo especifica par谩metros, objetivos y procedimientos de Seguridad en el Uso, cuyo cumplimiento asegura las exigencias b谩sicas y los niveles m铆nimos de calidad.
3.6.2 Clasificaci贸n de los Riesgos
A los fines de definir las exigencias relativas a la Seguridad en el Uso de los edificios los riesgos m谩s relevantes se clasifican en:
3.6.2.1 Riesgo de Ca铆das e Impactos
3.6.2.2 Riesgo por Atrapamiento
3.6.2.3 Riesgo Causado por Iluminaci贸n Inadecuada
3.6.2.4 Riesgo de Ahogamiento
3.6.2.5 Riesgo Causado por Veh铆culos en Movimiento
3.7 Diseño Sostenible
El presente C贸digo establece caracter铆sticas constructivas y de diseño sostenible que aportan a la mitigaci贸n de los efectos del cambio clim谩tico y a la adaptaci贸n de la Ciudad frente a ellos, en correspondencia con el Compromiso Ambiental establecido en la normativa urban铆stica.
3.7.1 Generalidades
El Diseño Sostenible y sus herramientas se basan en las siguientes premisas:
3.7.2 Principios del Diseño Sostenible
El Diseño Sostenible y sus herramientas se gu铆an por los siguientes principios:
3.7.3 Implementaci贸n
Se deben implementar las herramientas de Diseño Sostenible establecidas en el presente C贸digo en toda obra nueva, ampliaci贸n y/o refuncionalizaci贸n, a fin de cumplir el Compromiso Ambiental regulado en la normativa urban铆stica, de conformidad al art铆culo 3.7.3.2 “Alcance y 谩mbito de Aplicaci贸n”.
Dichas herramientas son de aplicaci贸n para la Calificaci贸n de Calidad de H谩bitat Construido establecida en el presente C贸digo.
3.7.3.1 Actualizaci贸n
Los par谩metros de las herramientas de Diseño Sostenible se actualizar谩n conforme la din谩mica ambiental y los compromisos asumidos por la Ciudad en la materia.
La Autoridad de Aplicaci贸n puede revisar el alcance determinado para cada herramienta.
Las caracter铆sticas t茅cnicas de cada herramienta se establecen en los Reglamentos T茅cnicos, los cuales se actualizan seg煤n los avances en cada materia de las tecnolog铆as aplicables.
3.7.3.2 Alcance y 谩mbito de Aplicaci贸n
Las herramientas establecidas en la normativa urban铆stica como de cumplimiento obligatorio deben implementarse seg煤n el alcance determinado en la misma y seg煤n los par谩metros y caracter铆sticas t茅cnicas que se establecen en el presente C贸digo y seg煤n se establece los Reglamentos T茅cnicos. Las herramientas que se indiquen como de cumplimiento obligatorio seg煤n el presente cap铆tulo, alcanzan a todas las obras nuevas; ampliaciones cuya superficie sea mayor al cincuenta por ciento (50%) de la superficie existente; y refuncionalizaciones seg煤n las condiciones establecidas en el art铆culo 3.7.3.2.1 “Progresividad de Aplicaci贸n” y/o las condiciones particulares de cada herramienta. Para el caso de refuncionalizaciones es de aplicaci贸n lo establecido en el Cap铆tulo 3.10 “Edificios Existentes” del presente C贸digo, as铆 como las excepciones atribuibles a las condiciones previas del edificio que se describen en el presente Cap铆tulo y seg煤n se establece en los Reglamentos T茅cnicos. Se establecen herramientas de cumplimiento optativo, condicionadas por factores de implantaci贸n, caracter铆sticas f铆sicas, de uso o disponibilidad. La incorporaci贸n de herramientas optativas es valorada para la “Calificaci贸n de Calidad del H谩bitat Construido”.
3.7.3.2.1 Progresividad de Aplicaci贸n
Las herramientas establecidas con car谩cter obligatorio que no tengan reglas particulares de aplicaci贸n, se deben implementar seg煤n las siguientes etapas, de conformidad al principio ambiental de progresividad establecido en la normativa urban铆stica.
Las etapas de cumplimiento son consecutivas en el tiempo seg煤n se indica a continuaci贸n:
3.7.3.2.2 Consideraciones particulares
Para todas las herramientas incluidas en el presente Cap铆tulo pueden considerarse las siguientes limitaciones que dificulten o imposibiliten su implementaci贸n:
3.7.4. Estrategias de Compromiso Ambiental
3.7.4.1 Prevenci贸n de la Isla de Calor
3.7.4.1.1 Techos Fr铆os
3.7.4.1.1.1 Alcance
Se deben implementar Techos Fr铆os seg煤n lo establecido en la normativa urban铆stica.
3.7.4.1.1.2 Par谩metros
El cien por ciento (100%) de la superficie considerada debe cumplir con el 铆ndice de Reflectancia Solar m铆nimo (IRS), indicado a continuaci贸n:
Elementos horizontales, IRS = 78
Elementos inclinados (m铆nimo diez por ciento (10%) de pendiente), IRS = 29
Se excluye del c谩lculo de la superficie a las 谩reas destinadas a terraza t茅cnica, incluyendo la superficie de un camino perimetral de un metro (1,00 m) de ancho en todo el per铆metro de la misma.
El material que se utilice debe contar con su debido certificado y/o ensayo de “铆ndice de Reflectancia Solar” IRS
3.7.4.1.2 Cubiertas o Techos Verdes
3.7.4.1.2.1 Alcance
La superficie obligatoria destinada a Cubiertas o Techos Verdes se determina seg煤n lo establecido en la normativa urban铆stica.
3.7.4.1.2.2 Caracter铆sticas T茅cnicas
Para materializar una cubierta o techo verde debe incluirse, como m铆nimo:
3.7.4.1.2.2.1 Cubiertas Verdes Sustentables
Cuando se implementen cubiertas o techos verdes se valora la elecci贸n de cubiertas verdes sustentables, que cumplan con las siguientes caracter铆sticas generales:
3.7.4.1.3 Fachada vegetal, Muro Verde o Cortina Verde sin Fertirriego en Fachadas
3.7.4.1.3.1 Alcance
Se establece como herramienta de cumplimiento optativo. La incorporaci贸n de superficies verdes verticales se valora cuando se cuente con disponibilidad en fachadas hacia las orientaciones Norte, Noroeste y/u Oeste.
3.7.4.1.3.2 Par谩metros
Cuando se incorporen estas soluciones, se debe incluir, como m铆nimo, el veinticinco por ciento (25%) de la superficie total de las fachadas en nivel peatonal y en el nivel inmediatamente superior, hacia las orientaciones Norte, Noroeste y/u Oeste.
3.7.4.1.4 Sombreado de pavimentos y solados exteriores
3.7.4.1.4.1 Alcance
Se establece como herramienta de cumplimiento optativo. En toda obra nueva, ampliaci贸n o refuncionalizaci贸n que cuente con pavimentos y/o solados exteriores expuestos a la radiaci贸n solar, excluyendo la superficie destinada a cubierta o terraza, que funcionen como estacionamiento al aire libre, circulaciones peatonales, y/o espacios expuestos se valora la instalaci贸n o implantaci贸n de sistemas de sombreado, siempre que la normativa urban铆stica lo permita.
3.7.4.1.4.2 Par谩metros
Cuando los pavimentos y/o solados exteriores cuenten con un 铆ndice de Reflectancia Solar (IRS) menor a setenta y ocho (78), pueden contar con sistemas de sombreado que eviten la incidencia de radiaci贸n solar directa y la acumulaci贸n de calor durante los meses con predominancia de altas temperaturas. El sombreado puede lograrse con arbolado, p茅rgolas vegetadas o elementos artificiales fijos o m贸viles, debiendo garantizar una cobertura m铆nima del cincuenta por ciento (50%) en proyecci贸n horizontal de la superficie expuesta a la radiaci贸n solar directa, en el periodo comprendido entre el solsticio de verano y el equinoccio de otoño. La verificaci贸n se debe efectuar para el solsticio de verano en el horario entre las diez (10) horas y las diecis茅is (16) horas. En caso de utilizarse vegetaci贸n, 茅sta debe garantizar la cobertura exigida en un plazo no mayor a los cinco (5) años de su implantaci贸n.
3.7.4.2. Prevenci贸n del Riesgo H铆drico
3.7.4.2.1 Ralentizaci贸n del Agua de Lluvia
3.7.4.2.1.1 Alcance
Se debe implementar la ralentizaci贸n del agua de lluvia en aquellos casos establecidos en la normativa urban铆stica.
3.7.4.2.1.2 Par谩metros
Para ralentizar el agua de lluvia se deben incorporar sistemas de almacenamiento capaces de contener y evacuar caudales picos en momento de precipitaciones copiosas, con el fin de reducir el riesgo de inundaciones.
La capacidad de los reservorios destinados a la ralentizaci贸n de agua de lluvia se calcula de acuerdo a lo que se establece en los Reglamentos T茅cnicos, en funci贸n de la superficie de captaci贸n y el caudal de agua ca铆da.
Las soluciones constructivas y las caracter铆sticas t茅cnicas de la instalaci贸n para el desagüe de los mismos se rigen seg煤n se establece en los Reglamentos T茅cnicos para Instalaciones sanitarias.
3.7.4.2.2 Infiltraci贸n y Sistemas de Drenaje
Se establecen como herramientas de cumplimiento optativo. Se valoran las soluciones que incrementen la capacidad de absorci贸n del agua de lluvia a trav茅s de pavimentos permeables, pozos y zanjas de infiltraci贸n, dep贸sitos de infiltraci贸n u otros elementos con el objeto de minimizar el caudal de la escorrent铆a superficial y as铆 reducir la presi贸n sobre la infraestructura pluvial urbana. Asimismo, se valoran los sistemas de drenaje que colaboren a mitigar el impacto de las edificaciones sobre la napa fre谩tica, facilitando su escurrimiento natural.
3.7.4.2.2.1 Pavimentos Permeables
Cuando la normativa urban铆stica no determine lo contrario, dependiendo del tipo de suelo, se podr谩 utilizar pavimentos o solados permeables para la circulaci贸n de personas o veh铆culos, debiendo garantizar la continuidad estructural y la circulaci贸n segura.
Los Reglamentos T茅cnicos presentan soluciones constructivas admitidas para su ejecuci贸n y el c谩lculo de la superficie de infiltraci贸n efectiva.
3.7.4.3 Restauraci贸n de Biodiversidad
3.7.4.3.1 Flora Nativa
Se debe cumplir con lo establecido en la normativa urban铆stica, en todas las superficies vegetadas que se proyecten.
El Organismo Competente define las especies consideradas nativas y/o end茅micas del Distrito Pampeano Oriental, Provincia Pampeana, Dominio Chaqueño.
3.7.4.3.2 Superficie de C茅sped Menor
Se debe limitar el uso de c茅sped a los m铆nimos necesarios para las actividades humanas en edificios, debido a que se trata de un monocultivo intensivo que requiere de aportes continuos de fertilizantes, agua y energ铆a para su supervivencia, adem谩s de contar con una capacidad de infiltraci贸n menor y aumentar la escorrent铆a superficial respecto a superficies vegetadas con plantas.
3.7.4.3.2.1 Alcance
Se establece como herramienta de cumplimiento optativo. En toda obra nueva, ampliaci贸n o refuncionalizaci贸n se valora la minimizaci贸n de superficies de c茅sped en 谩reas vegetadas.
3.7.4.3.2.2 Par谩metros
Se consideran dentro de esta herramienta los casos en que la superficie cubierta por c茅sped es entre el diez por ciento (10%) y el cincuenta por ciento (50%) de la superficie vegetada total dentro del predio.
3.7.4.3.3 Consolidaci贸n de Parches Urbanos
En los parches urbanos son de aplicaci贸n las consideraciones aplicables a cualquier superficie vegetada, y seg煤n se establece en los Reglamentos T茅cnicos.
3.7.4.3.4 Incorporaci贸n de Arbolado Nuevo Nativo
Se establece como herramienta de cumplimiento obligatorio seg煤n el art铆culo 3.7.3.2 “Alcance y 谩mbito de Aplicaci贸n” y 3.7.3.2.1 “Progresividad de Aplicaci贸n”. El Organismo Competente define las especies consideradas nativas y/o end茅micas del Distrito Pampeano Oriental, Provincia Pampeana, Dominio Chaqueño, como as铆 tambi茅n las excepciones con respecto al arbolado que puede provenir de otros distritos aledaños al Distrito Pampeano y que se hayan adaptado al clima y suelo de la Ciudad Aut贸noma de Buenos Aires.
Se debe incorporar arbolado nuevo nativo en una proporci贸n igual a un (1) 谩rbol cada cien metros cuadrados (100,00 m2) de superficie descubierta, sea vegetada o no, cuando la hubiera dentro del predio.
3.7.4.3.5 Protecci贸n del Arbolado Existente
Se establece como herramienta de cumplimiento obligatorio seg煤n el art铆culo 3.7.3.2 “Alcance y 谩mbito de Aplicaci贸n” y 3.7.3.2.1 “Progresividad de Aplicaci贸n”.
Se deben tomar medidas de protecci贸n y saneamiento de los 谩rboles que ya se encuentren en el predio, para al menos un cincuenta por ciento (50%) del arbolado existente, seg煤n se establece en los Reglamentos T茅cnicos, teniendo en cuenta las posibles limitaciones intr铆nsecas del proyecto.
Se debe realizar una evaluaci贸n fitosanitaria del arbolado y tomar las medidas necesarias para su protecci贸n durante la obra.
3.7.4.4 Calidad Ambiental del H谩bitat Construido
3.7.4.4.1 Confort Visual
Se debe priorizar el uso de la luz natural como fuente de iluminaci贸n de manera que permita iluminar espacios interiores, ahorrando energ铆a, reduciendo impactos ambientales negativos y contribuyendo al uso racional de recursos no renovables.
3.7.4.4.1.1 Alcance
Se establece como herramienta de cumplimiento obligatorio, sin progresividad de aplicaci贸n para todas las obras que tramiten Permiso de Ejecuci贸n de Obra Civil.
El cumplimiento de los par谩metros de confort visual est谩 determinado por el acceso a la luz natural y es obligatorio en todos los Locales de Permanencia o Primera Clase y en los Locales de Permanencia Eventual o de Tercera Clase que requieran iluminaci贸n natural seg煤n su destino, y lo establecido en el Cap铆tulo 3.8 “Condiciones para Determinados Usos en el Proyecto” y seg煤n se establece en los Reglamentos T茅cnicos.
La evaluaci贸n de la luz natural debe tener en cuenta la disponibilidad de luz en funci贸n del porcentaje de cielo visible desde las aberturas (influyendo su forma, tamaño y ubicaci贸n), las posibles obstrucciones del entorno y las caracter铆sticas de los espacios interiores (geometr铆a, texturas; colores y reflectancias de superficies; y transmisi贸n de luz visible de los vidrios elegidos).
3.7.4.4.1.2 Par谩metros
Los par谩metros m铆nimos para cada local son los establecidos en los Cap铆tulos 3.3 “Habitabilidad” y 3.8 “Condiciones para Determinados Usos en el Proyecto”, valor谩ndose la adopci贸n de los par谩metros de referencia indicados a continuaci贸n, cuando las condiciones f铆sicas del edificio lo permitan.
3.7.4.4.1.2.1 Factor de Luz Diurna
Para determinar el nivel de luz natural se utiliza el Factor de Luz Diurna (FLD), establecido en funci贸n del uso previsto, para una cierta proporci贸n del local y del per铆odo de disponibilidad efectiva de luz natural seg煤n condiciones clim谩ticas locales. Los factores de luz diurna son definidos teniendo en cuenta el tipo de abertura y niveles de iluminancia a obtener.
El c谩lculo del FLD se realiza seg煤n el procedimiento que se establece en los Reglamentos T茅cnicos.
Par谩metros de luminancias seg煤n usos edilicios.
| Uso edilicio | Requerimientos m铆nimos de FLD (Factor de Luz Diurna) |
| Residencial | Locales de 1° Clase: 2%, Locales de 3° Clase: 1% |
| Educaci贸n y Local de Lectura |
Locales de 1° Clase: 2%, deseable 3% Locales de 3° Clase: 1% |
| Servicios | Locales de 1° y 3° Clases: 2% |
| Salud | Locales de 1° y 3° Clases: 2% |
Par谩metros de FLD sobre el plano de referencia.
| Condiciones de iluminaci贸n |
Tipo de abertura |
Iluminancia de referencia | FLD M铆nimo |
| Nivel m铆nimo | Vertical | - 300 lx, 50% del espacio, 50% de horas de luz disponibles -100 lx, 100% del espacio, 50% de horas de luz disponibles |
2% |
| Cenital | -300 lx, 100% del espacio, 50% de horas de luz disponibles | 0.7% | |
| Nivel medio | Vertical | - 500 lx, 50% del espacio, 50% de horas de luz disponibles - 300 lx, 100% del espacio, 50% de horas de luz disponibles |
2.8% |
| Cenital | - 500 lx, 100% del espacio, 50% de horas de luz disponibles | 1.2% | |
| Buen / Alto nivel de iluminaci贸n | Vertical | - 600 lx, 50% del espacio, 50% de horas de luz disponibles - 400 lx, 100% del espacio, 50% de horas de luz disponibles |
4.1% |
| Cenital | - 600 lx, 100% del espacio, 50% de horas de luz disponibles | 1.7% |
Referencia Factor de luz diurna (FLD)%.
| 5% o m谩s | El local tiene apariencia de claramente iluminado. No es necesaria luz artificial. Puede haber problemas t茅rmicos asociados a los altos niveles de luz natural |
| 2 - 5% | Local bien iluminado aunque se puede utilizar iluminaci贸n artificial en las zonas de trabajo para mejorar la iluminancia en las zonas m谩s alejadas de las ventanas y reducir contrastes con las vistas al exterior. |
| Menos del 2% | Es necesaria la iluminaci贸n artificial. Las ventanas aportan vistas pero no suficiente luz. |
Valores de referencia: proporciones de aberturas para obtener iluminaci贸n natural y vistas.
| Profundidad del local | Porcentaje m铆nimo de superficie de abertura respecto a la superficie de muro al exterior (muro que contiene la abertura) |
| < 8 m | 20% |
| 8 a 11 m | 25% |
| 11 a 14 m | 30% |
| > 14 m | 35% |
Si la superficie de abertura es mayor a la m铆nima requerida, se debe calcular el FLD de referencia resultante.
Si el FLD obtenido supera el cinco por ciento (5%), se debe verificar adicionalmente las condiciones de protecci贸n solar para evitar el sobrecalentamiento en 茅pocas c谩lidas, mientras que si supera el ocho por ciento (8%) a esta 煤ltima debe agregarse la verificaci贸n de riesgo de deslumbramiento para evitar problemas de disconfort visual. En ambos casos se realizan las verificaciones que se establecen en los Reglamentos T茅cnicos.
3.7.4.4.2 Confort Ac煤stico
Se deben implementar acciones que permitan reducir los niveles de ruido hacia y en el interior de los edificios a partir de soluciones que se establecen en los Reglamentos T茅cnicos, que garanticen el adecuado aislamiento ac煤stico al ruido a茅reo, al ruido de impacto y vibraciones.
Los valores m铆nimos obligatorios de aislamiento medido “in situ”, con la construcci贸n totalmente terminada, incluyendo las instalaciones en funcionamiento, y los valores m谩ximos de ruido de inmisi贸n son los establecidos en este C贸digo y en la normativa en materia de control de la contaminaci贸n ac煤stica.
3.7.4.4.2.1 Alcance
Se establece como herramienta de cumplimiento obligatorio seg煤n los art铆culos 3.7.3.2 “Alcance y 谩mbito de Aplicaci贸n” y 3.7.3.2.1 “Progresividad de Aplicaci贸n”, aplicables a uso residencial, en lo referido a Vivienda individual y Colectiva. Los usos restantes se encuentran alcanzados por la normativa espec铆fica dictada por el Organismo Competente.
3.7.4.4.2.2 Par谩metros
Este C贸digo establece valores de aislamiento ac煤stico para la envolvente de cada unidad de uso, consider谩ndose como “envolvente” los tabiques y muros divisorios con otras unidades de uso del mismo edificio o de otros linderos; la fachada, y los entrepisos que puedan separar una unidad de uso de otra, por arriba o debajo de ella. Adem谩s, se establecen valores de aislamiento ac煤stico m铆nimo para los tabiques interiores de las viviendas y los tabiques en contacto con locales ruidosos, tales como salas de m谩quinas.
3.7.4.4.2.2.1 Valores m铆nimos de aislamiento ac煤stico al ruido a茅reo y ruido de impacto
Los par谩metros que se indican a continuaci贸n, son los valores m铆nimos obligatorios de aislamiento medido “in situ”, con la construcci贸n totalmente terminada, incluyendo las instalaciones en funcionamiento.
TABLA - Valores m铆nimos de aislamiento ac煤stico internos, seg煤n tipo de ruido.
| UBICACI贸N | Aislamiento al ruido a茅reo R'w (dB) |
Aislamiento al ruido de impacto L'n,w (dB) |
| Muros divisorios entre distintos propietarios[1] | 50 | - |
| Muros divisorios internos de cada unidad de uso | 38 | - |
| Muros divisorios con locales ruidosos | 55 | - |
| Divisorios horizontales entre distintas unidades de uso | 50 | 55 |
[1] Los muros divisorios de propiedades, privativos, en caso de construirse sin que exista otro muro correspondiente al lindero, deber谩n cumplir el aislamiento correspondiente a la fachada del edificio indicado en la Tabla Aislamiento de fachadas.
3.7.4.4.2.2.2 Aislamiento Ac煤stico de Fachadas de Acuerdo al Nivel de Ruido Sobre el Frente y de la Parcela
El nivel de aislamiento ac煤stico m铆nimo al ruido a茅reo en fachadas se determina de acuerdo al nivel de ruido existente en el per铆odo diurno, en la calle con mayor tr谩nsito a la que se exponga el edificio. Los valores de ruido (L DAY dB) se obtienen del Mapa de Ruido de la Ciudad de Buenos Aires, para el per铆odo diurno. En caso de existir transiciones de nivel en la zona de ubicaci贸n del edificio, se debe emplear el mayor valor de ruido de fondo consignado. Para las fachadas de contrafrente que no se expongan directamente a calles, y que se ubiquen a una distancia mayor a veinte metros (20,00 m) desde la l铆nea oficial del frente del predio, los valores de aislamiento, pueden reducirse de acuerdo a la tabla adjunta.
Se consignan a continuaci贸n los valores de aislamiento m铆nimo obligatorio de fachadas de viviendas, asoci谩ndolo al nivel de ruido existente en la calle. Los valores de aislamiento est谩n referidos a la superficie compuesta de la fachada, planos opacos y transparentes, en los locales dormitorio y estar.
TABLA - Aislamiento de fachadas.
| AISLAMIENTO AC煤STICO DE FACHADAS | ||
| NIVEL DE RUIDO L DAY S/ MAPA DE RUIDO |
FRENTE | CONTRAFRENTE |
| L DAY (dB) | D2m,nT,Ctr | D2m,nT,Ctr |
| ≤60 | 35 | 32 |
| 65 | 40 | 35 |
| 70 | 42 | 38 |
| >70 | 44 | 40 |
3.7.4.4.3 Calidad de Aire Interior
Se debe garantizar que el aire interior se encuentre libre de contaminantes o en concentraciones que no puedan ser dañinas para la salud.
Los edificios deben disponer de medios para que sus locales puedan ventilar adecuadamente, eliminando los contaminantes que se produzcan de forma habitual en su interior durante el uso normal, de forma que se aporte un caudal suficiente de aire exterior y se garantice la renovaci贸n del aire de los locales con adecuada extracci贸n y expulsi贸n del aire viciado.
El aire exterior puede ser provisto a trav茅s de medios de ventilaci贸n natural, mec谩nica o h铆brida. Las infiltraciones de aire a trav茅s de las ventanas aportan aire exterior al balance y deben ser consideradas.
3.7.4.4.3.1 Alcance
Se establece como herramienta de cumplimiento obligatorio seg煤n el art铆culo 3.7.3.2 “Alcance y 谩mbito de Aplicaci贸n”, para los usos espec铆ficos que se determinen en los Reglamentos T茅cnicos, de acuerdo a lo establecido en 3.7.3.2.1 “Progresividad de Aplicaci贸n” de este C贸digo.
3.7.4.4.3.2 Par谩metros
Se establecen en los Reglamentos T茅cnicos las renovaciones horarias de aire requeridas en funci贸n de los usos y sustancias que deben ser objeto de medici贸n.
3.7.4.4.4 Materiales Constructivos Sostenibles
La incorporaci贸n de materiales constructivos amigables con el ambiente en toda la vida 煤til de un edificio tiene por objetivos favorecer el uso de nuevas tecnolog铆as disponibles en el mercado, fomentar materiales de construcci贸n con un bajo impacto ambiental y garantizar la salubridad de los usuarios, evitando la presencia de materiales contaminantes y la liberaci贸n de emisiones t贸xicas en caso de incendio.
3.7.4.4.4.1 Alcance
Se establece como herramienta opcional la incorporaci贸n de materiales constructivos sostenibles, avalorando su incorporaci贸n seg煤n las soluciones que se admiten en los Reglamentos T茅cnicos.
3.7.4.4.4.2 Par谩metros
Como medida de promoci贸n de materiales y sistemas constructivos ambientalmente preferibles, se valora la construcci贸n que tenga en cuenta los siguientes criterios:
3.7.4.4.4.2.1. Informaci贸n sobre Materiales y Productos
Para la verificaci贸n de los criterios de sostenibilidad y el cumplimiento espec铆fico de los principios de seguridad y salubridad, es de car谩cter obligatorio la presentaci贸n de informaci贸n sobre los materiales y productos propuestos en el proyecto y utilizados en los procesos constructivos hasta el final de la obra. La informaci贸n se debe entregar seg煤n el formato que se establece en los Reglamentos T茅cnicos.
La Autoridad de Aplicaci贸n se reserva el derecho de solicitar toda informaci贸n fidedigna respecto de la composici贸n y de los componentes de materiales de construcci贸n que pudieran resultar nocivos para la salud humana o el ambiente.
Se debe incluir informaci贸n sobre los siguientes materiales y productos:
Aislantes t茅rmicos; aislantes y acondicionantes ac煤sticos; adhesivos; selladores; burletes; solados; sistemas y placas de cielorrasos suspendidos; terminaciones; pinturas y recubrimientos; tableros de part铆culas de madera de todas las granulometr铆as; tratamientos para maderas; maderas impregnadas; alfombras y bajo alfombras.
Este listado no es taxativo y puede ser actualizado por la Autoridad de Aplicaci贸n en los Reglamentos T茅cnicos.
3.7.4.4.5 Gesti贸n de Residuos
Mediante el diseño, se debe propiciar la correcta gesti贸n de residuos para minimizar la generaci贸n, garantizar la separaci贸n, favorecer la reutilizaci贸n y simplificar las tareas de reciclaje durante la etapa de operaci贸n de los edificios.
3.7.4.4.5.1 Separaci贸n de Residuos
Los edificios deben disponer de espacios y medios para extraer los residuos generados en ellos de forma acorde con la normativa vigente y con el sistema p煤blico de recolecci贸n de tal manera que se facilite su adecuada separaci贸n en origen, su recolecci贸n selectiva y su posterior disposici贸n diferenciada.
Se debe proporcionar un 谩rea f谩cilmente accesible que sirva a todo el edificio y se dedique al acopio de materiales no t贸xicos para su posterior reciclaje, incluyendo, como m铆nimo, papel, cart贸n, vidrio, pl谩sticos y metales.
Se debe colocar trampa de grasas entre las l铆neas de desagüe de la fuente o punto generador del residuo l铆quido y las alcantarillas que permita la separaci贸n y recolecci贸n de grasas y aceites del agua usada y evite que estos materiales ingresen a la red de alcantarillado p煤blico. Esta grasa debe ser gestionada conforme la normativa espec铆fica vigente.
Los edificios deben disponer de medios para que sus recintos se puedan ventilar adecuadamente, eliminando los contaminantes que se produzcan de forma habitual durante el uso normal de los edificios, de forma que se aporte un caudal suficiente de aire exterior y se garantice la extracci贸n y expulsi贸n del aire viciado por los contaminantes.
3.7.4.4.5.2 Gesti贸n de Residuos Patog茅nicos
Cuando se generen Residuos patog茅nicos deben preverse diseños, t茅cnicas y procedimientos a los efectos de la correcta manipulaci贸n, almacenamiento, transporte, tratamiento y disposici贸n final de los mismos de acuerdo a las leyes y normas complementarias espec铆ficas que regulan la materia.
3.7.4.4.5.3 Gesti贸n de Residuos Peligrosos
En las etapas de proyecto, construcci贸n, operaci贸n y mantenimiento deben preverse diseños, t茅cnicas y procedimientos a los efectos de la correcta manipulaci贸n, almacenamiento, transporte, tratamiento y disposici贸n final de los residuos peligrosos, con el objeto de evitar y prevenir un daño en la salud de las personas y al ambiente y promover su gesti贸n ambientalmente adecuada, su minimizaci贸n en cantidad y peligrosidad y su recuperaci贸n, reciclado y correcta reutilizaci贸n. La gesti贸n de residuos peligrosos se ajusta a las leyes y normas complementarias espec铆ficas que regulan la materia.
3.7.4.4.6 Gesti贸n Ambiental del Proceso Constructivo
Debe reducirse el impacto ambiental de la actividad de la construcci贸n implementando buenas pr谩cticas para el cuidado ambiental que orienten a un manejo sostenible de las obras, sus procesos y los recursos que implican.
Toda obra nueva, ampliaci贸n, refacci贸n o refuncionalizaci贸n, en el 谩mbito de la Ciudad Aut贸noma de Buenos Aires, debe cumplir con los requisitos de gesti贸n ambiental del proceso constructivo que fije el organismo competente en materia ambiental. El nivel de exigencia por uso y superficie de la construcci贸n se establece seg煤n las normas reglamentarias que el Organismo Competente establezca.
3.7.4.5 Eficiencia Energ茅tica y Energ铆as Renovables
La eficiencia energ茅tica tiene como objetivo la reducci贸n y optimizaci贸n del consumo de la energ铆a. La incorporaci贸n de energ铆as renovables tiene como objetivo la reducci贸n del consumo de energ铆a convencional proveniente de fuentes f贸siles. Ambas estrategias tienen como objetivo la reducci贸n de las emisiones de gases de efecto invernadero.
3.7.4.5.1 Eficiencia Energ茅tica
Se debe reducir y optimizar el consumo de la energ铆a destinada al funcionamiento de los sistemas activos en los edificios (acondicionamiento t茅rmico, iluminaci贸n, motores y otros equipos como los destinados a la provisi贸n de agua caliente), en funci贸n a la selecci贸n de las tecnolog铆as m谩s eficientes disponibles en el mercado considerando la informaci贸n de los proveedores o de las etiquetas de eficiencia energ茅tica correspondientes. Teniendo en cuenta desde la etapa proyectual, la incorporaci贸n de sistemas de monitoreo y medici贸n de la energ铆a, la adopci贸n de estrategias de diseño pasivo, la elecci贸n de materiales y sistemas constructivos, y el diseño eficiente de las instalaciones de climatizaci贸n, iluminaci贸n, agua caliente y fuerza motriz.
3.7.4.5.1.1 Sistemas de Monitoreo y Medici贸n de la Energ铆a
Se definen exigencias particulares respecto de la incorporaci贸n de medidores seccionales o espec铆ficos que brinden informaci贸n sobre el consumo energ茅tico de equipos o sistemas, facilitando as铆 a los ocupantes y encargados de mantenimiento de los edificios el monitoreo de su consumo energ茅tico y los efectos de las posibles medidas para su reducci贸n.
3.7.4.5.1.1.1 Alcance
Esta herramienta es de cumplimiento obligatorio, con la progresividad indicada en el art铆culo 3.7.3.2 “Alcance y 谩mbito de Aplicaci贸n” del presente C贸digo.
3.7.4.5.1.1.2 Par谩metros
Se deben instalar medidores inteligentes, analizadores de red el茅ctrica monof谩sicos y/o trif谩sicos, seg煤n corresponda. Se debe instalar como m铆nimo un (1) medidor analizador por tipo de interruptor principal (monof谩sico o trif谩sico), instalado en cada tablero principal y/o en cada tablero seccional seg煤n el diseño de la instalaci贸n el茅ctrica y el sistema de medici贸n inteligente seleccionado.
3.7.4.5.1.2 Estrategias de Diseño Pasivo
Se deben incorporar estrategias de diseño arquitect贸nico y definici贸n constructiva que tengan en cuenta las condiciones clim谩ticas locales para optimizar la habitabilidad en edificios reduciendo la demanda de energ铆a y el impacto ambiental, mejorando las condiciones de salud, bienestar y confort higrot茅rmico.
3.7.4.5.1.2.1 Aislamiento T茅rmico de la Envolvente
Se debe optimizar el nivel de aislamiento t茅rmico de las envolventes de los edificios con el fin de reducir el consumo de energ铆a para acondicionamiento t茅rmico activo, tanto en calefacci贸n como en refrigeraci贸n, debiendo, adicionalmente, arbitrarse los medios para la no ocurrencia de condensaciones superficiales e intersticiales de vapor de agua prestando particular atenci贸n a la resoluci贸n de los puentes t茅rmicos.
3.7.4.5.1.2.1.1 Definici贸n de la Envolvente Edilicia
La envolvente t茅rmica de un edificio est谩 compuesta por todos los cerramientos que limitan espacios habitables con el ambiente exterior (aire o terreno u otro edificio), y por todas las particiones interiores que limitan los espacios habitables con los espacios no habitables (o no acondicionados t茅rmicamente), que a su vez est茅n en contacto con el ambiente exterior.
A los efectos del presente Cap铆tulo, los componentes de la envolvente edilicia son los siguientes:
3.7.4.5.1.2.1.2 Alcance
Se establece como herramienta de cumplimiento obligatorio seg煤n los art铆culos 3.7.3.2 “Alcance y 谩mbito de Aplicaci贸n” y 3.7.3.2.1 “Progresividad de Aplicaci贸n”.
3.7.4.5.1.2.1.3 Excepciones y Exclusiones
3.7.4.5.1.2.1.4 Par谩metros
3.7.4.5.1.2.1.4.1 Transmitancia T茅rmica M谩xima Admisible (K MAX ADM )
Es obligatorio el cumplimiento de valores m谩ximos de transmitancia t茅rmica K para los componentes de la envolvente edilicia seg煤n se establece en los Reglamentos T茅cnicos.
Siendo:
K = 1 / RT = 1 / (Rsi + ∑Rn + Rse)
Donde:
K: Es la transmitancia en W/(m². K);
RT: Es la resistencia total del elemento compuesta por las Resistencias superficiales interior (Rsi) y exterior (Rse) y la sumatoria de las Resistencias de N n煤mero de capas homog茅neas de materiales, incluso c谩maras de aire (Rc), que componen el elemento. Siendo R = e / ƛ
Donde:
e: Es el espesor en metros;
ƛ: Es la conductividad del material en W/(m . K);
| Tipo de cerramiento | K m谩ximo admisible [W/(m2.K)] Base |
K m谩ximo admisible [W/(m2.K)] Etapa 1 |
| Techos o Cubiertas | 0.48 | 0.38 |
| Muros y cerramientos opacos exteriores en fachada / Muros y cerramientos opacos en muros medianeros expuestos al exterior y privativos | 1 | 0.74 |
| Muros y cerramientos opacos en muros medianeros no expuestos al exterior; y particiones interiores a locales no habitables (o no acondicionados) | 1.60 | 1.30 |
| Piso sobre espacio abierto exterior | 0.80 | 0.60 |
| Superficies o cerramientos transparentes o semitransparentes con inclinaci贸n igual o superior a 60° (vidrio) | 2.80 | 2.80 |
| Superficies o cerramientos transparentes o semitransparentes con inclinaci贸n igual o superior a 60° y 谩rea igual o mayor al 60% del paramento vertical expuesto (vidrio) | 1.80 | 1.80 |
| Superficies o cerramientos transparentes o semitransparentes con inclinaci贸n inferior a 60° (vidrio en Lucernarios) | 1.80 | 1.80 |
Hasta tanto entre en vigencia la Etapa 1, son de cumplimiento obligatorio los valores indicados en la tabla como “Base”.
3.7.4.5.1.2.1.4.2 Condensaciones y Puentes T茅rmicos
No se admiten condensaciones superficiales e intersticiales en los cerramientos. A los fines de evitar las 煤ltimas, se deben incluir barreras de vapor o proyectar los muros de manera que se verifique su inexistencia. Se deben presentar los detalles constructivos y c谩lculos pertinentes.
Asimismo, se debe verificar la no ocurrencia de Puentes T茅rmicos. En los Reglamentos T茅cnicos se establecen las metodolog铆as de verificaci贸n seg煤n corresponde.
3.7.4.5.1.2.1.4.3 Factor Solar
Las exigencias de protecci贸n solar se establecen en relaci贸n a las orientaciones de cada una de las superficies o cerramientos transparentes o semitransparentes.
Es obligatorio el cumplimiento de los valores m谩ximos de Factor Solar (FS) para vidrios en superficies o cerramientos transparentes o semitransparentes en fachada, seg煤n su inclinaci贸n y orientaci贸n.

| Inclinaci贸n | Orientaciones | FS m谩ximo |
| 谩ngulo igual o superior a 60° | Cuadrante Norte (NNE- NNO) 340° a 20° | 0.50 |
| Cuadrantes Este y Oeste. 21° a 160° y 201° a 340° | 0.35 / 0.50 | |
| Cuadrante Sur (SSE – SSO) 161° a 200° | 0.90 | |
| 谩ngulo inferior a 60° (Lucernarios y planos inclinados) |
Lucernarios y planos inclinados con 谩ngulo inferior a 60° | 0.30 |
En los cuadrantes Norte, Este y Oeste, cuando las superficies o cerramientos transparentes o semitransparentes con inclinaci贸n igual o superior a sesenta grados (60°) ocupen un 谩rea mayor o igual al sesenta por ciento (60%) del paramento vertical expuesto, se debe cumplir con un Factor Solar m谩ximo de 0,35.
Para el caso de superficies vidriadas que posean persianas, parasoles, cortinas, voladizos u otros elementos de protecci贸n solar etc., el c谩lculo de factor solar debe considerar las reducciones obtenidas por las protecciones elegidas.
Dichos valores se obtienen de la “Tabla de Transmitancia T茅rmica (K) y Factor Solar (FS) de “Vidrios y Ventanas”, que se detalle en los Reglamentos T茅cnicos.
Se admiten soluciones alternativas que controlen el Factor Solar seg煤n se establece en los Reglamentos T茅cnicos.
3.7.4.5.1.2.1.4.4 Otras Condiciones
En los Reglamentos T茅cnicos se establecen condiciones complementarias y metodolog铆a de verificaci贸n seg煤n corresponde.
3.7.4.5.1.2.2 Protecci贸n Solar
Se debe evitar el sobrecalentamiento y mantener condiciones de temperatura confortables, protegiendo los espacios interiores y exteriores de los edificios de la radiaci贸n solar, durante las 茅pocas del año en que se registran valores de temperatura por encima de la l铆nea de confort t茅rmico.
3.7.4.5.1.2.2.1 Alcance
Se establece como herramienta de cumplimiento optativo.
3.7.4.5.1.2.2.2 Par谩metros
Cuando se incorpore esta herramienta se debe evitar la incidencia de radiaci贸n solar directa sobre las aberturas, durante la 茅poca del año en que se registran valores de temperatura por encima de la l铆nea de confort t茅rmico, mediante la utilizaci贸n de sistemas de protecci贸n (fijos o m贸viles), incorporando aleros, parasoles, postigos y/o cortinas de enrollar o similares, u otros sistemas como ser los vegetales. Asimismo, se valora la utilizaci贸n de colores claros en terminaciones superficiales exteriores de muros y cerramientos opacos con 谩ngulo igual o superior a sesenta grados (60°) y en todas las carpinter铆as en superficies o cerramientos transparentes o semitransparentes.
3.7.4.5.1.2.2.2.1 Protecci贸n de la radiaci贸n solar directa durante el solsticio de Verano
Todas las superficies o cerramientos transparentes o semitransparentes de los locales de Primera Clase y de Tercera Clase, hacia las orientaciones Oeste, Norte y Este, seg煤n gr谩fico a continuaci贸n, deben contar con un sistema, fijo o m贸vil, de protecci贸n de la radiaci贸n solar. 茅stos deben garantizar que durante el solsticio de verano, estas superficies no reciban radiaci贸n solar directa en el per铆odo horario que transcurre entre las diez (10) horas y las diecis茅is (16) horas.
En el siguiente gr谩fico, se indican las orientaciones que deben contar con sistema de protecci贸n solar que garantice lo requerido:
ORIENTACIONES DONDE SE DEBE CONTAR CON SISTEMA DE PROTECCI贸N SOLAR

3.7.4.5.1.2.3 Ganancia Solar
3.7.4.5.1.2.3.1 Alcance
Se establece como herramienta de cumplimiento optativo.
3.7.4.5.1.2.3.2 Par谩metros
Cuando se incorpore esta herramienta, para su valoraci贸n se debe captar energ铆a solar, a trav茅s de las aberturas, durante las 茅pocas del año en que se registran valores de temperatura por debajo de la l铆nea de confort t茅rmico.
3.7.4.5.1.2.3.2.1 Acceso de Radiaci贸n Solar Directa durante el Solsticio de Invierno
Se debe garantizar un m铆nimo de dos (2) horas de sol directo en el solsticio de invierno (23 de junio), a trav茅s de las ventanas de como m铆nimo el sesenta por ciento (60%) de los locales de Permanencia o de Primera Clase y los locales de Permanencia eventual o de Tercera Clase. Solamente se acepta para el c贸mputo de cantidad de horas de sol, a per铆odo de asoleamiento cuando la altura del sol es mayor que diez grados (10°). No se considera el asoleamiento cuando el 谩ngulo de incidencia sobre la superficie vidriada sea mayor que sesenta y siete grados con treinta minutos (67° 30’).
Se indican, a continuaci贸n, las orientaciones de aberturas que permiten obtener dos (2) horas de asoleamiento m铆nimo en zonas residenciales de media y baja densidad, para la latitud donde se ubica la Ciudad Aut贸noma de Buenos Aires. En los casos donde la altura angular de edificios u otros obst谩culos es mayor que veinte grados (20°), es necesario verificar el asoleamiento utilizando m茅todos gr谩ficos, simulaciones en escala o simulaciones virtuales sobre modelos geolocalizados.
| LATITUD SUR | Fecha de verificaci贸n | Orientaciones respecto del Norte |
| Con edif.1 | ||
| 33° A 38° | 23 de Junio | 267° a °93 |
Orientaciones recomendadas
| ORIENTACIONES, RESPECTO AL NORTE, DONDE SE RECIBEN 2 HS ASOLEAMIENTO (33° a 38° LAT SUR) |
ORIENTACIONES, RESPECTO AL NORTE, FAVORABLES Y 贸PTIMAS |
![]() |
![]() |
Las orientaciones de aventanamientos 贸ptimas son las que corresponden a los cuadrantes Este y Norte (NO, N, NE). La orientaci贸n Oeste debe ser evitada, en lo posible, ya que recibe fuerte radiaci贸n solar de baja altura en las tardes calurosas de verano. Se deben considerar espacios exteriores con orientaciones favorables, superficies adecuadas para proporcionar suficiente captaci贸n, y distancias adecuadas para asegurar suficientes periodos de asoleamiento sin proyecci贸n de sombras de otros edificios o vegetaci贸n.
3.7.4.5.1.2.4 Ventilaci贸n Natural Cruzada
3.7.4.5.1.2.4.1 Alcance
Se determina como herramienta de cumplimiento optativo.
3.7.4.5.1.2.4.2 Par谩metros
Se debe lograr refrescamiento en condiciones c谩lidas y h煤medas, mediante la generaci贸n de movimiento de aire por acci贸n del viento a partir de la correcta ubicaci贸n y diseño de aberturas o por gradiente de temperaturas entre el punto de entrada y el de salida.
El cumplimiento de los par谩metros de ventilaci贸n natural cruzada es de aplicaci贸n en todos los Locales de Permanencia o Primera (1°) Clase y en los Locales de Permanencia Eventual o de Tercera (3°) Clase.
El diseño del edificio debe permitir el flujo de aire desde la fachada de barlovento a la de sotavento, a la altura de los usuarios y no a nivel de cielorraso. Se debe contar con ventanas ubicadas en fachadas opuestas y que el diseño de divisiones interiores de la planta permita un efectivo flujo de aire entre ellas. Asimismo, debe existir una correcta proporci贸n entre la superficie de aberturas operables y la superficie de cerramiento exterior. Se debe estudiar la variaci贸n en altura entre secciones de las aberturas.
Se establecen en los Reglamentos T茅cnicos las soluciones admitidas y condiciones para usos particulares.
3.7.4.5.1.3 Eficiencia Energ茅tica en Sistemas Activos
El objetivo es reducir y optimizar, en los edificios, el consumo de energ铆a destinada al acondicionamiento t茅rmico, la iluminaci贸n artificial, el funcionamiento de equipos y motores, el funcionamiento de artefactos e instalaciones de provisi贸n de agua caliente.
3.7.4.5.1.3.1 Alcance
Se establece como herramienta de cumplimiento optativo u obligatorio, seg煤n lo indicado en cada par谩metro, cuando 茅stos sean de aplicaci贸n seg煤n la naturaleza del proyecto.
3.7.4.5.1.3.1.2 Par谩metros
3.7.4.5.1.3.1.2.1 Acondicionamiento T茅rmico Eficiente
Cuando los edificios dispongan de instalaciones t茅rmicas para calefacci贸n, ventilaci贸n y/o enfriamiento artificial, estos sistemas deben ser energ茅ticamente eficientes en su operaci贸n.
3.7.4.5.1.3.1.2.2 Sectorizaci贸n y Controles
Los sistemas de refrigeraci贸n y calefacci贸n de unidades de uso deben estar diseñados por sectores delimitados y contar con controles de ajuste de los niveles de operaci贸n del sistema, termostatos y sistemas de corte autom谩tico para minimizar su consumo energ茅tico bajo distintos niveles de carga operativa, condiciones clim谩ticas y temperaturas del aire circundante.
3.7.4.5.1.3.1.2.3 Eficiencia T茅rmica de Calderas
Se valora la incorporaci贸n de calderas cuyo rendimiento sea c贸mo m铆nimo de un noventa por ciento (90%).
3.7.4.5.1.3.1.2.4 Eficiencia Energ茅tica de Estufas y Calefactores
Se deben instalar estufas y calefactores que cumplan con la m谩xima clasificaci贸n de etiquetado de eficiencia energ茅tica establecida vigente aplicable. Adem谩s, no deben producir emisiones hacia el interior de los locales y garantizar nulas o m铆nimas emisiones hacia el exterior.
3.7.4.5.1.3.1.2.5 Eficiencia Energ茅tica de Equipos Acondicionadores de Aire
Se deben instalar equipos acondicionadores de aire que cumplan con la m谩xima clasificaci贸n de etiquetado de eficiencia energ茅tica vigente aplicable.
3.7.4.5.1.3.1.2.6 Complementos para mejorar la Eficiencia de Sistemas de Acondicionamiento T茅rmico.
Para mejorar la eficiencia de los sistemas mec谩nicos se valora la incorporaci贸n los siguientes complementos seg煤n corresponda:
Economizadores de aire Variadores de velocidad:
3.7.4.5.1.4 Iluminaci贸n Artificial Eficiente
Se valora la instalaci贸n de sistemas de iluminaci贸n artificial eficientes. Las l谩mparas deben cumplir con la m谩xima clasificaci贸n de etiquetado de eficiencia energ茅tica vigente aplicable. La iluminaci贸n interior (-) debe ser de bajo consumo energ茅tico, seg煤n las tecnolog铆as disponibles en el mercado y seg煤n se establece en los Reglamentos T茅cnicos.
3.7.4.5.1.4.1 Sectorizaci贸n y Controles
Se valora la sectorizaci贸n de forma eficiente de los circuitos de iluminaci贸n artificial, considerando, en el caso de la iluminaci贸n interior, la actividad a desarrollar en el local y el aporte de iluminaci贸n natural, y en el caso de la iluminaci贸n exterior el tiempo y el uso. Esta sectorizaci贸n posibilita la medici贸n y monitoreo diferenciados. Para el control de la iluminaci贸n interior se valora la utilizaci贸n de l谩mparas dimerizables y/o sistemas de sensores que midan el ingreso de luz natural, como sensores de ocupaci贸n, control fotoel茅ctrico y controles de iluminaci贸n de per铆metro programables para apagar la luz artificial cuando hay un nivel adecuado de luz diurna en el espacio.
La iluminaci贸n en 谩reas comunes de uso intermitente, como escaleras, debe contar con interruptores con activaci贸n por detecci贸n de presencia y apagado autom谩tico.
La iluminaci贸n exterior de los edificios debe contar con sistemas de control mediante interruptores de tiempo o fotoceldas (sensores de luz diurna), para prevenir su encendido durante las horas de luz natural disponible.
3.7.4.5.1.4.2 Iluminaci贸n Interior
La iluminaci贸n debe tener un 铆ndice de rendimiento de color de ochenta (80) o m谩s y una temperatura de color correlacionada de tres mil quinientos kelvin (3500 K) o menos.
En espacios interiores es obligatorio cumplir con los rangos m铆nimos de iluminancia seg煤n actividad y con los valores de intensidades m铆nimas de iluminaci贸n seg煤n tipo de edificio y local que se indican a continuaci贸n:
Actividad y valores m铆nimos de iluminancia exigidos.
| Iluminancia m铆nima (lux) | Actividad |
| 50 | Orientaci贸n r谩pida en zonas de tr谩nsito |
| 100 a 300 | Tareas visuales ocasionales |
| 300 a 500 | Tareas con exigencias visuales simples a medias |
| 500 a 750 | Tareas con exigencias visuales medias a altas |
| 750 a 1500 | Tareas de alta exigencia, prolongadas y de poco contraste |
| 1500 - 2000 | Tareas con alta exigencia visual |
| 3000 a 10.000 | Tareas espec铆ficas con altas exigencias visuales |
3.7.4.5.1.4.3 Iluminaci贸n Exterior
Requerimientos m铆nimos de iluminaci贸n para espacios exteriores.
| Iluminaci贸n exterior | Artefactos de iluminaci贸n, rendimiento en lumen por vatio. Watts del circuito / l谩mpara seg煤n: |
Luminarias LED con l谩mparas integradas a artefactos, rendimiento en lumen por vatio efectivos de la luminaria - Watts del circuito seg煤n: |
||
| 铆ndice de Rendimiento de color (Ra) ≥ 60 |
铆ndice de Rendimiento de color (Ra) < 60 |
铆ndice de Rendimiento de color (Ra) ≥ 60 |
铆ndice de Rendimiento de color (Ra) < 60 |
|
| Edificios, caminos de acceso, senderos |
50 | 60 | 40 | 50 |
| Balcones residenciales, terrazas |
50 | - | 40 | 50 |
| Estacionamientos, calles asociadas |
70 | 80 | 55 | 60 |
| Potencia l谩mpara ≥ 25 W |
Potencia l谩mpara < 25 W |
Potencia l谩mpara ≥ 25 W |
Potencia l谩mpara < 25 W |
|
| Señalizaciones, iluminaci贸n hacia arriba |
60 | 50 | 50 | 50 |
Complementariamente, las luminarias destinadas a iluminaci贸n exterior deben cumplir con un 铆ndice IP de Protecci贸n m铆nimo de 65 (IP= 65) y evitar la poluci贸n lum铆nica en el ambiente.
3.7.4.5.1.4.4 Eficiencia Energ茅tica de las Instalaciones de Iluminaci贸n.-
La eficiencia energ茅tica de la instalaci贸n de iluminaci贸n se calcula de acuerdo a los siguientes par谩metros y seg煤n el procedimiento que se establece en los Reglamentos T茅cnicos.
| Uso | E- Iluminancia media en el plano horizontal (lux) |
Potencia m谩xima a instalar (W/m2) |
| Estacionamiento | 5 | |
| Otros usos | ≤600 | 15 |
| >600 | 25 |
| VEEI = | P · 100 |
| S · Em |
3.7.4.5.1.5 Agua Caliente Eficiente
Las condiciones de las instalaciones de agua caliente y los niveles de eficiencia energ茅tica m铆nimos de los artefactos son las que se establecen en los Reglamentos T茅cnicos.
Se valora positivamente la incorporaci贸n de intercambiadores y bombas de calor para el precalentamiento de agua caliente, as铆 como equipos calentadores de agua sin llama piloto.
3.7.4.5.1.5.1 Aislaci贸n T茅rmica en Cañer铆as de Agua Caliente
Las cañer铆as de distribuci贸n de agua caliente deben contar con aislaci贸n t茅rmica y barrera de vapor.
3.7.4.5.1.5.2 Eficiencia Energ茅tica de Artefactos Calentadores de Agua
Se deben instalar artefactos calentadores de agua que cumplan con la m谩xima clasificaci贸n de etiquetado de eficiencia energ茅tica vigente seg煤n la normativa aplicable.
3.7.4.5.1.5.3 Equipos y Motores.
Se deben instalar equipos y motores que cumplan con la m谩xima clasificaci贸n de etiquetado de eficiencia energ茅tica vigente, seg煤n la normativa aplicable.
Los alcanzados por la exigencia son:
Equipos para cocci贸n de alimentos fijos (hornos empotrables, anafes y cocinas)
Electrobombas
Motores de inducci贸n monof谩sicos
Motores de inducci贸n trif谩sicos
Ventiladores de techo
Se valora la incorporaci贸n de variadores de velocidad (tambi茅n denominados variadores de frecuencia), para controlar la velocidad de los motores de manera m谩s eficiente, regulando la tensi贸n y frecuencia de la red de alimentaci贸n del motor.
3.7.4.5.2 Energ铆as Renovables
Los edificios alcanzados seg煤n se establece a continuaci贸n y en los Reglamentos T茅cnicos deben reemplazar parte de la energ铆a convencional de red que demanden para su funcionamiento por energ铆as renovables, conforme los par谩metros establecidos en el presente Cap铆tulo.
3.7.4.5.2.1 Energ铆a Solar Fotovoltaica
Se implementa la conversi贸n de la energ铆a radiante del sol en electricidad mediante el uso de tecnolog铆a solar fotovoltaica. Las instalaciones deben estar compuestas fundamentalmente por paneles con elementos semiconductores expuestos a la luz solar y deben cumplir con las pautas que se establecen en los Reglamentos T茅cnicos.
3.7.4.5.2.1.1 Alcance
Se establece como herramienta de cumplimiento obligatorio seg煤n lo dispuesto en los art铆culos 3.7.3.2 “Alcance y 谩mbito de Aplicaci贸n” y 3.7.3.2.1 “Progresividad de Aplicaci贸n” del presente C贸digo.
3.7.4.5.2.1.2 Exclusiones y Excepciones
3.7.4.5.2.1.3 Par谩metros
3.7.4.5.2.1.3.1 Potencia Solar M铆nima
La potencia de generaci贸n fotovoltaica m铆nima de la instalaci贸n solar ser谩 el producto entre 0,3 y el valor menor entre la Potencia el茅ctrica contratada en el edificio (Pc , en kW) o la relaci贸n entre la Superficie total del techo (St, en m2) y el coeficiente 9,2 m2/kWp.
La potencia de generaci贸n m铆nima a instalar se calcular谩 mediante la siguiente f贸rmula:

Siendo:
Psolar: Potencia m铆nima de la instalaci贸n solar fotovoltaica generaci贸n fotovoltaica, en kWp.
Pc: Potencia el茅ctrica contratada en el edificio, en kW.
St: Superficie total de techo, en m2.
La superficie total de techo corresponde a la superficie de planta de techos presentada en la documentaci贸n del proyecto.
El coeficiente 9,2 m2/kWp se establece en funci贸n de los par谩metros est谩ndar de instalaciones solares para la Ciudad Aut贸noma de Buenos Aires (inclinaci贸n, distancia entre m贸dulos para evitar sombreado y eficiencia de m贸dulos).
Si, por voluntad del Propietario o Comitente, la potencia instalada supera la potencia contratada, se debe proceder seg煤n lo establecido en la normativa espec铆fica aplicable de alcance Nacional.
3.7.4.5.2.2 Energ铆a Solar T茅rmica
Se implementa la conversi贸n de la energ铆a radiante del sol en calor para el calentamiento de agua. Las instalaciones deben estar compuestas fundamentalmente por colectores solares de placa plana o de tubos evacuados, expuestos a la luz solar y un tanque o volumen de acumulaci贸n de la energ铆a cal贸rica. Las caracter铆sticas t茅cnicas se desarrollan en los Reglamentos T茅cnicos.
En los casos de la climatizaci贸n del agua para piscinas, el calentamiento de la misma debe sustituirse parcial o totalmente mediante una instalaci贸n de esta naturaleza.
3.7.4.5.2.2.1 Alcance
Se establece como herramienta de cumplimiento obligatorio seg煤n lo dispuesto en los art铆culos 3.7.3.2 “Alcance y 谩mbito de Aplicaci贸n” y 3.7.3.2.1 “Progresividad de Aplicaci贸n” del presente C贸digo.
3.7.4.5.2.2.2 Exclusiones y Excepciones
3.7.4.5.2.2.2 Par谩metros
3.7.4.5.2.2.2.1 Aporte Solar M铆nimo para ACS y/o Climatizaci贸n de Piscinas
El aporte solar m铆nimo anual es el promedio de las fracciones solares mensuales de energ铆a, a partir de la demanda energ茅tica mensual para agua caliente de uso sanitario del edificio. El agua utilizada en la climatizaci贸n de piscinas se tratar谩 aparte.
En la tabla a continuaci贸n se indican, para diferentes niveles de demanda de agua caliente una temperatura de referencia de sesenta grados celsius (60° C), el aporte solar m铆nimo anual, consider谩ndose los siguientes casos:
| Demanda total de ACS del edificio (lts/d铆a) | % |
| 2.000 - 15.000 | 30 |
| 15.000 - 17.500 | 35 |
| 17.500 - 20.000 | 45 |
| >20.000 | 52 |
Tabla. Aporte solar m铆nimo en %. Caso b) Efecto Joule.
| Demanda total de ACS del edificio (lts/d铆a) | % |
| 2.000 - 3.000 | 50 |
| 3.000 - 4.000 | 51 |
| 4.000 - 5.000 | 58 |
| 5.000 - 6.000 | 62 |
| >6.000 | 70 |
A continuaci贸n se indica, el aporte solar m铆nimo anual para el caso de piscinas climatizadas:
treinta por ciento (30%) de la demanda de agua para piscinas climatizadas.
En el c谩lculo del aporte solar m铆nimo se deben considerar las p茅rdidas t茅rmicas por distribuci贸n, acumulaci贸n y recirculaci贸n.
En el caso de ampliaciones y refuncionalizaciones de edificios el aporte solar m铆nimo se establece sobre el incremento de la demanda de ACS respecto a la demanda inicial.
El sistema solar se debe concebir en funci贸n de la energ铆a que aporta a lo largo del d铆a y no en funci贸n de la potencia del generador (colectores solares), por tanto se debe prever una acumulaci贸n acorde con la demanda al no ser 茅sta simult谩nea con la generaci贸n.
Con independencia del uso al que se destine la instalaci贸n, en el caso de que en alg煤n mes del año la contribuci贸n solar real sobrepase el ciento diez por ciento (110%) de la demanda energ茅tica o en m谩s de tres meses seguidos el cien por ciento (100%), se deben adoptar medidas de prevenci贸n para evitar el sobrecalentamiento.
3.7.4.5.2.3 Energ铆a Geot茅rmica, E贸lica y Otras Energ铆as Renovables
Se establece como herramienta de cumplimiento optativo.
Se valora, seg煤n se establece en los Reglamentos T茅cnicos, el aprovechamiento de la energ铆a almacenada en forma de calor debajo de la superficie s贸lida de la tierra. En los sistemas geot茅rmicos se extrae calor del subsuelo.
Asimismo, se valora la incorporaci贸n de otras energ铆as renovables, como la e贸lica o el biog谩s, seg煤n se indique en los Reglamentos T茅cnicos.
3.7.4.5.2.4 Uso Eficiente del Agua
Se debe racionalizar la administraci贸n del recurso, propiciando la incorporaci贸n de medidas para reducir el consumo de agua potable a partir de estrategias de ahorro, uso de fuentes no potables u otras medidas.
Los edificios deben disponer de medios adecuados para suministrar agua al equipamiento higi茅nico previsto, de forma sostenible, aportando caudales suficientes para su funcionamiento, manteniendo las propiedades de aptitud correspondientes de acuerdo a su uso e impidiendo los posibles retornos que puedan contaminar la red de agua potable, incorporando medios que permitan el ahorro y el control del caudal del agua.
3.7.4.5.2.4.1 Alcance
Se establecen herramientas de cumplimiento obligatorio u optativo, seg煤n las particularidades de cada una. Las soluciones de cumplimiento obligatorio se rigen por lo establecido en los art铆culos 3.7.3.2. Alcance y 谩mbito de Aplicaci贸n y 3.7.3.2.1 “Progresividad de Aplicaci贸n”.
3.7.4.5.2.4.1.2 Medici贸n del Consumo
Se debe instalar un medidor de agua por parcela y unidad de uso para controlar el consumo de agua potable. En los Reglamentos T茅cnicos se establecen los procedimientos para la verificaci贸n de los requisitos a cumplir para la presentaci贸n ante la Autoridad de Aplicaci贸n,
Los edificios, que cuentan con piscinas con una capacidad igual o mayor a quince mil litros (15.000 l) de agua, deben contar con un medidor exclusivo para el registro del consumo para este uso determinado.
3.7.4.5.2.4.1.3 Uso de Agua de Lluvia
Se deben instalar sistemas de captaci贸n y reutilizaci贸n de agua de lluvia, con el objeto de reducir el consumo de agua potable para segundos usos (riego, limpieza, descarga de inodoros y mingitorios).
Par谩metros:
Para el c谩lculo de este sistema se debe considerar un abastecimiento m铆nimo del cincuenta por ciento (50%) del consumo de agua de estos destinos.
En caso que la captaci贸n de agua de lluvia de la superficie aplicable no llegue a cubrir el cincuenta por ciento (50%) de la demanda de agua destinada a inodoros, riego y limpieza, el sistema debe recolectar como m铆nimo el agua de m谩s del setenta y cinco por ciento (75%) de la superficie de techos.
En el caso de instalaciones de riego para superficies mayores a quinientos metros cuadrados (500,00 m2), es obligatorio el uso de fuentes no potables para cubrir al menos un cincuenta por ciento (50%) de los requerimientos de agua para riego.
Se establecen en los Reglamentos T茅cnicos las condiciones particulares para la instalaci贸n de estas soluciones, as铆 como el c谩lculo de la capacidad de los reservorios en funci贸n de las precipitaciones y los requerimientos de control de calidad del agua.
3.7.4.5.2.4.1.4 Uso de Agua para Piscinas
Se valora la reutilizaci贸n del agua de las piscinas para aquellos usos en los que no se requiriera agua potable, seg煤n se establece en los Reglamentos T茅cnicos.
3.7.4.5.2.4.1.5 Reutilizaci贸n de Aguas Grises
Se valora la instalaci贸n de sistemas de reutilizaci贸n de aguas grises para segundos usos. Las condiciones a cumplimentar se establecen en los Reglamentos T茅cnicos.
3.7.4.5.3 Retroadaptaci贸n
Consiste en la implementaci贸n de un conjunto de medidas destinadas a mejorar la eficiencia energ茅tica de edificios existentes con el objetivo principal de reducir sus requerimientos energ茅ticos y emisiones de Gases de Efecto Invernadero (GEI) asociadas. Los edificios existentes deben cumplir con el procedimiento de “Verificaci贸n T茅cnica de las Construcciones” seg煤n se establece en los Reglamentos T茅cnicos, y conforme la normativa espec铆fica dictada por el Organismo Competente, quien determina su alcance y 谩mbito de aplicaci贸n.
El Cap铆tulo 3.7 “Diseño Sustentable” fue sustituido por Art. 98 de la Ley Nº 6.438, BOCBA Nº 6194 del 17/08/2021)